NEU - Schönes Baugrundstück in Klosterneuburg - Ihr Eigenheim wartet!

Grundstück zum Kauf in 3400 Klosterneuburg - Kaufpreis: 480.000 € / Objektnummer: 19260
Ausstattung:

Preisinformationen

Kaufpreis:
480.000 €
Vermittlungsprovision:
Ja
Provision:
3% des Kaufpreises zzgl. 20% USt.

Fakten

Objektnummer:
19260
Objekttyp:
Grundstück
Nutzfläche:
637 m²
Grundstücksfläche:
637 m²
Verfügbarkeit:
Verfügbar

Beschreibung

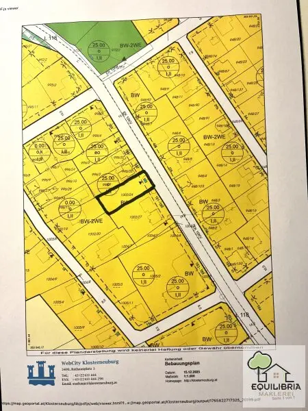
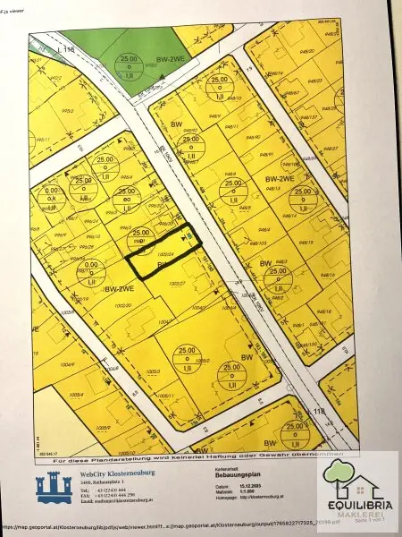
ZUM VERKAUF GELANGT FOLGENDES GRUNDSTÜCK:

Grundstücksgröße lt. Teilungsplan : 637 m2

Bauklasse I - II , offen , Bauland - wohnen

25% verbaubare Fläche , ca. 157m2 u. 8m hoch

 

Durch die vorteilhafte Gegebenheit  und die gute Lage bietet dieses Grundstück die Möglichkeit, ein individuelles Eigenheim  in   Klosterneuburg zu errichten. Darüber hinaus zeichnet sich das Grundstück durch eine ideale, nutzungsfreundliche Größe aus. 

 

UMGEBUNG UND LAGE:

Dieses kompakte Grundstück liegt an der Grenze von Klosterneuburg  nach  Kritzendorf  und bietet nicht nur eine optimale Verkehrsanbindung , sondern auch fußläufig zutritt zur Natur. 

DER KAUFPREIS:

Der Preis für dieses besondere Grundstück beträgt Euro 480 .000.-

INTERESSE?
Für mehr Informationen und die Vereinbarung eines Besichtigungstermins steht Ihnen  Hr. Wolfgang Konsel gerne unter der  Telefonnummer 0676/3505425 oder per E-Mail  wolfgang.konsel@equilibria.at  zur Verfügung.

Die von uns gemachten Angaben beruhen auf Informationen und Mitteillungen durch Dritte.

Wir weisen auf ein familiäres Naheverhältnis zum Auftraggeber hin.

 

 

Hinweis gemäß Energieausweisvorlagegesetz: Ein Energieausweis wurde vom Eigentümer bzw. Verkäufer, nach unserer Aufklärung über die generell geltende Vorlagepflicht, sowie Aufforderung zu seiner Erstellung noch nicht vorgelegt. Daher gilt zumindest eine dem Alter und der Art des Gebäudes entsprechende Gesamtenergieeffizienz als vereinbart. Wir übernehmen keinerlei Gewähr oder Haftung für die tatsächliche Energieeffizienz der angebotenen Immobilie.

Wir weisen darauf hin, dass zwischen dem Vermittler und dem zu vermittelnden Dritten ein familiäres oder wirtschaftliches Naheverhältnis besteht.

Infrastruktur / Entfernungen

Gesundheit
Arzt <1.500m
Apotheke <2.000m
Klinik <2.500m
Krankenhaus <2.000m

Kinder & Schulen
Schule <1.000m
Kindergarten <1.000m
Universität <4.000m
Höhere Schule <9.000m

Nahversorgung
Supermarkt <500m
Bäckerei <1.500m
Einkaufszentrum <6.000m

Sonstige
Bank <2.000m
Geldautomat <2.000m
Post <2.500m
Polizei <2.500m

Verkehr
Bus <500m
Straßenbahn <7.000m
Autobahnanschluss <2.500m
Bahnhof <500m
U-Bahn <9.500m

Angaben Entfernung Luftlinie / Quelle: OpenStreetMap
Beschreibung weiterlesen

Grundriss

Lageplan

3400 Klosterneuburg | Sankt Pölten (Land)

Lade...
Wolfgang Konsel

Wolfgang Konsel
Miteigentümer & Immobilienberater

equilibria Immobilienmanagement GmbH & Co KG

Lade...

Fotomix

Bild 1 Bild 2 Bild 3 Bild 4 Bild 5