NEU - Smart Quadrat: Willkommen in der neuen urbanen Oase

Wohnung zur Miete in 8020 Graz - Gesamtmiete: 815,00 € / Objektnummer: 74664
Ausstattung: Boden Fahrstuhl Wohnküche / offene Küche Bad Fußbodenheizung Balkon
Stiegenhaus

Preisinformationen

Gesamtmiete:
815,00 € / Monat
Betriebskosten netto:
130,87 € / Monat
Umsatzsteuer:
74,09 €
Kaution:
2.445,00 €
Provision:
Gemäß Erstauftraggeberprinzip bezahlt der Abgeber die Provision.

Fakten

Objektnummer:
74664
Objekttyp:
Wohnung
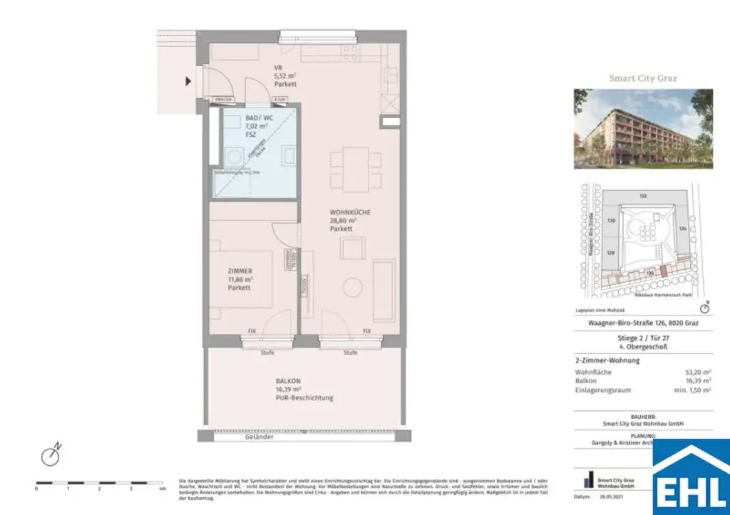
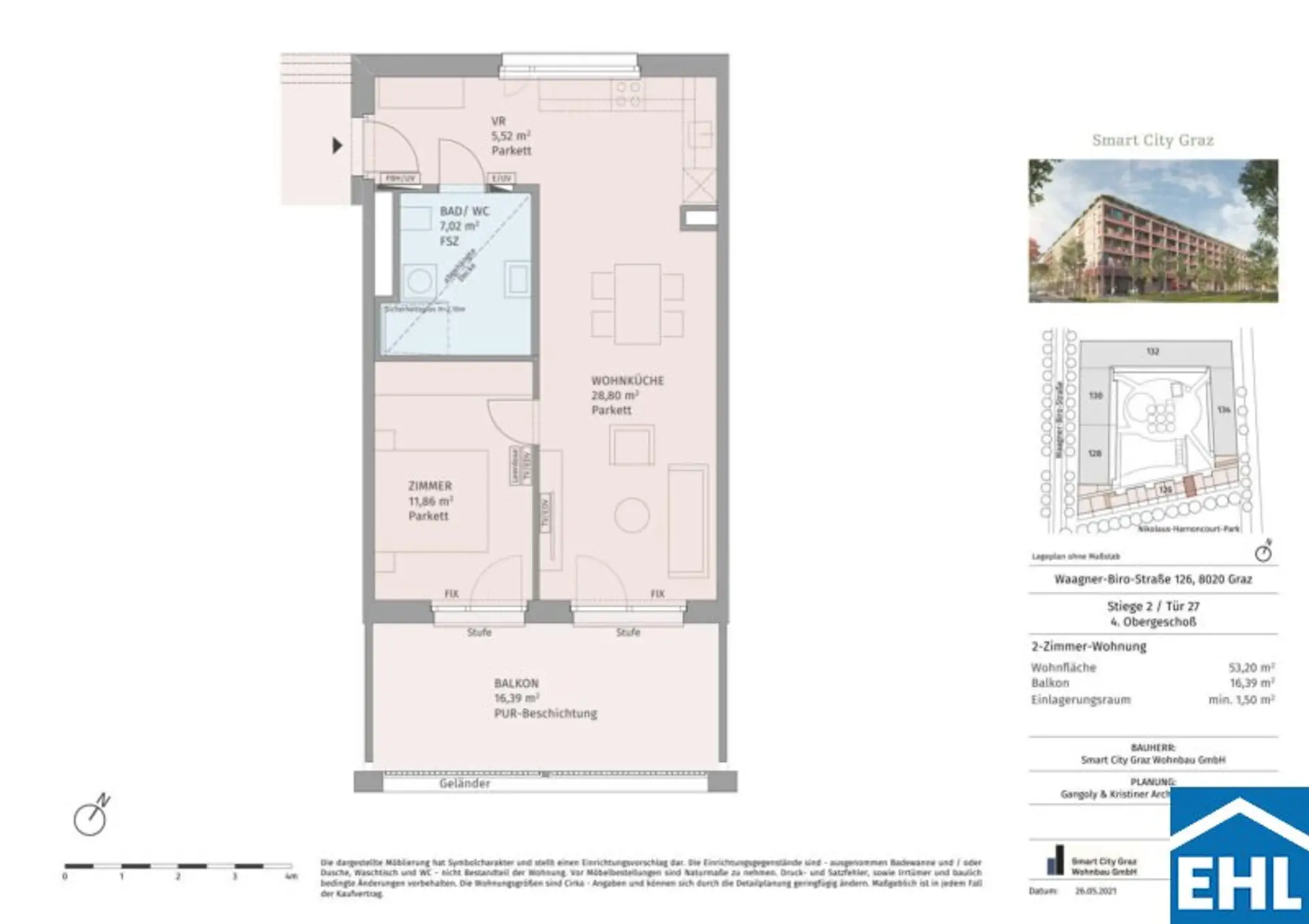
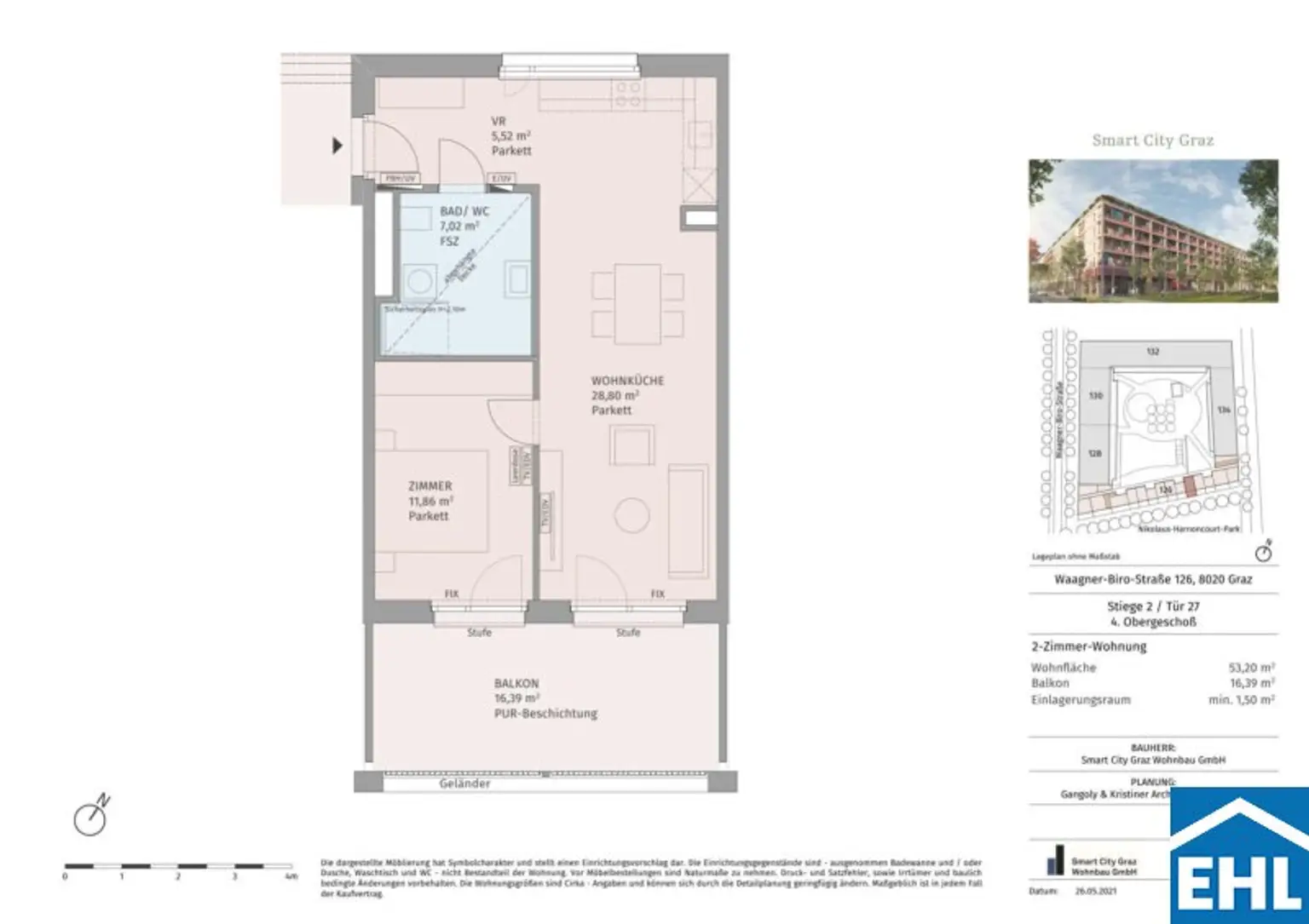
Balkon:
1
Balkonfläche:
16,39 m²
Keller Fläche:
1,5 m²
Wohnfläche:
53,2 m²
Zimmer:
2
Badezimmer:
1
Toilette:
1
Stockwerk:
4
Neubau:
Ja
Zustand:
Gepflegt
Verfügbarkeit:
Verfügbar

Beschreibung

Modernes Wohnen im Smart Quadrat – Ihr Zuhause im Herzen der Smart City Graz

Willkommen im Smart Quadrat, einem modernen Wohnprojekt im Herzen der Smart City Graz. Perfekt für Familien, Studierende, Berufstätige oder Best Ager, die stadtnah und dennoch ruhig wohnen möchten. Nur wenige Minuten vom pulsierenden Stadtzentrum entfernt, verbindet das Smart Quadrat urbanes Leben mit Rückzug und Erholung.

Mehr als Wohnen

Durchdachte Grundrisse, großzügige Wohnflächen und ein vielseitiger Wohnungsmix bieten für jede Lebensphase das passende Zuhause. Gemeinschafts- und Serviceflächen: Fitnessräume, Shared Offices, Spielplätze, Washing-Lounges, Fahrradwerkstatt, Hobby- & Freizeiträume. Nahversorgung, Bäckerei mit Café und Einkaufsmöglichkeiten fußläufig erreichbar. Auf dem Nachbargrundstück entsteht eine neue Parkanlage.

Mobil & flexibel

Straßenbahn, Buslinien und Hauptbahnhof in kurzer Zeit erreichbar. Car-Sharing direkt gegenüber. Eigene Fahrzeuge parken in der Tiefgarage, Fahrräder in sicheren Abstellplätzen.

Ausstattung & Highlights

* Vinyl-/Parkettböden & hochwertige Fliesen
* Markenküchen, Bad mit Dusche oder Wanne
* Fußbodenheizung & Kühlung, Fernwärme
* Aufzug, Lagerabteile, Tiefgaragen- und Fahrradstellplätze vorhanden

Befristung: 5 Jahre, 1 Jahr Kündigungsverzicht, 3 Monate Kündigungsfrist

Kaution: 3 BMM

Wir weisen darauf hin, dass zwischen dem Vermittler und dem zu vermittelnden Dritten ein familiäres oder wirtschaftliches Naheverhältnis besteht.

Der Immobilienmakler erklärt, dass er – entgegen dem in der Immobilienwirtschaft üblichen Geschäftsgebrauch des Doppelmaklers – einseitig nur für den Vermieter tätig ist.

Infrastruktur / Entfernungen

Gesundheit
Arzt <500m
Apotheke <500m
Klinik <250m
Krankenhaus <1.000m

Kinder & Schulen
Schule <500m
Kindergarten <250m
Universität <1.500m
Höhere Schule <1.500m

Nahversorgung
Supermarkt <250m
Bäckerei <250m
Einkaufszentrum <1.500m

Sonstige
Geldautomat <500m
Bank <500m
Post <500m
Polizei <1.000m

Verkehr
Bus <250m
Straßenbahn <250m
Autobahnanschluss <4.500m
Bahnhof <1.250m

Angaben Entfernung Luftlinie / Quelle: OpenStreetMap
Beschreibung weiterlesen

Energieeffizienz

HWB:
25,58 kWh/(m²*a)
HWB Klasse:
B
fGEE:
0,81
fGEE Klasse:
A
Energieausweisart:
Energiebedarfs-ausweis
Gültig bis:
04.04.2033

Dokumente

Grundriss

Lageplan

8020 Graz | Graz (Stadt)

Lade...
Gerald Bruchmann

Gerald Bruchmann
Immobilienberater

EHL Wohnen GmbH

Lade...

Fotomix

Bild 1 Bild 2 Bild 3 Bild 4 Bild 5 Bild 6 Bild 7 Bild 8 Bild 9 Bild 10 Stiegenhaus Bild 12 Bild 13 Bild 14 Bild 15 Bild 16 Bild 17 Bild 18 Bild 19 Bild 20 Bild 21 Bild 22 Bild 23 Bild 24