Sommer im eigenen Garten: Neubau-Highlight mit Pool nahe Wien

Haus zum Kauf in 3400 Klosterneuburg - Kaufpreis: 1.289.900 € / Objektnummer: 26/12686
Ausstattung: Boden Wohnküche / offene Küche Bad Gäste-WC Klimaanlage Fußbodenheizung Balkon Terrasse Garten

Preisinformationen

Kaufpreis:
1.289.900 €

Fakten

Objektnummer:
26/12686
Objekttyp:
Haus
Balkon:
1
Terrasse:
2
Keller Fläche:
59,68 m²
Wohnfläche:
158,27 m²
Nutzfläche:
217,95 m²
Grundstücksfläche:
301 m²
Gartenfläche:
135,52 m²
Zimmer:
6
Schlafzimmer:
4
Badezimmer:
2
Toilette:
3
Baujahr:
2026
Zustand:
Erstbezug
Verfügbarkeit:
Verfügbar

Beschreibung

Schlüsselfertig - Mai 2026.

Willkommen in einem Zuhause, das modernes Design, nachhaltige Bauweise und echtes Wohlgefühl unter einem Dach vereint. Schon beim Betreten unter dem eleganten Glasvordach spüren Sie die Wertigkeit dieses Objekts. Auf beeindruckenden 217 m² Wohn- und Nutzfläche entfaltet sich ein durchdachtes Raumkonzept, das keine Wünsche offen lässt. Erbaut in solider Ziegelmassivbauweise, bietet dieses Haus die perfekte Basis für Generationen, während das extensiv begrünte Flachdach nicht nur optisch ein Highlight setzt, sondern auch aktiv zu einem erstklassigen Mikroklima beiträgt.

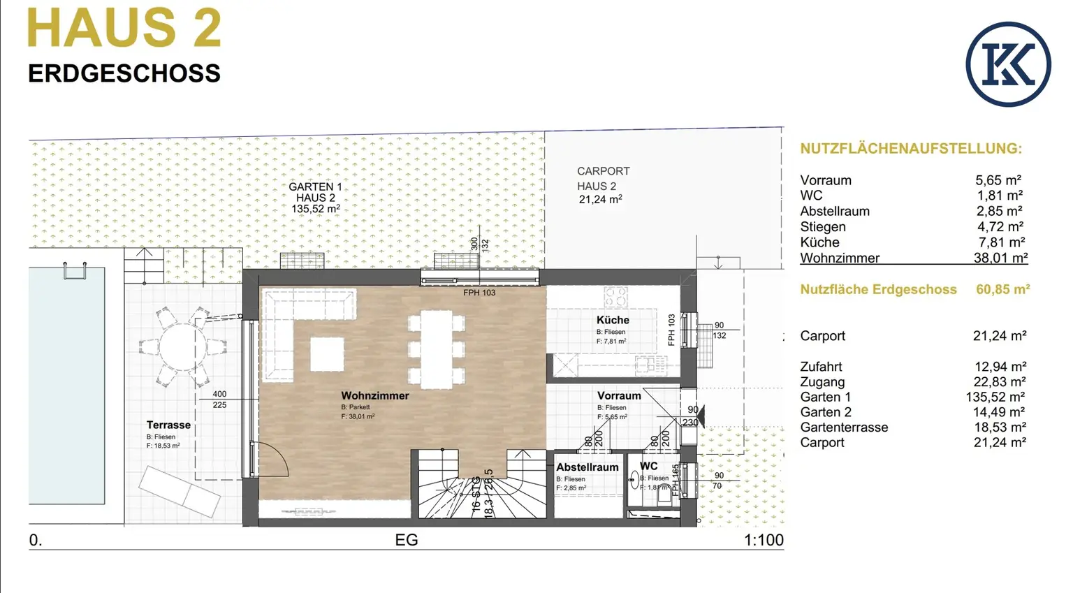
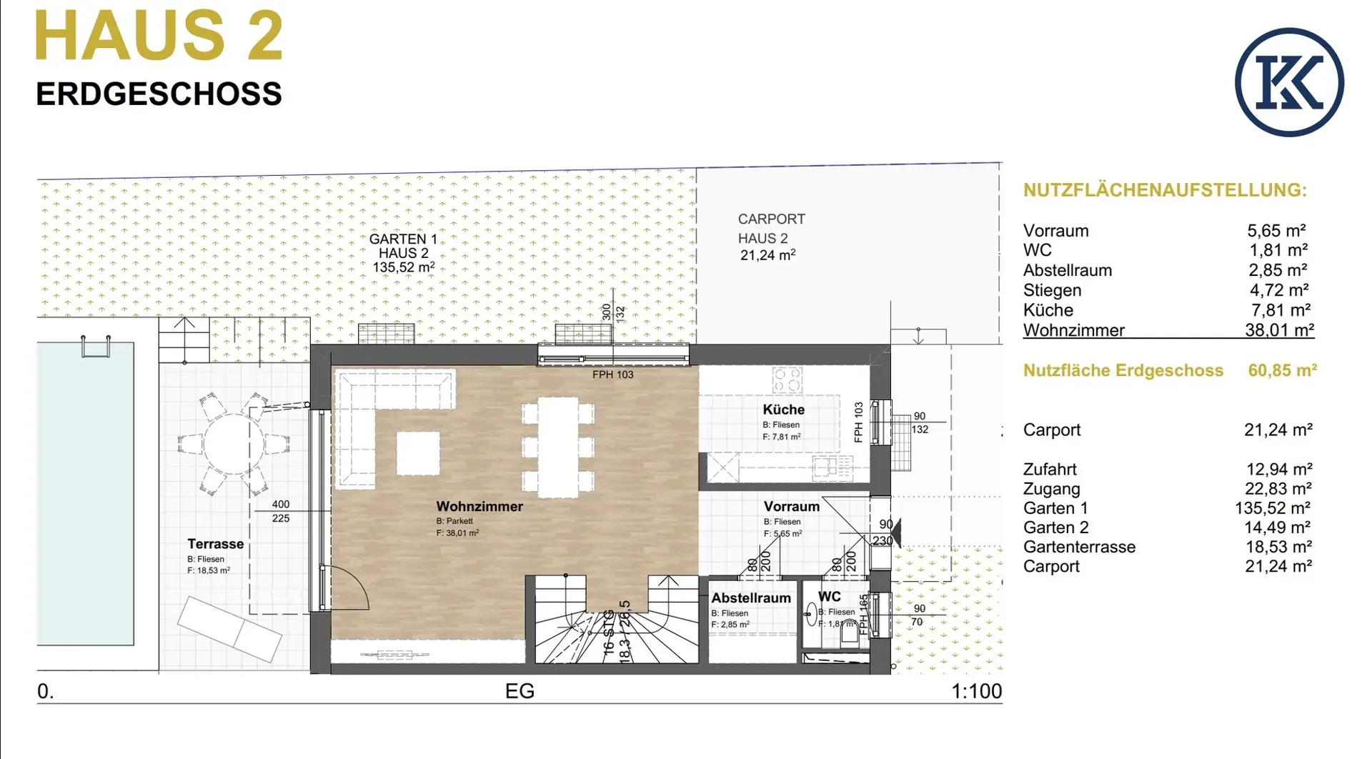
Das Herzstück Ihres neuen Zuhauses liegt im Erdgeschoss: Ein lichtdurchfluteter Wohn- und Essbereich, der durch großzügige Glasfronten nahtlos in den eigenen Garten übergeht. Hier erwartet Sie Ihr ganz privates Highlight – eine eigene Poolanlage, die heiße Sommertage in pure Urlaubsstimmung verwandelt. Das Haus wird absolut schlüsselfertig übergeben, sodass Sie sich vom ersten Tag an über edlen Echtholzdielenparkett, feinstes Steinzeug und hochwertige Sanitäranlagen freuen können.

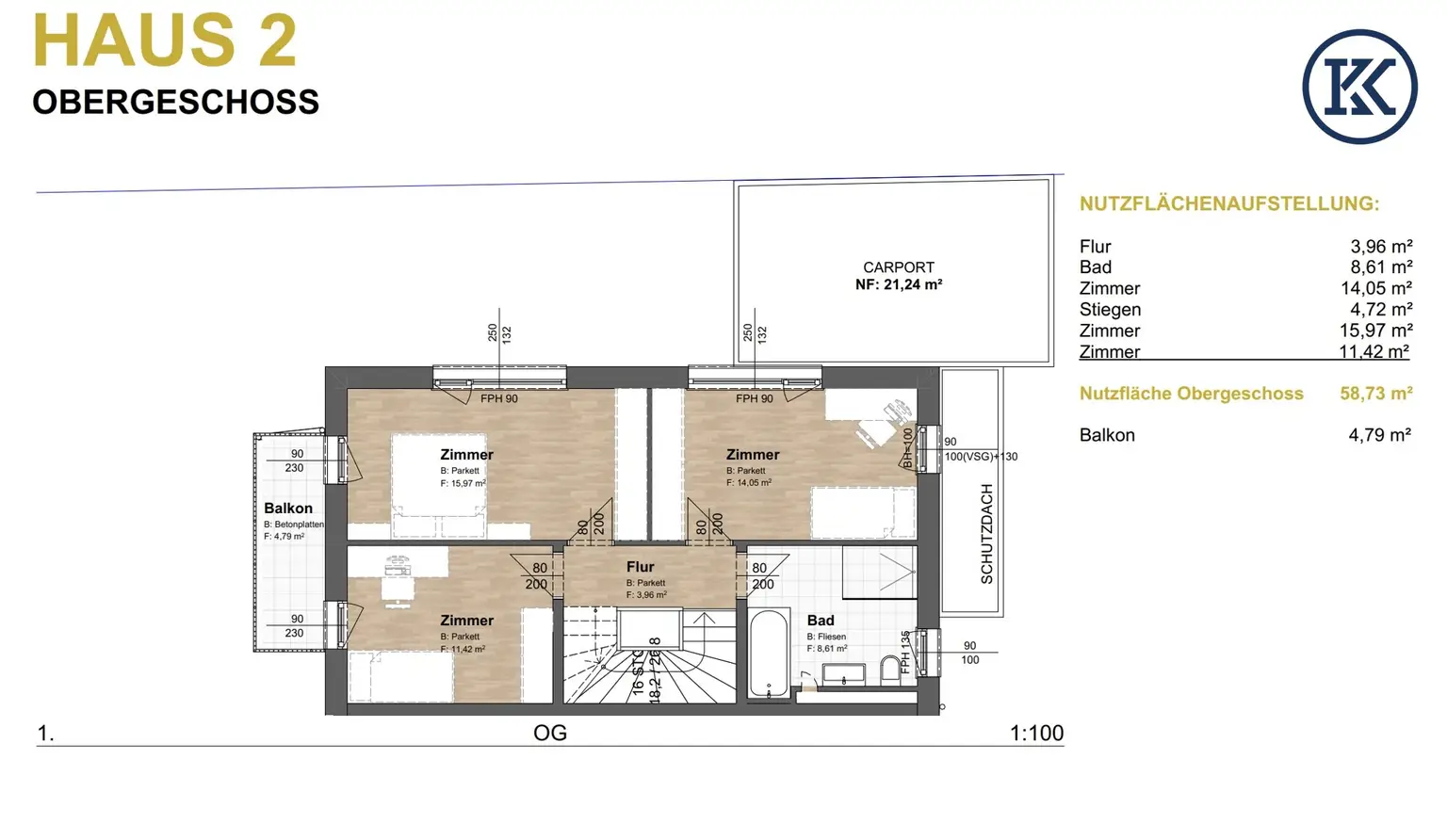
Über die oberen Etagen verteilt sich Ihr privater Rückzugsort ganz nach Ihren Vorstellungen. Während das Obergeschoss mit drei ideal proportionierten Zimmern und einem großzügigen Familienbad punktet, krönt das Dachgeschoss das Wohnerlebnis. Mit einer Galerie, einem weiteren Bad und der beeindruckenden, 26 m² großen Dachterrasse entsteht hier ein Refugium mit Weitblick, das sich perfekt als Master-Suite, exklusives Home-Office oder Atelier nutzen lässt. Ein durchdachter Vollkeller bietet zudem reichlich Platz für Technik und Hobby, während Ihr Fahrzeug bequem unter dem modernen Carport parkt. Hier erwartet Sie nicht einfach nur eine Immobilie – es ist die schlüsselfertige Einladung zu einem Leben voller Komfort, Stil und Freiheit.
Beschreibung weiterlesen

Lage und Verkehrsanbindung

Die Schubertgasse bietet eine erstklassige Wohnqualität in einer ruhigen Seitengasse Klosterneuburgs, ohne auf eine lückenlose Infrastruktur verzichten zu müssen. Ein wesentlicher Vorteil für den Alltag ist die fußläufige Erreichbarkeit aller wichtigen Einrichtungen. Ein gut sortierter Billa befindet sich nur ca. 5 Minuten zu Fuß entfernt, sodass tägliche Einkäufe ohne Auto erledigt werden können.

Für Pendler und Stadtbesucher ist die Anbindung ideal: Der Bahnhof Unterkritzendorf liegt ebenfalls nur ca. 5 Gehminuten entfernt. Von hier aus bringt Sie die S-Bahn (S40) in einer kurzen, etwa 30-minütigen Fahrt direkt zum Wiener Franz-Josefs-Bahnhof oder zur U4-Station Spittelau. Damit genießen Sie die Vorteile einer grünen Randlage bei gleichzeitig direkter Verbindung in das Wiener Stadtzentrum.

Auch die Freizeitqualität in unmittelbarer Nähe ist herausragend. Die weitreichenden Wander- und Mountainbikewege des Wienerwaldes sowie die malerischen Weingärten Klosterneuburgs liegen praktisch vor der Haustür. Für Erholung am Wasser sorgt das nahegelegene Strombad Kritzendorf oder das Strandbad Klosterneuburg, während das Stadtzentrum mit dem historischen Stift, zahlreichen Heurigen und dem Freizeitzentrum Happyland ein vielseitiges kulturelles und sportliches Angebot bietet. Hier verbinden sich entspanntes Wohnen im Grünen und die urbane Dynamik Wiens zu einer perfekten Einheit.

Energieeffizienz

HWB:
29,3 kWh/(m²*a)
HWB Klasse:
B
fGEE:
0,62
fGEE Klasse:
A+
Gebäudeart:
Wohnen
Ausstellung:
ab dem 1.5.2014
Gültig bis:
09.09.2034

Grundriss

Lageplan

3400 Klosterneuburg | Sankt Pölten (Land)

Lade...
Katharina Klasan

Katharina Klasan

KLASAN & Partner Immobilien GmbH & Co KG

Lade...

Fotomix

Gebäude Gebäude Lageplan EG OG DG Keller Schnitt Energieskala