NEU - # SQ - GROSSZÜGIGES BÜRO ca. 9 ZIMMER - PRATERSTRASSE - 1020 - U-BAHN NÄHE - U1

Immobilie zur Miete in 1020 Wien / Objektnummer: 21080

Preisinformationen

Kaution:
3 Bruttomonatsmieten

Fakten

Objektnummer:
21080
Balkon:
1
Balkonfläche:
1,98 m²
Wohnfläche:
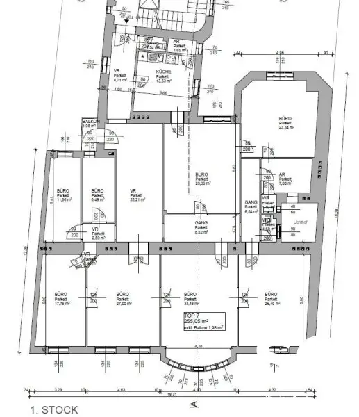
255,05 m²
Nutzfläche:
255,05 m²
Gesamtfläche:
255,05 m²
Zimmer:
9
Badezimmer:
1
Toilette:
2
Stockwerk:
2
Altbau:
Ja
Zustand:
Sanierungsbedürftig
Verfügbarkeit:
Verfügbar

Beschreibung

ALLGEMEINE OBJEKTINFORMATIONEN

*
Objektart: Büro / Geschäftsfläche

*
Adresse: Praterstraße, 1020 Wien

*
Nutzfläche: ca. 255 m²

*
Zimmer: 9 Büroräume

*
Balkon: ca. 2 m², hofseitig

*
Zustand: adaptierungsbedürftig

*
Mietdauer: 5 Jahre (befristet)

-------------

OBJEKTBESCHREIBUNG

Zur Vermietung gelangt eine großzügige Bürofläche in zentraler Lage des 2. Wiener Gemeindebezirks. Die Einheit befindet sich in der Praterstraße 40 und eignet sich ideal für Unternehmen, Kanzleien, Agenturen oder Praxisgemeinschaften, die eine gut angebundene Adresse mit flexiblem Raumangebot suchen.

Das Büro verfügt über insgesamt 9 getrennt begehbare Zimmer, welche eine vielseitige Nutzung und individuelle Raumgestaltung ermöglichen. Ein kleiner Balkon mit ca. 2 m², ausgerichtet in den ruhigen Innenhof, bietet eine angenehme Rückzugsmöglichkeit.

Die Gesamtfläche von ca. 255 m² befindet sich in einem adaptierungsbedürftigen Zustand, was zukünftigen Mietern die Möglichkeit bietet, die Räumlichkeiten nach eigenen Vorstellungen zu gestalten und anzupassen.

-------------

FLÄCHENAUFSTELLUNG

*
Büro-/Nutzfläche: ca. 255 m²

*
Balkon: ca. 2 m²

-------------

MIETKONDITIONEN

*
Gesamtmiete: EUR 3.000,- brutto

*
inklusive Betriebskosten und Umsatzsteuer

*
Kaution: 3 Bruttomonatsmieten

*
Mietvertrag: befristet auf 5 Jahre

-------------

LAGE & INFRASTRUKTUR

Die Praterstraße zählt zu den gefragtesten Geschäftsadressen im 2. Bezirk. Durch die Nähe zur Wiener Innenstadt sowie zum Prater bietet die Lage eine ausgezeichnete Kombination aus urbanem Umfeld und Erholungsmöglichkeiten.

Öffentliche Verkehrsmittel (U-Bahn, Straßenbahn, Bus) sowie zahlreiche Restaurants, Cafés und Einkaufsmöglichkeiten befinden sich in unmittelbarer Umgebung und gewährleisten eine optimale Erreichbarkeit für Mitarbeiter und Kunden.

-------------

BESONDERHEITEN AUF EINEN BLICK

*
Zentrale Lage in 1020 Wien

*
Großzügige Bürofläche mit 9 Zimmern

*
Hofseitiger Balkon

*
Flexible Gestaltungsmöglichkeiten durch adaptierungsbedürftigen Zustand

*
Attraktives Mietpreis-Leistungs-Verhältnis

-------------

Dieses Büro bietet ideale Voraussetzungen für Unternehmen, die Wert auf Lage, Raumangebot und individuelle Gestaltung legen.

_Alle Angaben ohne Gewähr. Änderungen und Irrtümer vorbehalten._

 

KONTAKT

* Herr Arakdi Moullaev, BA
* 0676844299202
* moullaev@stadtquartier.at

Hinweis gemäß Energieausweisvorlagegesetz: Ein Energieausweis wurde vom Eigentümer bzw. Verkäufer, nach unserer Aufklärung über die generell geltende Vorlagepflicht, sowie Aufforderung zu seiner Erstellung noch nicht vorgelegt. Daher gilt zumindest eine dem Alter und der Art des Gebäudes entsprechende Gesamtenergieeffizienz als vereinbart. Wir übernehmen keinerlei Gewähr oder Haftung für die tatsächliche Energieeffizienz der angebotenen Immobilie.

Wir weisen darauf hin, dass zwischen dem Vermittler und dem zu vermittelnden Dritten ein familiäres oder wirtschaftliches Naheverhältnis besteht.

Infrastruktur / Entfernungen

Gesundheit
Arzt <500m
Apotheke <500m
Klinik <1.000m
Krankenhaus <500m

Kinder & Schulen
Schule <500m
Kindergarten <500m
Universität <500m
Höhere Schule <1.500m

Nahversorgung
Supermarkt <500m
Bäckerei <500m
Einkaufszentrum <1.000m

Sonstige
Geldautomat <500m
Bank <500m
Post <500m
Polizei <500m

Verkehr
Bus <500m
U-Bahn <500m
Straßenbahn <500m
Bahnhof <500m
Autobahnanschluss <3.000m

Angaben Entfernung Luftlinie / Quelle: OpenStreetMap
Beschreibung weiterlesen

Lage und Verkehrsanbindung

Lage & Infrastruktur
Die Praterstraße zählt zu den gefragten Wohnlagen im 2. Bezirk. In unmittelbarer Nähe befinden sich zahlreiche Einkaufsmöglichkeiten, Restaurants, Cafés sowie Freizeit- und Erholungsangebote. Die Wiener Innenstadt ist in wenigen Minuten erreichbar.

Öffentliche Verkehrsmittel (U-Bahn, Straßenbahn, Bus) sind fußläufig erreichbar und garantieren eine hervorragende Anbindung an das gesamte Stadtgebiet.

NEstroyplatz

Grundriss

Lageplan

1020 Wien | Wien 2., Leopoldstadt

Lade...
Arkadi Moullaev

Arkadi Moullaev
Head of Sales

STADTQUARTIER Home GmbH

Lade...

Fotomix

Bild 1 Bild 2 Bild 3 Bild 4 Bild 5 Bild 6 Bild 7 Bild 8 Bild 9