NEU - #SQ - TEILAUSGEBAUTES DG - NÄHE AUGARTEN

Investment zum Kauf in 1200 Wien - Kaufpreis: 1.190.000 € / Objektnummer: 19487
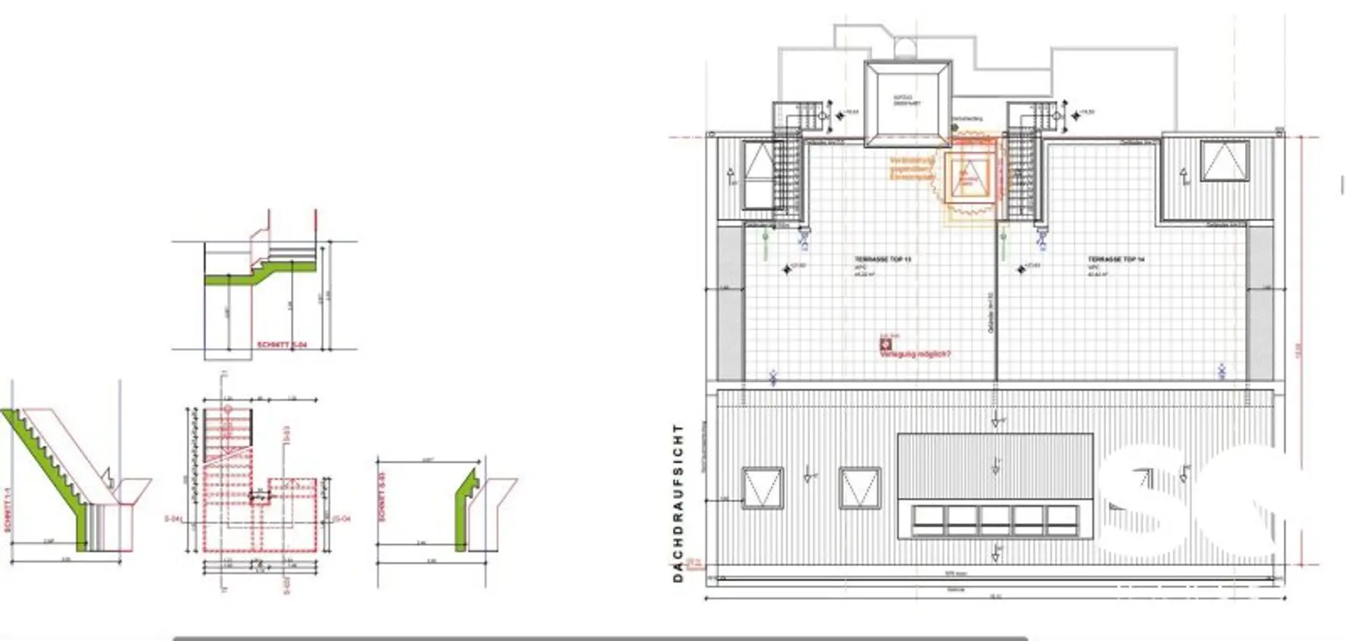
Ausstattung: Balkon Terrasse

Preisinformationen

Kaufpreis:
1.190.000 €
Kaufpreis/m²
4.462,78 €
Vermittlungsprovision:
Ja
Provision:
3% des Kaufpreises zzgl. 20% USt.

Fakten

Objektnummer:
19487
Objekttyp:
Investment
Balkon:
4
Terrasse:
2
Balkonfläche:
30,99 m²
Nutzfläche:
266,65 m²
Neubau:
Ja
Verfügbarkeit:
Verfügbar

Beschreibung

Kaufgegenständlich ist das gesamte teilausgebaute Dachgeschoss, welches sich auf einem Jahrhundertwendhaus mit schön strukturierter Fassade im sehr guter Lage des 20igsten Bezirks befindet. Die Bestandswohnungen im Haus befinden sich in der Sanierung und werden vom derzeitim² gen Eigentümer in die Vermietung gebracht. Das Gebäude befindet sich in einem guten Zustand und zeichnet sich durch eine ruhige ruhige Lage in einer Seitengasse, Nähe Augarten aus. 

Eckdaten im Überblick: 

NFL: ca. 267m² 
gewichtete NFL: ca. 308m² 

Beschreibung: 

Das sich bereits in Entwicklung befindende DG, besteht aus 4 Wohnungen und verfügt über eine aufrechte Baubewilligung. 

Im Vergleich zur baubewilligten Einreichplanung, wurden im Inneren bei der Ausführung noch Änderungen vorgenommen, sodass entweder ein Planwechsel bzw. nach Rücksprache mit dem zuständigen Referenten der MA 37 ein Fertigstellungsplan abzugeben ist, welcher diese Änderungen abbildet.

Die Außenhülle des Dachgeschosses ist großteils fertiggestellt. 

Allgemeinflächen & Bauzustand:

Im Zuge des Bauvorhabens sollen die Allgemeinbereiche saniert, sowie ein Lift eingebaut & Kellerabteile errichtet werden. Die Stromversorgung sowie die Warmwasser- & Heizungsversorgung + Zentrale sollen ebenfalls erneuert werden (teilweise bereits begonnen)

Kosten: 

KP:  € 1.190.000,- 

Provision: 3% vom KP zzgl. gesetzl. Mwst. 

Kontaktdaten: 

Für Fragen und Besichtigungen kontaktieren Sie bitte Frau Ines Guelmami unter 0676 40 60 310 oder unter ines.guelmami@stadtquartier.at 

Weitere Objekte auf: 

www.stadtquartier.at 

 

Hinweis gemäß Energieausweisvorlagegesetz: Ein Energieausweis wurde vom Eigentümer bzw. Verkäufer, nach unserer Aufklärung über die generell geltende Vorlagepflicht, sowie Aufforderung zu seiner Erstellung noch nicht vorgelegt. Daher gilt zumindest eine dem Alter und der Art des Gebäudes entsprechende Gesamtenergieeffizienz als vereinbart. Wir übernehmen keinerlei Gewähr oder Haftung für die tatsächliche Energieeffizienz der angebotenen Immobilie.

Wir weisen darauf hin, dass zwischen dem Vermittler und dem zu vermittelnden Dritten ein familiäres oder wirtschaftliches Naheverhältnis besteht.

Der Vermittler ist als Doppelmakler tätig.

Infrastruktur / Entfernungen

Gesundheit
Arzt <500m
Apotheke <500m
Klinik <1.000m
Krankenhaus <1.500m

Kinder & Schulen
Schule <500m
Kindergarten <500m
Universität <1.000m
Höhere Schule <1.000m

Nahversorgung
Supermarkt <500m
Bäckerei <500m
Einkaufszentrum <1.500m

Sonstige
Geldautomat <500m
Bank <500m
Post <500m
Polizei <1.000m

Verkehr
Bus <500m
U-Bahn <500m
Straßenbahn <500m
Bahnhof <500m
Autobahnanschluss <1.500m

Angaben Entfernung Luftlinie / Quelle: OpenStreetMap
Beschreibung weiterlesen

Lage und Verkehrsanbindung

Die Liegenschaft befindet sich an der Grenze zwischen dem 9. und dem 20. Wiener Gemeindebezirk und ist in U-Bahn nähe gelegen. Der Augarten und der Donaukanal sind in wenigen
Gehminuten zu erreichen. Der Augarten bietet eine schön angelegte Grünfläche mitten in der Stadt, die sich optimal für Sport, zum Spazieren und zum Verweilen an der frischen Luft
einlädt. Der Donaukanal eignet sich ebenfalls für sportliche Aktivitäten. In naher Umgebung finden Sie alle Geschäfte des täglichen Bedarfs sowie Restaurants und Cafés. Die Innenstadt ist auch bestens fußläufig erreichbar.


Öffentliche Verkehrsanbindung
ist gewährleistet durch:

- U4 Friedensbrücke
- Straßenbahn 31 (Klosterneuburgerstraße/Wallensteinstraße)
- Straßenbahn D (Franz Josefs-Bahnhof)

Wallensteinstraße

Grundrisse

Lageplan

1200 Wien | Wien 20., Brigittenau

Lade...
Ines Guelmami

Ines Guelmami
Senior Immobilienberaterin

STADTQUARTIER Home GmbH

Lade...

Fotomix

Bild 1 Bild 2