Stilvolle Balkonwohnung in Ruhelage – saniert, schlüsselfertig & perfekt angebunden

Wohnung zum Kauf in 1200 Wien - Kaufpreis: 209.000 € / Objektnummer: 8422/3896
Ausstattung: Barrierefrei Boden Fahrstuhl Bad Fahrradraum Fußbodenheizung Balkon

Preisinformationen

Kaufpreis:
209.000 €
Betriebskosten netto:
140,00 € / Monat

Fakten

Objektnummer:
8422/3896
Objekttyp:
Wohnung
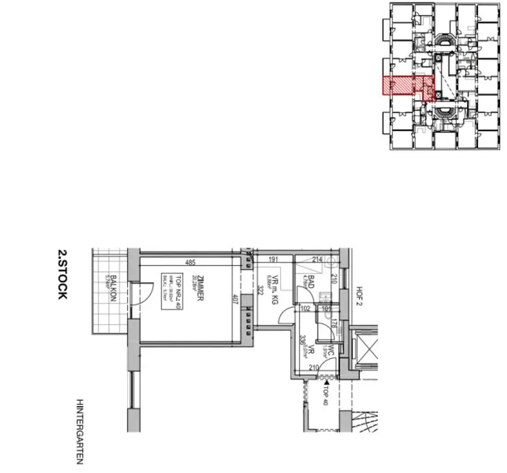
Balkon:
1
Balkonfläche:
6 m²
Keller Fläche:
2 m²
Wohnfläche:
39 m²
Zimmer:
1
Badezimmer:
1
Toilette:
1
Stockwerk:
2
Baujahr:
1915
Altbau:
Ja
Letzte Sanierung:
2016
Zustand:
Neuwertig
Verfügbarkeit:
Verfügbar

Beschreibung

STILVOLLE BALKONWOHNUNG IN RUHELAGE – SANIERT, SCHLÜSSELFERTIG & PERFEKT ANGEBUNDEN

 

Diese attraktive Eigentumswohnung befindet sich in ausgezeichneter Lage des 20. Wiener Gemeindebezirks Brigittenau und vereint urbanes Wohnen mit angenehmer Ruhelage. Die Wohnung liegt im 2. Stock eines gepflegten Altbaus und überzeugt durch ihren neuwertigen Zustand, eine durchdachte Raumgestaltung sowie ein angenehmes Wohnambiente.

Die Einheit verfügt über einen gut geschnittenen Wohn- und Schlafbereich, der vielfältige Gestaltungsmöglichkeiten bietet und sowohl für Eigennutzer als auch für Anleger eine ideale Grundlage darstellt. Große Fensterflächen sorgen für eine angenehme Belichtung und schaffen eine helle, freundliche Wohnatmosphäre.

Besonders hervorzuheben ist der Balkon, der zusätzlichen Freiraum im Alltag bietet und zum Entspannen im Freien einlädt. Durch die absolute Ruhelage innerhalb der Liegenschaft genießen Sie hier eine angenehme Wohnqualität – trotz der hervorragenden urbanen Infrastruktur der Umgebung.

Die Wohnung wurde 2016 umfassend saniert und präsentiert sich in einem sehr gepflegten, neuwertigen Zustand. Sie wird schlüsselfertig übergeben und ist mit einer funktionalen Einbauküche sowie einem modern ausgestatteten Badezimmer versehen. Dadurch ist die Immobilie sowohl für den sofortigen Eigenbezug als auch für eine rasche Vermietung bestens geeignet.

 

Ein Kellerabteil sorgt zusätzlich für praktischen Stauraum und rundet das Raumangebot sinnvoll ab.

 

Die Liegenschaft befindet sich in einer sehr gut angebundenen Wohnlage mit ausgezeichneter Infrastruktur. Einkaufsmöglichkeiten für den täglichen Bedarf, Apotheken, Ärzte, Schulen sowie gastronomische Angebote befinden sich in unmittelbarer Nähe und sind bequem fußläufig erreichbar. Auch die öffentlichen Verkehrsanbindungen sind hervorragend: Bus, Straßenbahn sowie U-Bahn-Stationen befinden sich nur wenige Gehminuten entfernt und ermöglichen eine schnelle Verbindung in die Wiener Innenstadt sowie in andere Stadtteile.

Diese Immobilie bietet somit eine ideale Kombination aus ruhigem Wohnen, zentraler Lage und solidem Wertsteigerungspotenzial – sowohl für Eigennutzer als auch als attraktive Anlagewohnung im wachsenden Wiener Immobilienmarkt.

Besonders attraktiv ist die Wohnung auch für Anleger: Dank der Einstufung im freien Mietzinsbereich
eröffnet sich ein interessantes Entwicklungspotenzial und eine flexible Mietpreisgestaltung. 

Besonderheiten: 
-Balkon mit ostseitiger Ausrichtung
-Lift im Haus
-Fußbodenheizung & Fernwärme

 

Für weitere Informationen oder zur Vereinbarung eines Besichtigungstermins wenden Sie sich bitte an:

Kontakt:
David Plishtiev
Geschäftsführender Gesellschafter
Adamant Immobilien GmbH
Naschmarkt 50, 1040 Wien, Österreich
📞 Mobil: +43 664 4664 776 [tel:+436644664776]
📞 Tel.: +43 1 375 0 200 [tel:+4313750200]
📧 E-Mail: d.plishtiev@adamant-immobilien.at
🌐 www.adamant-immobilien.at [http://www.adamant-immobilien.at]

Wir weisen darauf hin, dass zwischen dem Vermittler und dem zu vermittelnden Dritten ein familiäres oder wirtschaftliches Naheverhältnis besteht.

Der Vermittler ist als Doppelmakler tätig.

Infrastruktur / Entfernungen

Gesundheit
Arzt <500m
Apotheke <500m
Klinik <500m
Krankenhaus <500m

Kinder & Schulen
Schule <500m
Kindergarten <500m
Universität <1.000m
Höhere Schule <2.000m

Nahversorgung
Supermarkt <500m
Bäckerei <500m
Einkaufszentrum <500m

Sonstige
Geldautomat <500m
Bank <500m
Post <1.000m
Polizei <1.000m

Verkehr
Bus <500m
U-Bahn <500m
Straßenbahn <1.000m
Bahnhof <500m
Autobahnanschluss <1.000m

Angaben Entfernung Luftlinie / Quelle: OpenStreetMap
Beschreibung weiterlesen

Lage und Verkehrsanbindung

Millennium City
Donausinsel

Energieeffizienz

HWB:
36,15 kWh/(m²*a)
HWB Klasse:
B
fGEE:
1,01
fGEE Klasse:
C
Energieausweisart:
Energiebedarfs-ausweis
Gültig bis:
14.04.2025

Grundriss

Lageplan

1200 Wien | Wien 20., Brigittenau

Lade...
David Plishtiev

David Plishtiev
Geschäftsführender Gesellschafter

ADAMANT IMMOBILIEN GmbH

Lade...

Fotomix

Bild 1 Bild 2 Bild 3 Bild 4 Bild 5 Bild 6 Bild 7 Bild 8 Bild 9 Bild 10 Bild 11 Bild 12 Bild 13 Bild 14