NEU - Stilvolle Dachgeschoss-Maisonnette mit Terrasse Unbefristet vermietet - Rendite 3,85 %

Wohnung zum Kauf in 1170 Wien - Kaufpreis: 419.000 € / Objektnummer: 247/21994
Ausstattung: Barrierefrei Fahrstuhl Abstellraum Fernwärme Terrasse

Preisinformationen

Kaufpreis:
419.000 €
Kaufpreis/m²
4.086,21 €
Preisinfos:
GrESt 3,5% + Grundbucheintragung 1,1% des Gesamtkaufpreises / Vertragserrichtung 1,5% + Barauslagen, Beglaubigungs-, ggf. Treuhandkosten bei Finanzierung +USt. (WeiKes RA) / WE-Begründungsbeitrag € 500 +USt. / Provisio…
Vermittlungsprovision:
Ja
Provision:
3%

Fakten

Objektnummer:
247/21994
Objekttyp:
Wohnung
Terrasse:
1
Wohnfläche:
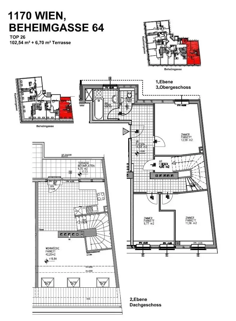
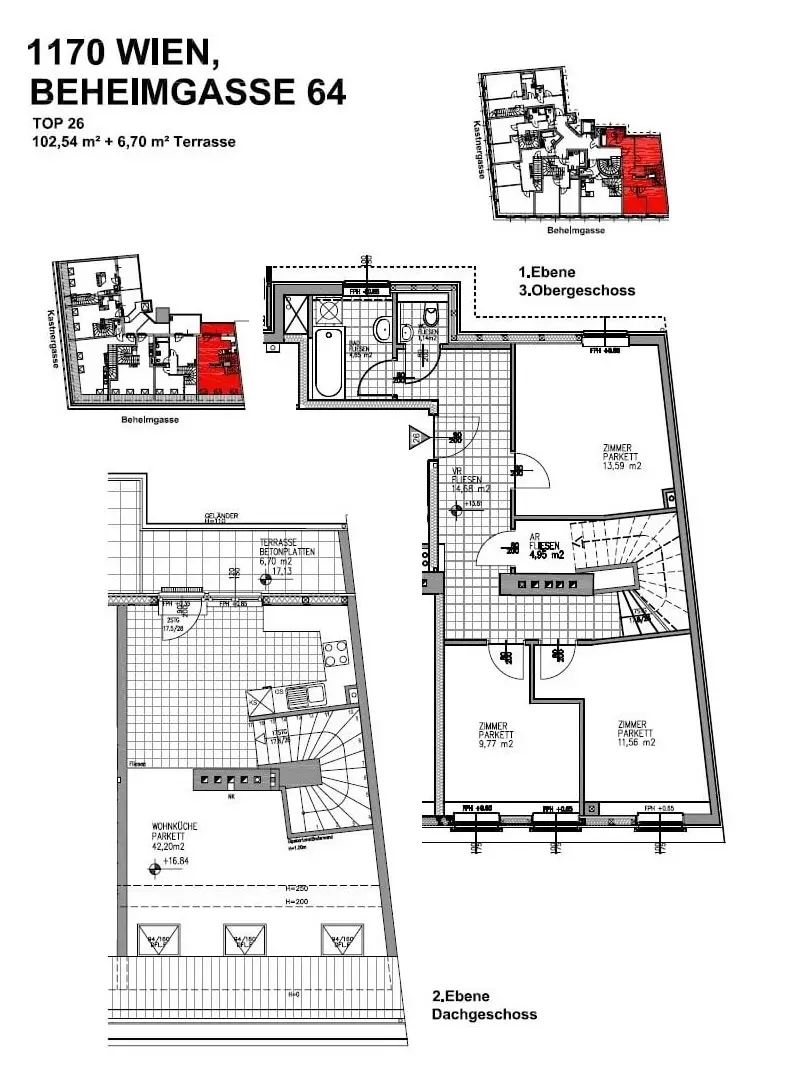
102,54 m²
Zimmer:
4
Badezimmer:
1
Toilette:
1
Baujahr:
2008/DG-Zubau
Neubau:
Ja
Verfügbarkeit:
Verfügbar

Beschreibung

In attraktiver Lage des 17. Bezirks gelangen in der Beheimgasse mehrere Wohnungen zum Einzelabverkauf. Das Angebot umfasst überwiegend unbefristet und befristet vermietete sowie einige leerstehende Einheiten mit Wohnflächen von ca. 25 m² bis 112 m²; Dachgeschosswohnungen verfügen über Freiflächen. Die ca. 102 m² große 4-Zimmer-Terrassenwohnung (Vorraum, Abstellraum, Wohnküche, 3 Zimmer, Bad mit Badewanne, Toilette) befindet sich im Dachgeschoss eines gepflegten Gründerzeithauses, das 2008 saniert und ausgebaut wurde und ist unbefristet vermietet. Sie bietet kurz-, mittel- und langfristig eine absolute Vorteilslage. Die Highlights: - Maisonnette - hervorragende Raumaufteilung - Dachgeschoss-Zubau 2008 (dadurch sehr guter Zustand) - ca. 7 m² Terrasse (ostseitig ausgeerichtet) - Aufzug vorhanden, barrierefrei erreichbar - Kellerabteil, ca. 2 m² - Kinderwagen- und Fahrradraum - Fernwärmeheizung - unbefristet vermietet (keine Eigennutzung bis zur Kündigung des Mieters möglich; bei einem neuen Mietverhältnis kann der freie Mietzins vereinbart werden; Mieterin Jahrgang 1975/1971) - derzeit monatliche Mieteinnahmen netto € 1.342,85 inkl. Inventarmiete (Betriebskosten nicht inkludiert) Lage-Highlights: - Grün & Erholung: Christine-Nöstlinger-Park direkt ums Eck – ideal für Spaziergänge, Sport und Freizeit - Öffentliche Anbindung: Straßenbahnlinien 43 und 9 in Gehweite, schnelle Verbindung ins Stadtzentrum - Nahversorgung & Alltag: Supermärkte, Bäckereien, Apotheken, Cafés und Restaurants zu Fuß erreichbar - Lokale Atmosphäre: Ruhige Wohnstraße mit typischem 17. Bezirk-Charme und lebendiger Nachbarschaft Der Kaufpreis für diese in ausgezeichneter Lage und Infrastruktur befindliche Eigentumswohnung beträgt Euro 419.000,-. Vereinbaren Sie noch heute einen Besichtigungstermin und lassen Sie sich von dieser besonderen Immobilie verzaubern. Diesbezüglich freuen wir uns über Ihre geschätzte Anfrage per Mail. Tipp: Die gesamte Anlage wird gerade parifiziert und abverkauft. Fragen Sie uns nach weiteren Objekten bzw. Paketangeboten! Wir möchten darauf hinweisen, dass unsere Antwort möglicherweise in Ihrem Spamordner landen könnte. Bitte kontrollieren Sie diesen, wenn Sie keine Rückmeldung auf Ihre Anfrage erhalten haben. Wir freuen uns auf Ihre Anfrage und einen gemeinsamen Besichtigungstermin!
Beschreibung weiterlesen

Lage und Verkehrsanbindung

Elterleinplatz

Energieeffizienz

HWB:
40,1 kWh/(m²*a)
HWB Klasse:
B
fGEE:
1,05
fGEE Klasse:
C

Grundrisse

Ruschitzka-Schilhorn Marion

Ruschitzka-Schilhorn Marion

IMV Immobilienmakler

Lade...

Fotomix

Haus II CIMG2233 CIMG2234 Haus IV Stiegenhaus V CIMG2231 CIMG2232 CIMG2222 CIMG2225 CIMG2235 CIMG2230 CIMG2226 Innenhof Lift