Stilvoller Altbau mit großzügigem Raumgefühl im Herzen des 3. Bezirks

Wohnung zum Kauf in 1030 Wien - Kaufpreis: 266.000 € / Objektnummer: 21331
Ausstattung: Boden Bad Etagenheizung WG geeignet

Preisinformationen

Kaufpreis:
266.000 €
Betriebskosten netto:
163,79 € / Monat
Vermittlungsprovision:
Ja
Provision:
3% des Kaufpreises zzgl. 20% USt.

Fakten

Objektnummer:
21331
Objekttyp:
Wohnung
Wohnfläche:
63,38 m²
Zimmer:
3
Badezimmer:
1
Toilette:
1
Stockwerk:
1
Baujahr:
1900
Altbau:
Ja
Zustand:
Gepflegt
Verfügbarkeit:
Verfügbar

Beschreibung

UNTERE VIADUKTGASSE

Im Herzen des traditionsreichen 3. Bezirks liegt dieses stilvolle Zinshaus aus der Jahrhundertwende – erbaut um 1900 und geprägt vom klassischen Wiener Altbaucharme. Mit seiner eleganten Fassade, den hohen Räumen und der charakteristischen Bausubstanz bietet das Haus eine außergewöhnliche Gelegenheit für Liebhaber*innen historischer Architektur. Die Liegenschaft umfasst zwei Stiegenhäuser mit jeweils drei Regelgeschoßen. Derzeit stehen fünf Wohnungen im Originalzustand zum Verkauf – ideal für all jene, die den unverfälschten Charakter eines klassischen Wiener Altbaus zu schätzen wissen.

Typische Gründerzeit-Elemente wie großzügige Raumhöhen, klassische Grundrisse und originale Ausstattungsdetails verleihen den Wohnungen ihren besonderen Reiz – ein selten gewordenes Stück Wiener Wohnkultur.

Balkone sind bei einigen Wohnungen möglich! Dies kann beim Kauf mit eingeplant werden. 

WOHNEN NACH MASS 

3SI Immogroup bietet Ihnen auch gerne die einzigartige Möglichkeit, mit Ihnen eine Sanierung nach Ihren Wünschen mit höchster Kompetenz durchzuführen. 

DIE LAGE

Die Lage überzeugt durch ihre gelungene Verbindung aus Urbanität und Ruhe: Der Grüne Prater, der Donaukanal, die Innenstadt sowie der Rochusmarkt sind in wenigen Minuten erreichbar. Auch die Anbindung an den öffentlichen Verkehr ist ausgezeichnet – ebenso wie die Nahversorgung und das vielfältige Angebot an Freizeit- und Erholungsmöglichkeiten.

Öffentliche Verkehrsmittel: Linie 1, Linie O, 4A, 74A ,U3, U4 – _Wien Mitte / Landstraße, _S1, S2, S3, S7 – _Schnellbahn-Anschluss Wien Mitte, _CAT – _City Airport Train zum Flughafen Schwechat_

 

Sie denken über den Verkauf Ihrer Immobilie nach?
Wir erzielen für Sie den bestmöglichen Preis – professionell, diskret und effizient.
Auf Wunsch kümmern wir uns auch um Finanzierung, Versicherung und alle weiteren Schritte.
Jetzt unverbindlich anfragen!
 

 

 

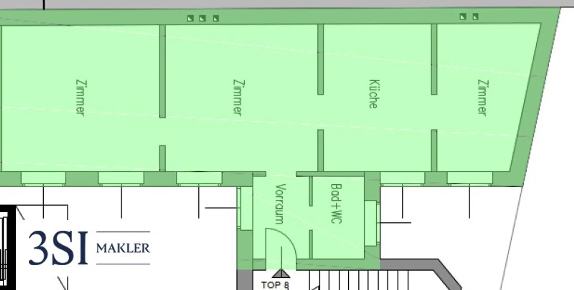
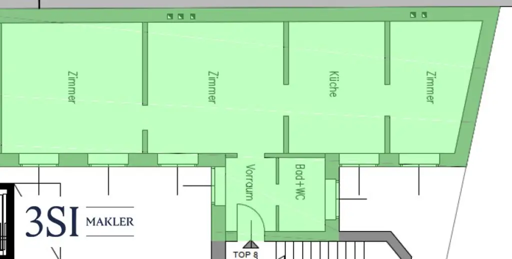
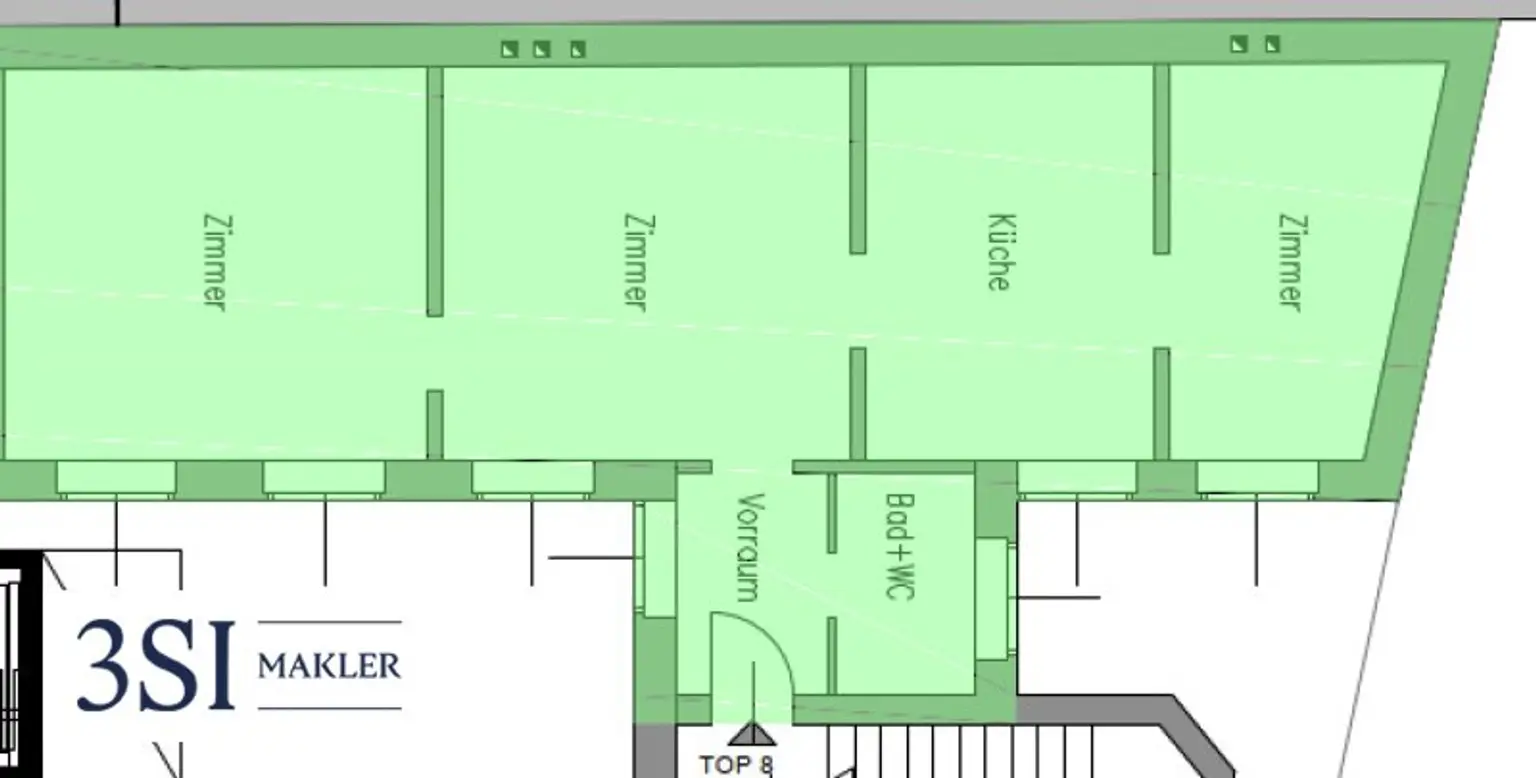
TOP 8

Zum Verkauf gelangt eine gepflegte 3-Zimmer-Wohnung im 1. Obergeschoss eines klassischen Wiener Altbaus. Mit einer Wohnfläche von rund ca. 68 m² bietet diese Immobilie viel Platz und Flexibilität – ideal für Familien, Paare oder alle, die großzügig wohnen möchten.

Die Raumaufteilung gestaltet sich wie folgt:

* Vorraum
* Wohnzimmer
* getrennte Küche
* 1.Schlafzimmer
* 2.Schlafzimmer
* Badezimmer mit Dusche 
* Toilette

Hinweis zur Mietzinsbildung:
Aufgrund der begünstigten und vorzeitigen Rückzahlung des ehemals gewährten Darlehens gemäß Rückzahlungsbegünstigungsgesetz (BGBl. Nr. 336/71 in der Fassung BGBl. Nr. 481/80) unterliegt die Wohnung keiner Mietzinsbeschränkung gemäß dem Mietrechtsgesetz. Die Vermietung erfolgt somit zum freien Mietzins.

NEBENKOSTEN

Der guten Ordnung halber halten wir fest, dass, sofern im Angebot nicht anders vermerkt, bei erfolgreichem Abschlussfall eine Provision anfällt, die den in der Immobilienmaklerverordnung BGBI. 262 und 297/1996 festgelegten Sätzen entspricht – das sind 3 % des Kaufpreises zzgl. 20 % USt. Diese Provisionspflicht besteht auch dann, wenn Sie die Ihnen überlassenen Informationen an Dritte weitergeben. Es besteht ein wirtschaftliches Naheverhältnis zum Verkäufer.

Die Vertragserrichtung und Treuhandabwicklung ist gebunden an die Kanzlei Mag. Schreiber A-1010 Wien, Schottenring 16. Die Kosten betragen 1,5 % des Kaufpreises zzgl. 20 % USt. sowie Barauslagen und Beglaubigung.

Wir weisen darauf hin, dass zwischen dem Vermittler und dem zu vermittelnden Dritten ein familiäres oder wirtschaftliches Naheverhältnis besteht.

Der Vermittler ist als Doppelmakler tätig.

Infrastruktur / Entfernungen

Gesundheit
Arzt <200m
Apotheke <75m
Klinik <750m
Krankenhaus <750m

Kinder & Schulen
Schule <100m
Kindergarten <275m
Universität <450m
Höhere Schule <1.250m

Nahversorgung
Supermarkt <50m
Bäckerei <100m
Einkaufszentrum <625m

Sonstige
Geldautomat <50m
Bank <300m
Post <75m
Polizei <525m

Verkehr
Bus <50m
U-Bahn <500m
Straßenbahn <50m
Bahnhof <450m
Autobahnanschluss <2.350m

Angaben Entfernung Luftlinie / Quelle: OpenStreetMap
Beschreibung weiterlesen

Lage und Verkehrsanbindung

Radetzkyplatz, Donaukanal, Hundertwasserhaus, Kunst Haus Wien

Weissgeberviertel, Radetzkyplatz, Donaukanal, Prater

Energieeffizienz

HWB:
133,9 kWh/(m²*a)
HWB Klasse:
D
fGEE:
2,26
fGEE Klasse:
D
Energieausweisart:
Energiebedarfs-ausweis
Gültig bis:
10.10.2033

Grundriss

Lageplan

1030 Wien | Wien 3., Landstraße

Lade...
Francis Broinger

Francis Broinger
Immobilienvermittlung

3SI Makler GmbH

Lade...

Fotomix

Bild 1 Bild 2 Bild 3