NEU - TOP-Lage nähe Stadtzentrum! Sanierungsbedürftig mit Ausbaupotential! Studie für 4 Wohneinheiten mit DG-Ausbau vorhanden!

Haus zum Kauf in 3100 St. Pölten - Kaufpreis: 499.000 € / Objektnummer: 8098
Grundrissplan gesamt
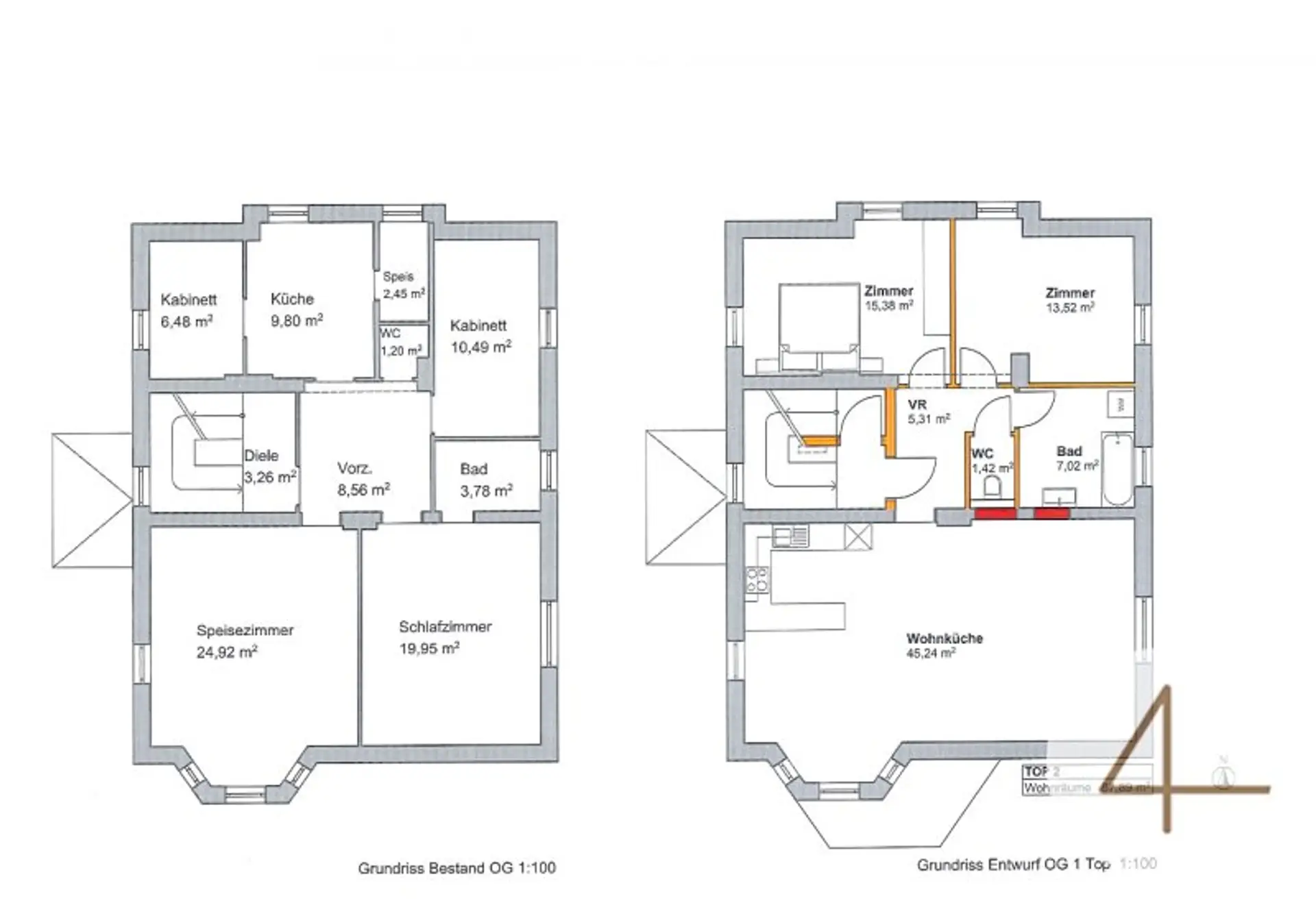
1. OG
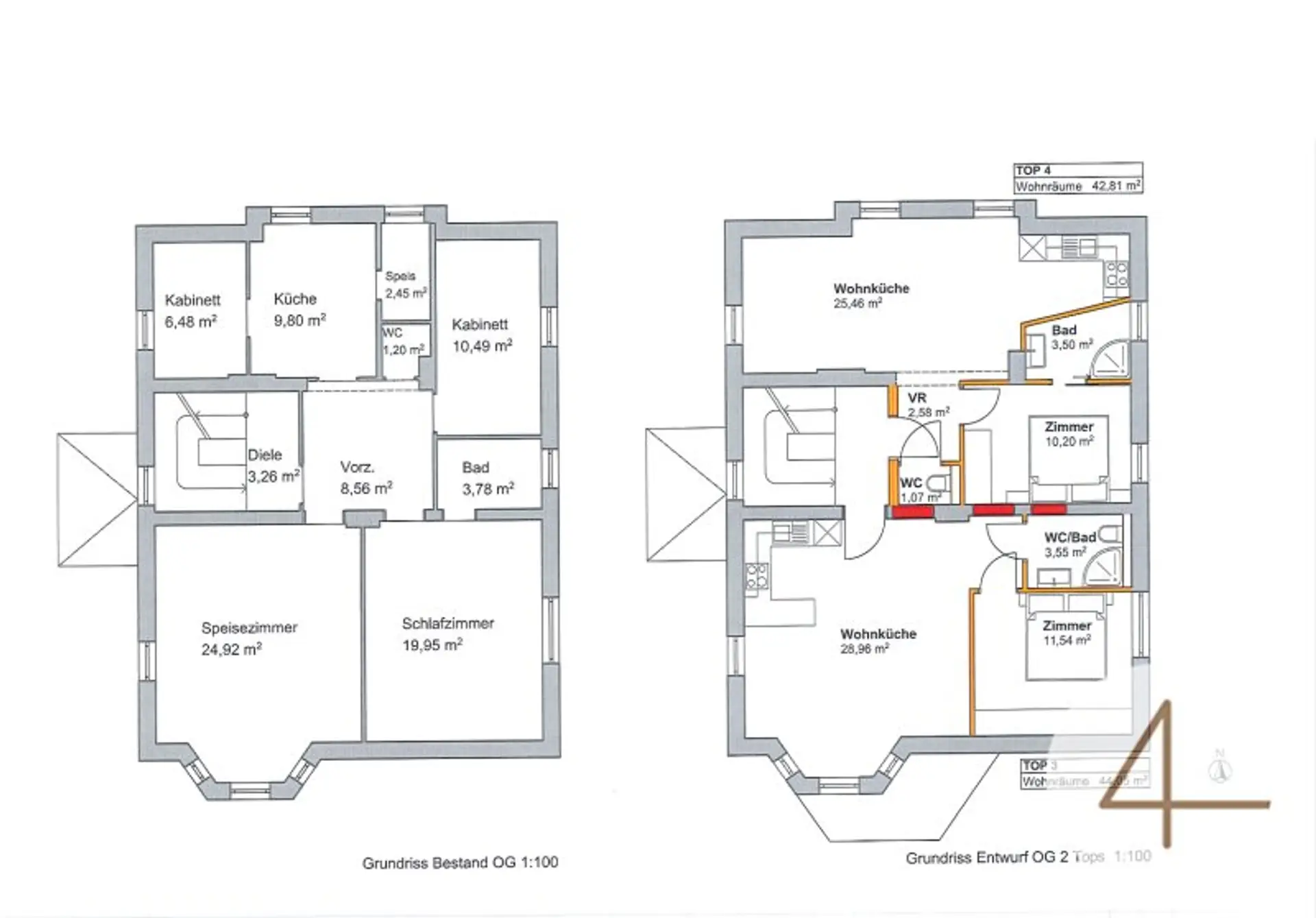
2. OG
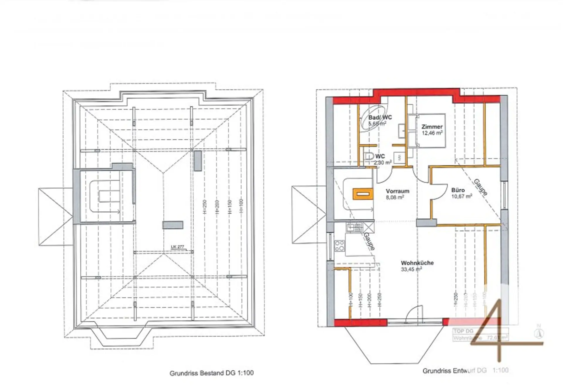
DG

Preisinformationen

Kaufpreis:
499.000 €
Vermittlungsprovision:
Ja
Provision:
3% des Kaufpreises zzgl. 20% USt.

Fakten

Objektnummer:
8098
Objekttyp:
Haus
Grundstücksfläche:
439 m²
Verfügbarkeit:
Verfügbar

Beschreibung

Eine Rarität mit viel Ausbaupotential!

Sichern Sie sich Ihre Traumimmobilie zum exklusiven Aktionspreis – nur für kurze Zeit verfügbar!

Geräumig und äußerst gut geschnitten präsentiert sich dieses 6-Zimmer-Zweifamilienhaus in bester Lage St. Pöltens.

Die Gesamtwohnfläche von ca. 175,26 m² erstreckt sich über zwei Geschosse. Derzeit befindet sich pro Geschoss eine Wohneinheit, verbunden sind die Wohneinheiten über eine innenliegende Treppe. Eine Studie über den Umbau in 4 Wohneinheiten inkl. Dachgeschoss-Ausbau liegt vor! 

Die Grundrisse der beiden Etagen ähneln einander und verfügen über:

* Vorraum 
* Wohnzimmer
* separate Küche
* 2 Schlafzimmer
* Kabinett
* Abstellraum
* Badezimmer
* WC

Eine großzügige Kellerfläche von ca. 91,87 m² bietet sich ebenso an.

Hier können Sie tatsächlich Ihrer Fantasie freien Lauf lassen, denn das Haus strotzt nur so vor Umbaupotential. Die Nähe zum Stadtzentrum, verbunden mit einer hervorragenden Infrastruktur sowie die umliegenden Naherholungsgebiete machen das Haus zu einem Juwel für Immobilienentwickler.
 

Kaufpreis 

Der Kaufpreis beläuft sich auf 499.000,- Euro. 
Die Provision beträgt 3% des Kaufpreises zzgl. USt.
 

Lage 

Die Nachbarschaft besteht zur linken Hand aus dem herrlichen Kaiserwald und zur rechter Hand aus demInnenstadtzentrum - ein gesunder Mix aus Stadt und Land. Man profitiert von einer tollen Infrastruktur und gleichzeitig von verschiedene Freizeitaktivitäten, die sich quasi vor der eigenen Haustür ausüben lassen.

Eine optimale Nahversorgung ist durch einen Spar und Lidl, die nur wenige Gehminuten entfernt sind, gegeben. Weitere Shoppingmöglichkeiten und Gastronomiebetriebe stehen im ebenso nur einen Spaziergang entfernten Stadtzentrum zur Verfügung.

Die Landesberufsschule St. Pölten ist in der unmittelbaren Umgebung. Ebenso zu Fuß erreicht werden können die BHAK, BHAS und HTL St. Pölten. Diverse Kindergärten und Volksschulen sind gut zu Fuß bzw. mit öffentlichen Verkehrsmitteln erreichbar. 

St. Pölten Hauptbahnhof (ca. 1,1km entfernt)
St. Pölten Alpenbahnhof (ca. 600m entfernt): R54, R55
Buslinien: 687 (ca. 500m), 481, 490, 491, 719 (ca. 650m), 491 (ca. 700m), 475 (ca. 750m) 

Gerne steht Ihnen Herr Michael Hellebrand für weitere Fragen bzw. flexibel gestaltbare Besichtigungstermine unter 0664 75346995 [tel:066475346995] zur Verfügung.  

www.4immobilien.at

Wir weisen ausdrücklich auf unser wirtschaftliches Naheverhältnis mit dem Abgeber/der Abgeberin und auf unsere Vermittlungstätigkeit als Doppelmakler hin. 

Irrtum und Änderungen vorbehalten!

Hinweis gemäß Energieausweisvorlagegesetz: Ein Energieausweis wurde vom Eigentümer bzw. Verkäufer, nach unserer Aufklärung über die generell geltende Vorlagepflicht, sowie Aufforderung zu seiner Erstellung noch nicht vorgelegt. Daher gilt zumindest eine dem Alter und der Art des Gebäudes entsprechende Gesamtenergieeffizienz als vereinbart. Wir übernehmen keinerlei Gewähr oder Haftung für die tatsächliche Energieeffizienz der angebotenen Immobilie.
Beschreibung weiterlesen

Lage und Verkehrsanbindung

Stadtzentrum, Kaiserwald
St. Pölten Hauptbahnhof (ca. 1,1km entfernt)
St. Pölten Alpenbahnhof (ca. 600m entfernt): R54, R55
Buslinien: 687 (ca. 500m), 481, 490, 491, 719 (ca. 650m), 491 (ca. 700m), 475 (ca. 750m)

Grundrisse

Lageplan

3100 St. Pölten | Sankt Pölten (Stadt)

Lade...
Michael Hellebrand

Michael Hellebrand
Immobilienmakler Wien - Niederösterreich

4immobilien

Lade...

Fotomix

Bild 1 Bild 2 Bild 3 Bild 4 Bild 5