NEU - Top Preis Top Ausstattung Barrierefrei

Wohnung zum Kauf in 3430 Tulln an der Donau - Kaufpreis: 274.958 € / Objektnummer: 8444
Ausstattung: Fahrstuhl Fußbodenheizung Balkon

Preisinformationen

Kaufpreis:
274.958 €
Vermittlungsprovision:
Ja
Provision:
3% des Kaufpreises zzgl. 20% USt.

Fakten

Objektnummer:
8444
Objekttyp:
Wohnung
Balkon:
1
Balkonfläche:
3,77 m²
Wohnfläche:
62,44 m²
Stockwerk:
1
Neubau:
Ja
Verfügbarkeit:
Verfügbar

Beschreibung

Die Wohnungen liegen in Kirchberg am Wagram 
ca. 16 Min. nach Krems an der Donau
ca. 14 Min. nach Tulln an der Donau
ca. 30 Min. nach Wien Nordbrücke
Bahnhof Kirchberg am Wagram -  Bahnhof Wien Heiligenstadt  (REX 4) 35 min.

Kurzinformation für eilige Leser

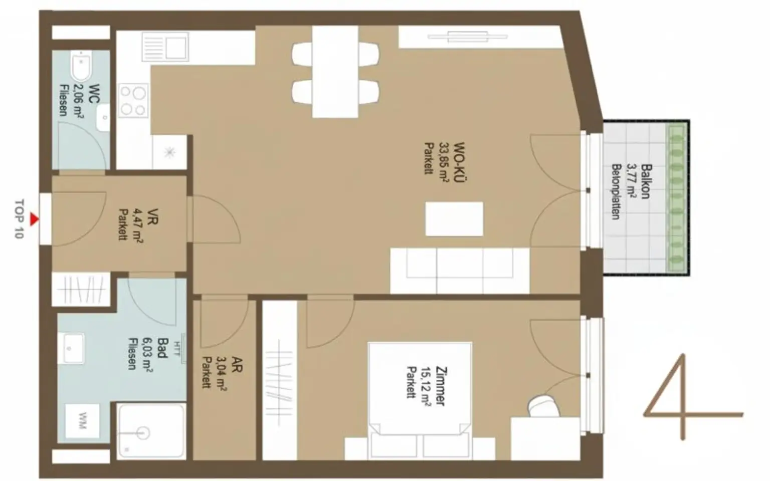
Wohnfläche: ca. 62,44 m²
Raumaufteilung lt.Plan
Vorraum 4,47m²
Wohnküche 33,65m²
Bad mit Dusche 6,03m²
WC 2,06m²
Abstellraum 3,04m²
großes Schlafzimmer 15,12m²
Balkon 3,77 m2
Kellerabteil

Gemeinschaftsräume: Fahrradraum, Kinderwagenraum, Gemeinschaftsgarten, Waschraum
Heizung: Fernwärme - Fußbodenheizung
Garagenplatz EUR 12.300,00,-

Barrierefreier Zugang zur Wohnung und Tiefgarage mit dem Lift

Die Wohnung liegt im 1. Obergeschoss und überzeugt durch eine durchdachte Raumaufteilung sowie helle, freundliche Räume.

Ausstattungsbeschreibung:

Feinsteinzeug-Fliesen 
Vollholz-Stabparkettböden
Elektrische Außenjalousien
Brandmelder
Handtuchtrockner

Weitere Top stehen zur Verfügung - Wohnfläche gerundet:

Top 7               Kaufpreis 269133,- 63 m2 Wohnfläche
Top 10             Kaufpreis 275000,- 62 m2 Wohnfläche
Top 12             Kaufpreis 277400,- 69 m2 Wohnfläche
Top 13             Kaufpreis 250500,- 60 m2 Wohnfläche
Top 14             Kaufpreis 288440,- 67 m2 Wohnfläche
Top 15             Kaufpreis 317010,- 74 m2 Wohnfläche
Top 16             Kaufpreis 347100,- 83 m2 Wohnfläche
Top 20             Kaufpreis 212749,- 50 m2 Wohnfläche
Top 22             Kaufpreis 325235,- 73 m2 Wohnfläche
Top 23             Kaufpreis 364182,- 85 m2 Wohnfläche

Wir weisen darauf hin, dass zwischen dem Vermittler und dem zu vermittelnden Dritten ein familiäres oder wirtschaftliches Naheverhältnis besteht.

Der Vermittler ist als Doppelmakler tätig.
Beschreibung weiterlesen

Energieeffizienz

HWB:
21,1 kWh/(m²*a)
HWB Klasse:
A
fGEE:
0,61
fGEE Klasse:
A+
Energieausweisart:
Energiebedarfs-ausweis

Grundriss

Lageplan

3430 Tulln an der Donau | Tulln

Lade...
Christian Kornmann

Christian Kornmann
Immobilienmakler Wien - Niederösterreich

4immobilien

Lade...

Fotomix

Bild 1 Bild 2 Bild 3 Bild 4 Bild 5 Bild 6 Bild 7 Bild 8