NEU - Unbefristet vermietet: teilrenovierte 3-Zimmer Wohnung im EG; Bäuerlegasse; Augarten nähe

Wohnung zum Kauf in 1200 Wien - Kaufpreis: 159.750 € / Objektnummer: 26323
Ausstattung: Boden Fahrstuhl Wohnküche / offene Küche Kabel/Satelliten-TV Zentralheizung

Preisinformationen

Kaufpreis:
159.750 €
Kaufpreis/m²
3.000,00 €
Betriebskosten netto:
124,21 € / Monat
Vermittlungsprovision:
Ja
Provision:
3% des Kaufpreises zzgl. 20% USt.

Fakten

Objektnummer:
26323
Objekttyp:
Wohnung
Keller Fläche:
3,3 m²
Wohnfläche:
53,25 m²
Zimmer:
3
Badezimmer:
1
Toilette:
1
Baujahr:
1899
Altbau:
Ja
Verfügbarkeit:
Verfügbar

Beschreibung

Geschätzte InteressentInnen!

Wir freuen wir uns über Ihre Kontaktaufnahme [http://www.sulek.immobilien/besichtigung] über das Kontaktformular.

_HINWEIS: Da die Wohnung derzeit bewohnt wird, können Besichtigungen aktuell nur in einer ähnlichen Wohnung im Erdgeschoss stattfinden._

Herzlichen Dank!

******************************

Alles auf einen Blick:

* Zimmer: 3
* Zustand: teilrenoviert
* Lage: Erdgeschoss
* Verfügbarkeit: unbefristet vermietet (monatliche Mieteinnahme Netto € 145,98 ohne Betriebskosten) 
* Gebäude: Altbau (Baujahr 1899)

 

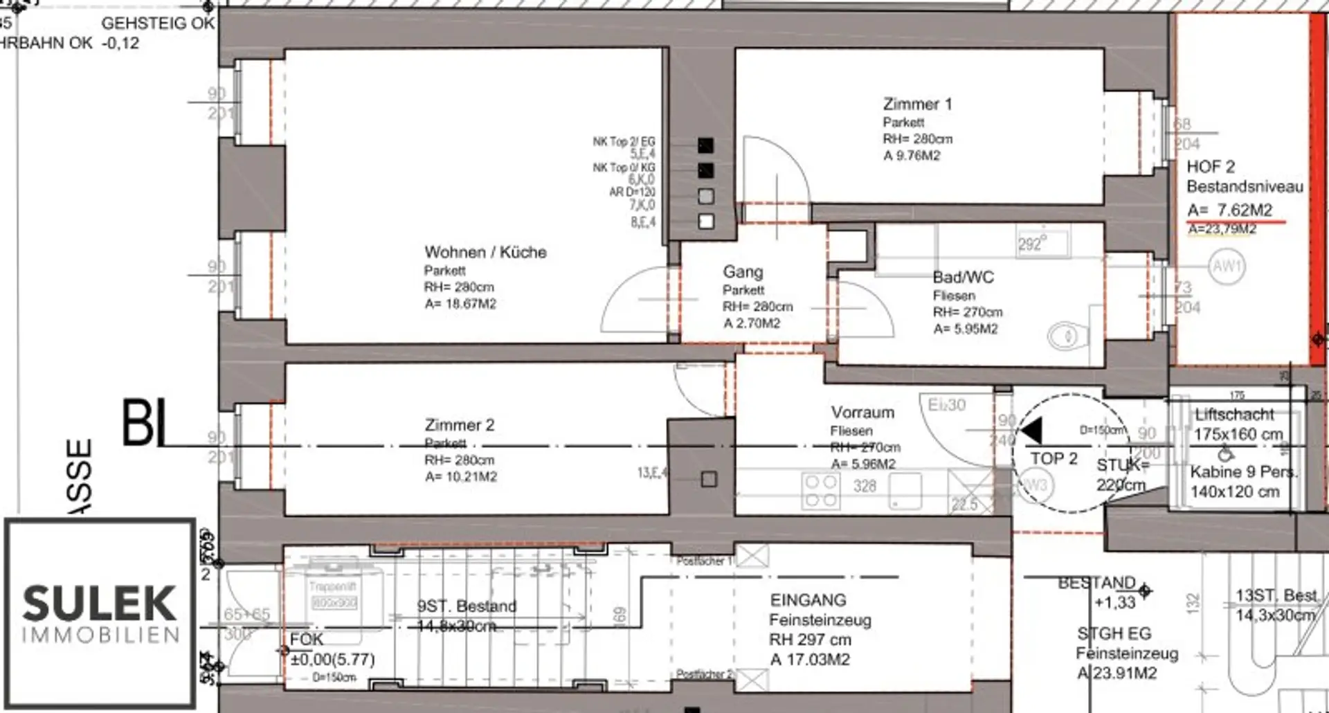
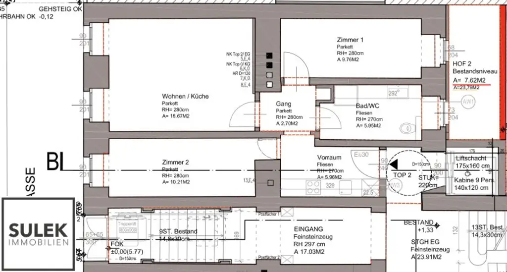
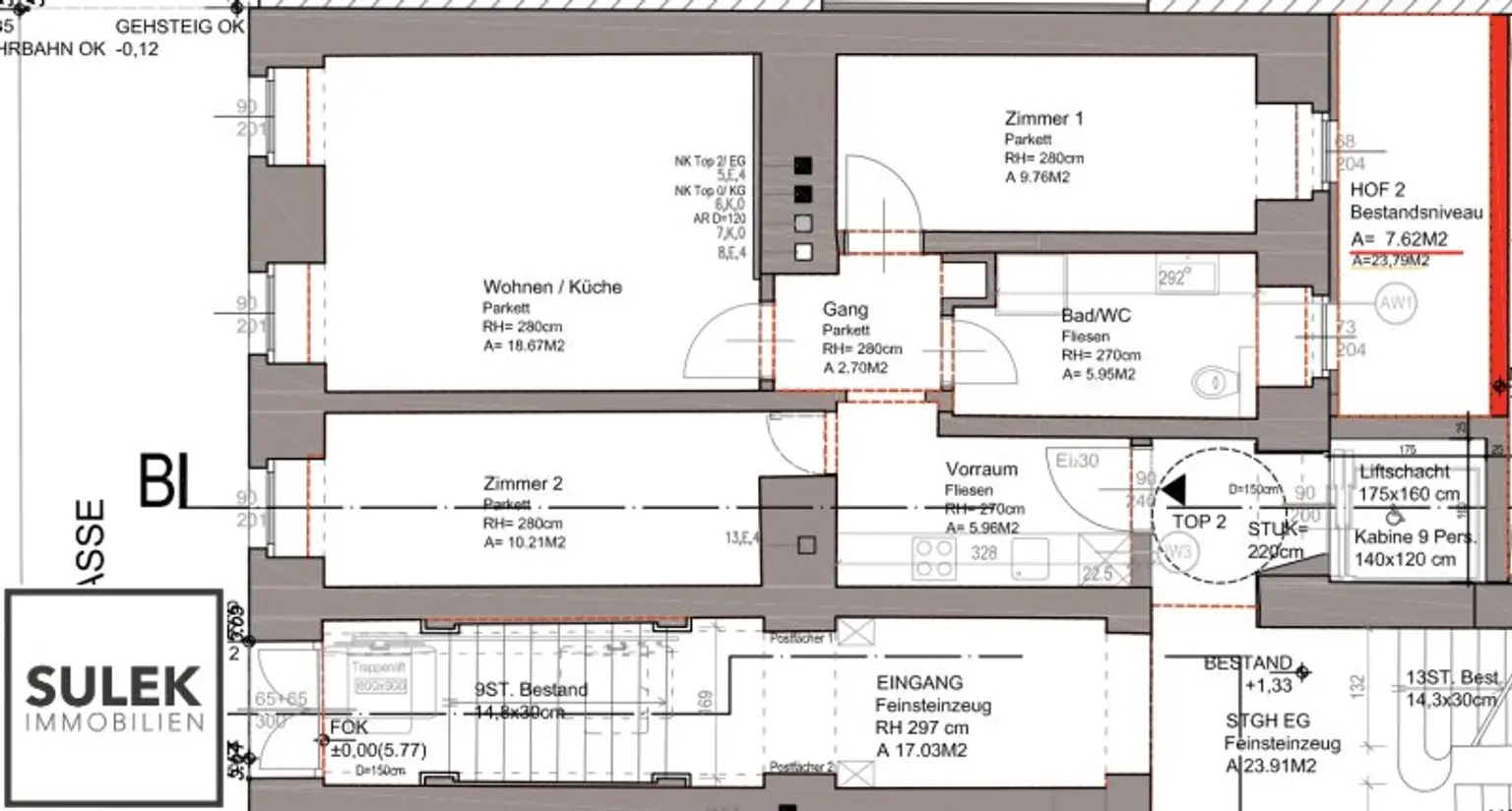
DIE WOHNUNG.

Zum Verkauf gelangt hier eine praktisch aufgeteilte 3 Zimmer Altbauwohnung. Die Wohnung befindet sich straßenseitig im Erdgeschoss (Lift vorhanden) und ist unbefristet vermietet.

Raumaufteilung:

Die durchgestreckte Wohnung umfasst eine Fläche von ca. 53 m². Über den zentralen Vorraum sind alle Räumlichkeiten dieser Wohnung begehbar:

* ein zwei Zimmer (je rd. 10 m²)
* ein Wohnzimmer (rd. 19 m²)
* vollausgestattete Küche (Kochnische im Flur)
* ein Badezimmer mit Dusche, WC und Fenster

Das Wohnzimmer sowie ein Zimmer sind straßenseitig ausgerichtet. Ein Zimmer sowie das Badezimmer sind hofseitig gelegen. Die Küche ist mit den notwendigen Geräten ausgestattet. Ein Kellerabteil ist vorhanden.

Geheizt wird mittels Gasetagenheizung (Fußbodenheizung). Weitere Detailinformationen und Unterlagen gerne auf Anfrage!

 

DIE LAGE.

Die Bäuerlegasse / Rauschstraße zeichnet sich durch ihre zentrale, aber dennoch ruhige Wohnlage aus. Besonders attraktiv ist die unmittelbare Nähe zum Augarten, die nur wenige Gehminuten entfernt ist. 

Die Nahversorgung ist als sehr gut zu beschreiben. Alles für den täglichen Bedarf ist fußläufig erreichbar:

*
Supermärkte: Ein Billa (ca. 3 Min - 230m) und ein Spar befinden sich in direkter Umgebung (ca. 3–5 Gehminuten). Weitere Discounter wie Lidl (ca. 3min - 200m), Penny (ca. 10min - 700m) Hofer sind ebenfalls schnell erreichbar. Hannovermarkt (700 m - 10 Min zu Fuß entfernt)

*
Gastronomie: Rund um den nahegelegenen Wallensteinplatz / Wallensteinstraße und in den Seitengassen finden sich zahlreiche Cafés & Restaurants.

*
Bildung & Gesundheit: Kindergärten, Volksschulen sowie Apotheken und praktische Ärzte sind im Viertel zahlreich vorhanden.

*
Freizeit: Der Augarten (ca. 400 m entfernt) und Donaukanal (ca. 850 m) bietet Sportmöglichkeiten, weitläufige Laufstrecken und Erholungsflächen. Die Donauinsel ist mit dem Rad oder den Öffis in ca. 10–15 Minuten erreichbar.

Die Anbindung an das Wiener Öffi-Netz ist sehr gut, da Sie sowohl U-Bahn- als auch Straßenbahnlinien in kurzer Distanz haben. Mit der Straßenbahnlinie 5 erreichen Sie den Praterstern (U1, U2, S-Bahn) in nur wenigen Minuten. Die Linie 33 bringt Sie direkt zum Schottentor (Universität/Zentrum):

* Straßenbahn 5 ( 85 m - 1 Gehminute) , 12, 31, 33 ( 600 m - 9 Minuten)
* U-Bahn U4 (Friedensbrücke - 900 m - rd. 13 Minuten Gehzeit; 3 Stationen mit der Straßenbahn)
* Buslinien 5A ( 85 m - 1 Gehminute), 5B - Nightline N31( 600 m - 9 Minuten)

*************************************

Sollten Sie nach Durchsicht des Inserats eine Besichtigung wünschen, bitten wir um Anfrage über das Kontaktformular [http://www.sulek.immobilien/besichtigung] und Nennung ein paar konkreter Terminvorschläge.

*************************************

_FÜR DIE RICHTIGKEIT UND VOLLSTÄNDIGKEIT DER ANGABEN KANN KEINE GEWÄHR BZW. HAFTUNG ÜBERNOMMEN WERDEN. _

_BITTE BEACHTEN SIE, DASS UNSER UNTERNEHMEN KEINE REISEKOSTEN ÜBERNIMMT, DIE IM ZUSAMMENHANG MIT DER BESICHTIGUNG VON IMMOBILIEN ANFALLEN. ALLE ANFALLENDEN KOSTEN FÜR ANREISE, UNTERKUNFT UND VERPFLEGUNG MÜSSEN VON DEN INTERESSENTEN SELBST GETRAGEN WERDEN. DES WEITEREN ÜBERNEHMEN WIR KEINE HAFTUNG FÜR KOSTEN, DIE DURCH KURZFRISTIGE STORNIERUNGEN ODER ÄNDERUNGEN VON BESICHTIGUNGSTERMINEN ENTSTEHEN KÖNNEN. WIR DANKEN IHNEN FÜR IHR VERSTÄNDNIS._
 

************************************

Noch nichts gefunden?
Wir informieren Sie als Erste/r über passende Immobilienangebote.

Legen Sie jetzt Ihren individuellen Suchagenten über folgenden Link an.
Wir senden Ihnen geeignete Immobilien unverbindlich vorab zu.

Suchagent anlegen [https://sulek-immobilien.service.immo/registrieren/de] - https://sulek-immobilien.service.immo/registrieren/de

Der Vermittler ist als Doppelmakler tätig.

Infrastruktur / Entfernungen

Gesundheit
Arzt <500m
Apotheke <500m
Klinik <1.000m
Krankenhaus <1.000m

Kinder & Schulen
Schule <500m
Kindergarten <500m
Universität <1.500m
Höhere Schule <1.000m

Nahversorgung
Supermarkt <500m
Bäckerei <500m
Einkaufszentrum <1.000m

Sonstige
Geldautomat <500m
Bank <500m
Post <500m
Polizei <500m

Verkehr
Bus <500m
U-Bahn <1.000m
Straßenbahn <500m
Bahnhof <1.000m
Autobahnanschluss <1.500m

Angaben Entfernung Luftlinie / Quelle: OpenStreetMap
Beschreibung weiterlesen

Lage und Verkehrsanbindung

Rauscherstraße, Bäuerlegasse, Wallensteinstraße, Augarten

Rauscherstraße, Walleinsteinstraße, Augarten

Energieeffizienz

HWB:
241 kWh/(m²*a)
HWB Klasse:
F
Energieausweisart:
Energiebedarfs-ausweis

Grundriss

Lageplan

1200 Wien | Wien 20., Brigittenau

Lade...
Kenan Bilgili

Kenan Bilgili
Immobilienvermittlung

Mittelsmann Philipp Sulek GmbH

Lade...

Fotomix

Bild 1 Bild 2 Bild 3