NEU - Urbanes Wohnen in naturnaher Umgebung

Wohnung zum Kauf in 2340 Mödling - Kaufpreis: 460.000 € / Objektnummer: 92226
Ausstattung: Barrierefrei Boden Fahrstuhl Bad Klimaanlage Abstellraum Fernwärme Terrasse Garten

Preisinformationen

Kaufpreis:
460.000 €
Provision:
Provision bezahlt der Abgeber.

Fakten

Objektnummer:
92226
Objekttyp:
Wohnung
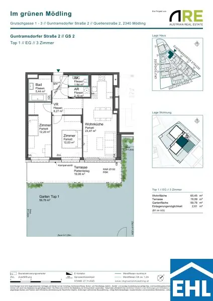
Terrasse:
1
Keller Fläche:
2,61 m²
Wohnfläche:
65,45 m²
Gartenfläche:
59,78 m²
Zimmer:
3
Badezimmer:
1
Toilette:
1
Baujahr:
2026
Neubau:
Ja
Zustand:
Erstbezug
Verfügbarkeit:
Verfügbar
Verfügbar ab:
Ende 2026

Beschreibung

Im Grünen Mödling – Wohnhausanlage am Fliegenspitz

Nachhaltig wohnen. Entspannt leben.

In einer der lebenswertesten Regionen südlich von Wien entsteht ein modernes Wohnensemble, das Architektur, Nachhaltigkeit und Lebensqualität harmonisch vereint. Zwischen Quellenstraße, Grutschgasse und Guntramsdorfer Straße gelegen, präsentiert sich die Wohnhausanlage am Fliegenspitz in Mödling als ruhiger Rückzugsort mit bester Anbindung und viel Grün – ideal für individuelle Lebensentwürfe.

Zehn moderne Baukörper mit drei bis vier Geschossen sind über ein barrierefreies, halböffentliches Wegesystem miteinander verbunden und schaffen ein offenes, nachbarschaftliches Wohnumfeld. Insgesamt entstehen 116 schlüsselfertige Wohnungen mit 1 bis 5 Zimmern, ergänzt durch private Eigengärten, Balkone oder Terrassen.

Haus A bietet zudem zwei moderne Praxisräumlichkeiten mit ca. 94 m² und ca. 217 m² mit Parkplätzen direkt vor dem Eingang.

Im Untergeschoß befinden sich Einlagerungsräume sowie 177 Stellplätze.

Großzügige Freibereiche und Kinderspielplätze sind integraler Bestandteil des Konzepts und sorgen für eine hohe Aufenthaltsqualität – für entspanntes Wohnen in jeder Lebensphase.

Geplante Fertigstellung: Ende 2026

In der hauseigenen Tiefgarage stehen Stellplätze ab EUR 25.000,-  zum Ankauf zur Verfügung.

Der Verkauf erfolgt provisionsfrei für den Käufer!

 

Das Projekt

* 116 Eigentums- und Vorsorgewohnungen mit 1 bis 5 Zimmern
* Wohnungsgrößen von ca. 31 bis 130 m²
* Private Freiflächen wie Gärten, Balkone oder Terrassen
* Einlagerungsräume im Unter- und Dachgeschoß
* 2 Praxisräumlichkeiten (belagsfertige Ausführung/Edelrohbau)
* 177 Kfz-Stellplätze in der Tiefgarage
* Ziegelmauerwerk mit integriertem Dämmstoff kombiniert mit Stahlbeton
* Gemeinschaftliche Freibereiche wie Gärten und Kinderspielplätze
* Kinderwagen- und Fahrradabstellräume

 

Die Ausstattung

* Heizung und Warmwasser mittels Kombination aus Geothermie und Fernwärme
* Wärmeabgabe bzw. Temperierung im Sommer über Bauteilaktivierung
* PV-Anlagen
* Vorrüstung Klimaanlagen für Dachgeschoßwohnungen 
* Kunststoff-/Alufenster mit 3-fach-Verglasung
* Beschattung mittels elektrisch betriebener Außenraffstores
* Weitzer Parkett, Eiche Kaschmir in den Wohnräumen
* Feinsteinzeug Cerabella Bari in den Nassräumen
* Hochwertige Sanitärausstattung

 

Die Lage

Im grünen Mödling vereinen sich Natur, Stadtleben und Lebensqualität auf besondere Weise. Eine ausgezeichnete Infrastruktur vor Ort bietet alles, was den Alltag angenehm und unkompliziert macht. Gleichzeitig lädt der angrenzende Wienerwald mit vielfältigen Freizeit-, Kultur- und Naturangeboten zur Erholung ein. Dank der sehr guten Anbindung sowie der Nähe zu Bahnhof und Autobahn ist Wien in rund 45 Minuten bequem erreichbar.

Die Mödlinger Innenstadt liegt nur 5–10 Minuten mit dem Rad, Auto oder Bus entfernt und ist auch fußläufig in etwa 10–15 Minuten erreichbar, der Bahnhof in ca. 20 Minuten.

Als ehemaliger Sitz der Babenberger überzeugt Mödling mit einem lebendigen Mix aus Geschichte, Kultur und urbanem Leben. Entlang der charmanten Hauptstraße finden sich zahlreiche Nahversorger, Fachärzte, Bäcker, Restaurants, Cafés, Geschäfte, Fitnessstudios, Banken und Museen – alles, was das tägliche Leben bereichert.

Buslinien

* Linie 1 (Bahnhof – Prießnitztal)
* Linie 3 (Bahnhof – WIFI/Mödlinger Zentrum)
* Linie 263 (Bahnhof – Guntramsdorf)

 

_Ganz in der Nähe der Anlage befindet sich ein weiteres Projekt – „Grüne Stadtvillen“ – in dem wir ebenso Eigentums- sowie Vorsorgewohnungen anbieten. Für nähere Informationen hierfür stehen wir selbstverständlich auch gerne zur Verfügung._

Einen detaillierteren Einblick finden Sie auf unserer EHL-Projekthomepage [https://www.ehl.at/wohnen/wohnprojekte/am-fliegenspitz-guntramsdorfer-strasse-2-2340-moedling]!

Wir weisen darauf hin, dass zwischen dem Vermittler und dem zu vermittelnden Dritten ein familiäres oder wirtschaftliches Naheverhältnis besteht.

Der Vermittler ist als Doppelmakler tätig.

Infrastruktur / Entfernungen

Gesundheit
Arzt <250m
Apotheke <175m
Klinik <650m
Krankenhaus <1.575m

Kinder & Schulen
Schule <325m
Kindergarten <325m
Höhere Schule <375m

Nahversorgung
Supermarkt <275m
Bäckerei <1.075m
Einkaufszentrum <1.200m

Sonstige
Bank <750m
Geldautomat <750m
Post <750m
Polizei <1.050m

Verkehr
Bus <75m
U-Bahn <6.125m
Bahnhof <1.150m
Autobahnanschluss <3.325m
Straßenbahn <3.775m

Angaben Entfernung Luftlinie / Quelle: OpenStreetMap
Beschreibung weiterlesen

Lage und Verkehrsanbindung

HTL Mödling

Energieeffizienz

HWB:
28,6 kWh/(m²*a)
HWB Klasse:
B
fGEE:
0,62
fGEE Klasse:
A+
Energieausweisart:
Energiebedarfs-ausweis
Gültig bis:
14.01.2035

Dokumente

Grundriss

Lageplan

2340 Mödling | Mödling

Lade...
Daniel Bolataschwili

Daniel Bolataschwili
Eigentumswohnungen

EHL Wohnen GmbH

Lade...

Fotomix

Bild 1 Bild 2 Bild 3 Bild 4 Bild 5 Bild 6 Bild 7