NEU - Verkauf mittels Bieterverfahren! Kaufen günstiger als Mieten! Leistbare 3 Zimmer Wohnung mit 2 Loggien - Wohnung mit viel Potenzial zum Selbstverwirklichen!

Wohnung zum Kauf in 2100 Korneuburg - Kaufpreis: 200.000 € / Objektnummer: 4773
Ausstattung: Fahrstuhl Garage Parkplatz Etagenheizung Loggia

Preisinformationen

Kaufpreis:
200.000 €
Betriebskosten netto:
217,85 € / Monat
Vermittlungsprovision:
Ja
Provision:
3% des Kaufpreises zzgl. 20% USt.

Fakten

Objektnummer:
4773
Objekttyp:
Wohnung
Loggia:
2
Keller Fläche:
5 m²
Wohnfläche:
97,23 m²
Loggia Fläche:
6 m²
Badezimmer:
1
Toilette:
1
Stockwerk:
1
Baujahr:
1974
Zustand:
Sanierungsbedürftig
Verfügbarkeit:
Verfügbar

Beschreibung

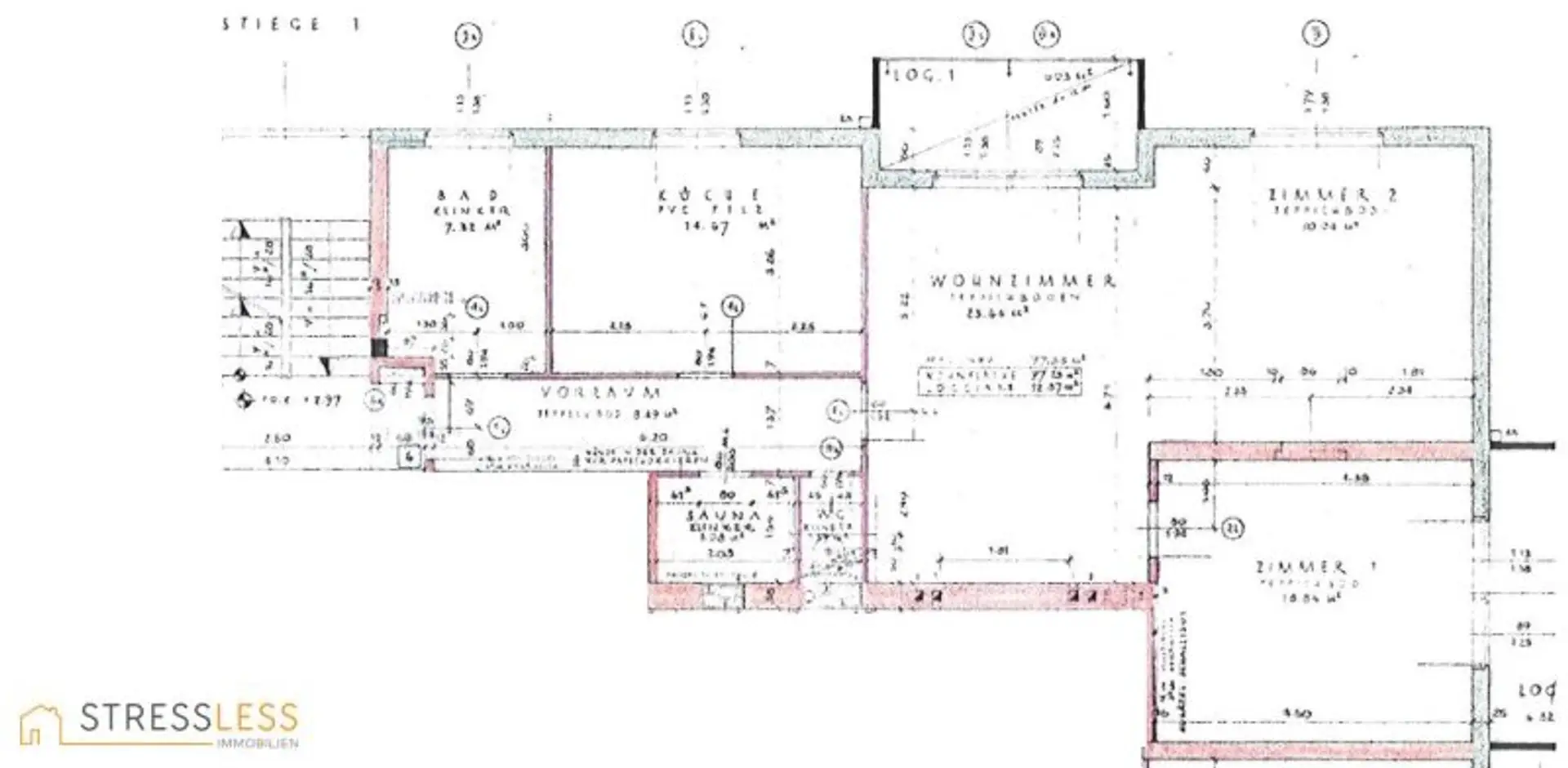
Hier gelangt eine - im 1,5 Liftstock gelegene, renovierungsbedürftige Wohnung zum Verkauf, die die Möglichkeit bietet, hier Ihren eigenen Stil einzubringen:

Sie bietet Ihnen

 

- ein zentrales Vorzimmer

- eine Küche

- ein helles Wohn-Esszimmer mit Ausgang auf die ca. 6 m² Loggia, Dieses Wohnzimmer könnte man abteilen, um ein zweites Schlafzimmer einzubauen.

-  Schlafzimmer - ebenfalls mit Ausgang auf eine Loggia

- ein Bad mit Handwaschbecken, Badewanne und Fenster

-  ein separates WC

- einen Abstellraum, der momentan eine Sauna beeinhaltet. 

Warmwasser und Heizung (Fernwärme) werden im Zuge der Betriebskosten vorgeschrieben und wird nach Wohnfläche abgerechnet.

Ein Kellerabteil gehört zur Wohnung und bietet ausreichend Stauraum für Vorräte etc.

Weiteres gehört eine Garage mit automatischem Toröffner zu dieser Wohnung, die zu einem zusätzlichen Kaufpreis von € 20.000,- mitverkauft wird.

 

Falls Sie eine Wohnung suchen, die Ihnen die Möglichkeit bietet, Ihre eigenen Ideen zu verwirklichen, freuen wir uns auf Ihren Anruf.

Frau Beatrice Hammerschmid steht Ihnen für Rückfragen bzw. Besichtigung vor Ort unter 0664 - 3998229 gern zur Verfügung.

 

Gerne können wir Ihnen durch unabhängige Finanzberater, mit denen wir zusammenarbeiten, helfen, Ihren Wohntraum zu erfüllen!

 

 

Bei dem Kaufpreis von € 200.000,-  handelt es sich um einen Startpreis, der nach oben oder unten korrigiert werden kann.
Da es sich um ein Bieterverfahren handelt, ist der Verkäufer NICHT verpflichtet, das höchste Kaufangebot anzunehmen!
Das Bieterverfahren kann jederzeit beendet werden, wenn der Abgeber ein Kaufanbot annimmt!!

 

Noch nichts gefunden? Wir informieren Sie über geeignete Immobilienangebote noch vor allen anderen.
Legen Sie jetzt Ihren individuellen Suchagenten unter folgendem Link an. Wir schicken Ihnen passende Immobilien exklusiv vorab zu.
Suchagent anlegen [https://stressless-immobilien.service.immo/registrieren/de] - https://stressless-immobilien.service.immo/registrieren/de

Der Vermittler ist als Doppelmakler tätig.

Bitte haben Sie dafür Verständnis, dass wir seit 13.Juni 2014 aufgrund der EU-Richtlinie (FAGG - Fern- und Auswärtsgeschäfte Gesetz) Detailinformationen, Besichtigungen sowie Zusendung von Exposés zu den angefragten Objekten erst dann umsetzen können, wenn Sie bestätigen, dass Sie unser sofortiges Tätigwerden wünschen und Sie über Ihre Rücktrittsrechte gemäß §11 FAGG von uns aufgeklärt wurden. Nachdem Sie uns Ihre Anfrage gesendet haben, erhalten Sie von uns alle wesentlichen Informationen per e-mail.

Die Angaben über das angebotene Objekt erfolgen mit der Sorgfalt eines ordentlichen Immobilienmaklers. Für die Richtigkeit solcher Angaben, die auf Informationen der über das Objekt Verfügungsberechtigten beruhen, wird keine Gewähr geleistet.

BITTE BEACHTEN SIE, DASS WIR AUFGRUND DER NACHWEISPFLICHT GEGENÜBER DEM EIGENTÜMER NUR ANFRAGEN MIT VOLLSTÄNDIGER ANGABE DER ANSCHRIFT UND ANGABEN ZUR PERSON (NAME, TELEFON, E-MAIL) BEARBEITEN KÖNNEN.

Eine Verrechnung unseres Honorars erfolgt nur dann, wenn es zu einem Vertragsabschluß zwischen VerkäuferIn/VermieterIn und KäuferIn/MieterIn kommt.
Beschreibung weiterlesen

Lage und Verkehrsanbindung

Nähe Bahnhof, Zentrum

Hauptplatz, Bahnhof

Energieeffizienz

HWB:
52,7 kWh/(m²*a)
HWB Klasse:
C
fGEE:
1,56
fGEE Klasse:
C
Energieausweisart:
Energiebedarfs-ausweis
Gültig bis:
14.02.2030

Lageplan

2100 Korneuburg | Korneuburg

Lade...
Beatrice Hammerschmid

Beatrice Hammerschmid
Office

STRESSLESS Immobilien GmbH

Lade...