Viel Platz & Flexibilität - Mitten in Wien: Neu adaptiertes 104 m² City-Apartment mit zwei Eingängen

Wohnung zur Miete in 1010 Wien - Gesamtmiete: 2.250,00 € / Objektnummer: 19741
Ausstattung: Boden Fahrstuhl Bad Gäste-WC Kabel/Satelliten-TV Fahrradraum Abstellraum Zentralheizung WG geeignet

Preisinformationen

Gesamtmiete:
2.250,00 € / Monat
Betriebskosten netto:
189,98 € / Monat
Umsatzsteuer:
204,55 €
Kaution:
7.000,00 €
Provision:
Gemäß Erstauftraggeberprinzip bezahlt der Abgeber die Provision.

Fakten

Objektnummer:
19741
Objekttyp:
Wohnung
Keller Fläche:
2 m²
Wohnfläche:
103,53 m²
Nutzfläche:
103,53 m²
Zimmer:
5
Badezimmer:
1
Toilette:
2
Stockwerk:
4
Baujahr:
1967
Neubau:
Ja
Zustand:
Gepflegt
Verfügbarkeit:
Verfügbar
Verfügbar ab:
ab sofort

Beschreibung

Willkommen in Ihrem neuen Zuhause im Herzen von Wien, im begehrten 1. Bezirk! Diese charmante Wohnung in der 4. Etage bietet Ihnen auf großzügigen 103,53 m² Wohnfläche die soeben neu adaptiert wurde.

Ideal nutzbar für Singles, Pärchen oder eine kleine Familie. Die Nutzung als 3er oder 4er WG ist auf Grund der (teilweise) Durchgangszimmer nicht gut umsetzbar.

Details:

* Ab sofort beziehbar
* Befristung auf vorerst 5 Jahre
* Kaution, ca, 3 BMM: 7.000 Euro
* Keine Mietvertragsgebühren 

(KI-Hinweis: Manche Bilder wurden mittels KI mit Möbeln ausgestattet, die Räume entsprechen den tatsächlichen Aufnahmen).

Lage und Umgebung:
Das Mietobjekt befindet sich im 1. Bezirk, der Top Adresse in Wien. Einmal um die Ecke gebogen steht man vor dem Wahrzeichen Wiens, dem "Steffl" und hat am Stephansplatz mit der U1 und der U3 gleich zwei U-Bahnlinien die einen bequem in die verschiedensten Bezirke bringen. Die Infrastruktur kann hier umfangreicher nicht sein - Sie erleben außerdem den besonderen Flair und die Schönheit des alten Wiens hautnah, Tag für Tag!

Ausstattung und Aufteilung:

Mit dem Lift gelangen Sie in den 4. Liftstock, sowohl das Haus als auch das Mietobjekt befinden sich in gepflegtem Zustand. Das Objekt besteht aus ursprünglich 2 Wohnungen, welche zusammengelegt wurde, jedoch nach wie vor über 2 Eingänge und 2 verschiedene Bereiche verfügt. 

Mit insgesamt 5 Zimmern (nicht alle zentral begehbar) präsentiert sich diese Immobilie als tolles, zentral gelegenes Zuhause für Familien, Paare oder auch als City-Apartment für Berufstätige, die das pulsierende Leben der Wiener Innenstadt schätzen. Es gibt 2 Toiletten, 1 Bad mit Wanne und einen Wirtschaftsraum mit Waschmschinenanschluss. Die Küche ist mit einer Küchenzeile ausgestattet und separat platziert. Dort ist ein kleiner Essbereich möglich und auch eine abgetrennte "Speis" zugänglich. Die zentrale Lage im ersten Bezirk ermöglicht Ihnen eine perfekte Anbindung an öffentliche Verkehrsmittel, zahlreiche Einkaufsmöglichkeiten, Restaurants, Kultur- und Freizeitangebote direkt vor der Haustür. Hier erleben Sie die Wiener Lebensqualität in ihrer schönsten Form.

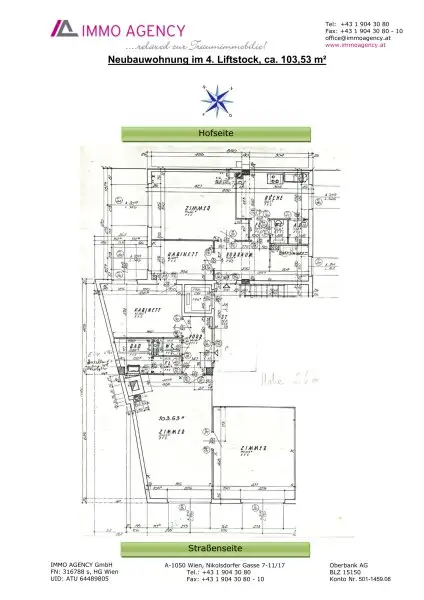
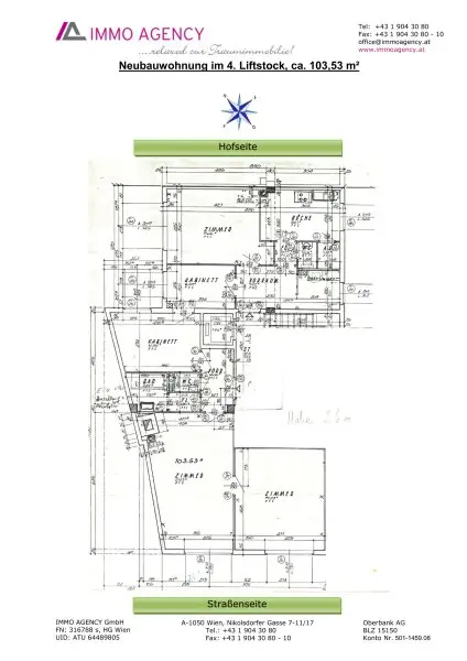
Grundriss:

* Vorzimmer, ca. 4,06 m²
* Wirtschaftsraum mit WM-Anschluss, ca. 4,69 m²
* WC, 1,05 m²
* Kabinett, ca. 10,52 m²
* Zimmer, ca. 21,27 m²
* Zimmer, ca. 19,23 m²
* Vorzimmer, ca. 9,22 m²
* Kabinett, ca. 6,48 m²
* Bad mit Wanne, ca. 3,67 m²
* WC, ca. 1,06 m²
* Küche, ca. 8,61 m²
* Abstellraum, ca. 1,31 m²
* Zimmer, ca. 15,46 m²
* GESAMT, ca. 103,53 m²
* Keller, ca. 2 m²

Das Haus verfügt über eine Hauszentralheizung, die monatlichen Kosten von aktuell 133,51 Euro sind verbrauchsabhängig und in der Miete noch nicht enthalten! Im Haus gibt es noch eine Abstellmöglichkeit für Fahrräder.

 

Energieklasse: C; HWB: 76,2 kWh/m2a  fGEE: C; 1,37

 

Sie haben Interesse an dieser Wohnung? Ich freue mich auf Ihre schriftliche Anfrage an egger@immoagency.at 

Wir weisen darauf hin, dass zwischen dem Vermittler und dem zu vermittelnden Dritten ein familiäres oder wirtschaftliches Naheverhältnis besteht.

Der Immobilienmakler erklärt, dass er – entgegen dem in der Immobilienwirtschaft üblichen Geschäftsgebrauch des Doppelmaklers – einseitig nur für den Vermieter tätig ist.
Beschreibung weiterlesen

Lage und Verkehrsanbindung

Diese charmante Wohnung liegt im Herzen von Wien, im 1. Bezirk nahe Stephansplatz und Hoher Markt. Die zentrale Lage bietet beste Infrastruktur, zahlreiche Restaurants, Cafés und kulturelle Highlights direkt vor der Tür. Die südöstliche Ausrichtung sorgt für helle, sonnige Räume und ein angenehmes Wohnambiente. Ideal für urbanes Leben.

Stephansplatz, Hoher Markt

Energieeffizienz

HWB:
76,2 kWh/(m²*a)
HWB Klasse:
C
fGEE:
1,37
fGEE Klasse:
C
Energieausweisart:
Energiebedarfs-ausweis
Gültig bis:
04.04.2030

Grundrisse

Lageplan

1010 Wien | Wien 1., Innere Stadt

Lade...
Daniel Egger

Daniel Egger
KAUF/MIETE - Wohnimmobilien in Wien und Umgebung

IMMO AGENCY GmbH

Lade...

Fotomix

Bild 1 Bild 2 Bild 3 Bild 4 Bild 5 Bild 6 Bild 7 Bild 8 Bild 9 Bild 10 Bild 11 Bild 12 Bild 13