NEU - Villa de Vie – stilvolles, modernes Wohnen in exklusiver Grünlage Hietzings. Provisionsfrei für Käufer.

Haus zum Kauf in 1130 Wien - Kaufpreis: 2.350.000 € / Objektnummer: 8026
Ausstattung: Barrierefrei Rollstuhlgerecht Boden Fahrstuhl Wohnküche / offene Küche Teeküche Bad Gäste-WC Sauna Wellnessbereich Klimaanlage Alarmanlage Sicherheitskamera Parkplatz Außenparkplatz Abstellraum Fußbodenheizung Terrasse WG geeignet

Preisinformationen

Kaufpreis:
2.350.000 €
Kaufpreis/m²
6.025,64 €

Fakten

Objektnummer:
8026
Objekttyp:
Haus
Terrasse:
4
Keller Fläche:
28,67 m²
Wohnfläche:
273 m²
Grundstücksfläche:
477,91 m²
Zimmer:
6
Badezimmer:
4
Toilette:
5
Baujahr:
2026
Neubau:
Ja
Zustand:
Erstbezug
Verfügbarkeit:
Verfügbar

Beschreibung

VILLA DE VIE – ZEITLOSE ARCHITEKTUR TRIFFT NACHHALTIGEN LUXUS IN HIETZING

Wohnen bedeutet heute mehr als Quadratmeter. Es ist ein Ausdruck von Lebensqualität, Anspruch und Weitblick. Ein Ort, der Ruhe schenkt, Energie gibt und zugleich den Wert des Investierten bewahrt.

Mit der Villa de Vie entsteht ein exklusives Wohnhaus in einer der begehrtesten Grünlagen Wiens – im 13. Bezirk. Dieses Projekt vereint moderne Architektur, hochwertige Materialien und ein zukunftsorientiertes Energiekonzept zu einem stimmigen Gesamtbild.

In Zeiten knappen Wohnraums sind Immobilien mit Substanz, Qualität und langfristigem Wert besonders gefragt. Diese Villa wurde für Menschen konzipiert, die nicht nur wohnen, sondern bewusst investieren möchten.

ARCHITEKTUR & KONZEPT

Das Projekt überzeugt durch klare Linien, intelligente Grundrisse und eine harmonische Einbettung in die grüne Umgebung. Natürliche Materialien, großzügige Glasflächen und eine moderne Formsprache schaffen ein elegantes, zugleich warmes Wohngefühl.

Ein besonderes Augenmerk wurde auf Nachhaltigkeit gelegt: Die Beheizung erfolgt über eine energieeffiziente Luftwärmepumpe, wodurch niedrige Betriebskosten und ein zeitgemäßes Energiekonzept gewährleistet werden.

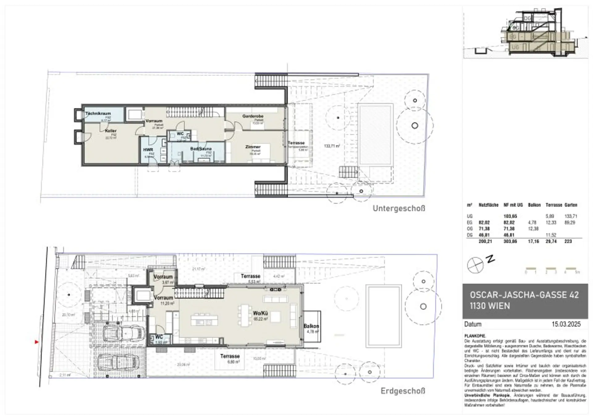
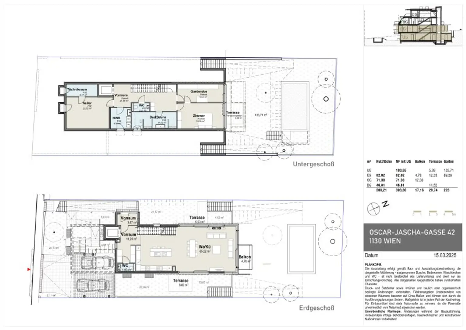
FLÄCHEN & RAUMAUFTEILUNG

Die Villa bietet eine Wohnfläche von rund 273 m², verteilt auf sechs großzügige Zimmer, und befindet sich auf einem Grundstück mit ca. 478 m².

Drei Schlafzimmer sind als Masterbereiche konzipiert und jeweils mit eigenem Bad inklusive WC ausgestattet.

*
Wohnebene:
Der offene Wohn- und Essbereich mit moderner Küche bildet das Herzstück des Hauses. Große Fensterflächen und der direkte Zugang zur Terrasse schaffen eine fließende Verbindung zwischen Innen- und Außenbereich.

*
Private Etagen:
Mehrere Schlafräume, Badezimmer sowie Ankleidebereiche bieten ausreichend Rückzugsorte für Familie und Gäste. Terrassen auf verschiedenen Ebenen erweitern den Wohnraum nach außen.

*
Dachgeschoss:
Ein exklusiver Masterbereich mit Bad en suite, Ankleide und direktem Terrassenzugang bietet Privatsphäre und Ausblick ins Grüne.

*
Gartengeschoss:
Diese Ebene eröffnet vielfältige Nutzungsmöglichkeiten – vom Gästezimmer über Fitness- oder Wellnessbereich bis hin zum direkten Zugang in den Garten. Der Außenbereich mit Terrasse und Pool schafft eine private Oase mitten in der Stadt.

AUSSTATTUNG & INDIVIDUALISIERUNG

Der Kaufpreis von € 2.350.000 umfasst die Fertigstellung der Außenstruktur inklusive:

*
vollständig ausgeführter Fassade

*
Terrassenflächen

*
hochwertiger Fenster mit Außenbeschattung

*
fertigem Dach

Die Innenräume werden individuell mit dem Käufer geplant und umgesetzt. Raumaufteilung, Materialien und technische Ausstattung können an persönliche Wünsche angepasst werden.

Optional umsetzbare Ausstattungsmerkmale:

*
Wellness- und Fitnessbereich mit Sauna und Dampfbad

*
Smart-Home-System für Haus- und Gartensteuerung

*
Klimaanlage, Solaranlage, Fußbodenheizung

*
Personenaufzug

*
Hochwertiges Lichtkonzept

*
Gartengestaltung und Pool

*
Zwei PKW-Stellplätze

NEBENKOSTEN & HINWEISE

Beim Erwerb der Immobilie fallen folgende Nebenkosten an:

*
3,5 % Grunderwerbsteuer

*
1,1 % Grundbucheintragungsgebühr

Alle Angaben beruhen auf Informationen des Abgebers und erfolgen ohne Gewähr. Änderungen, Irrtümer sowie Druck- und Satzfehler bleiben vorbehalten.

Die verwendeten Bilder sind Visualisierungen und dienen der Veranschaulichung. Abgebildete Einrichtungen und Möbel sind nicht Vertragsbestandteil.

Für weitere Informationen oder eine persönliche Beratung stehe ich Ihnen gerne zur Verfügung.

Anna Bogner
+43 676 58 60 106
office@bognerimmobilien.at

Ich freue mich auf Ihre Anfrage.

Hinweis gemäß Energieausweisvorlagegesetz: Ein Energieausweis wurde vom Eigentümer bzw. Verkäufer, nach unserer Aufklärung über die generell geltende Vorlagepflicht, sowie Aufforderung zu seiner Erstellung noch nicht vorgelegt. Daher gilt zumindest eine dem Alter und der Art des Gebäudes entsprechende Gesamtenergieeffizienz als vereinbart. Wir übernehmen keinerlei Gewähr oder Haftung für die tatsächliche Energieeffizienz der angebotenen Immobilie.

Wir weisen darauf hin, dass zwischen dem Vermittler und dem zu vermittelnden Dritten ein familiäres oder wirtschaftliches Naheverhältnis besteht.

Der Vermittler ist als Doppelmakler tätig.

Infrastruktur / Entfernungen

Gesundheit
Arzt <1.000m
Apotheke <1.000m
Klinik <1.500m
Krankenhaus <1.500m

Kinder & Schulen
Schule <500m
Kindergarten <1.000m
Universität <3.000m
Höhere Schule <5.500m

Nahversorgung
Supermarkt <500m
Bäckerei <1.500m
Einkaufszentrum <3.000m

Sonstige
Geldautomat <1.000m
Bank <1.000m
Post <1.000m
Polizei <2.500m

Verkehr
Bus <500m
Straßenbahn <1.000m
U-Bahn <4.000m
Bahnhof <2.500m
Autobahnanschluss <4.500m

Angaben Entfernung Luftlinie / Quelle: OpenStreetMap
Beschreibung weiterlesen

Lage und Verkehrsanbindung

Oscar-Jascha-Gasse, Lainzer Tiergarten, Hermesstrasse, Klinik Hietzing, Mauer

Lainzer Tiergarten, Hermesstrasse, Klinik Hietzing, Mauer

Grundrisse

Lageplan

1130 Wien | Wien 13., Hietzing

Lade...
Anna Bogner

Anna Bogner
Geschäftsführung

Bogner Immobilien GmbH

Lade...

Fotomix

Bild 1 Bild 2 Bild 3 Bild 4 Bild 5 Bild 6 Bild 7 Bild 8 Bild 9 Bild 10 Bild 11 Bild 12 Bild 13 Bild 14 Bild 15 Bild 16 Bild 17 Bild 18 Bild 19 Bild 20 Bild 21 Bild 22 Bild 23 Bild 24 Bild 25 Bild 26 Bild 27 Bild 28 Bild 29 Bild 30 Bild 31 Bild 32 Bild 33 Bild 34 Bild 35 Bild 36 Bild 37 Bild 38 Bild 39 Bild 40 Bild 41 Bild 42 Bild 43 Bild 44 Bild 45 Bild 46 Bild 47 Bild 48 Bild 49 Bild 50 Bild 51 Bild 52 Bild 53 Bild 54 Bild 55 Bild 56 Bild 57 Bild 58 Bild 59 Bild 60 Bild 61 Bild 62 Bild 63 Bild 64 Bild 65 Bild 66 Bild 67 Bild 68 Bild 69 Bild 70 Bild 71 Bild 72 Bild 73