NEU - Vorsorgewohnung | Stadt. Land. Fluss. | 2 - Zimmer Anlagewohnung - Top 3/19

Wohnung zum Kauf in 1220 Wien - Kaufpreis: 363.600 € / Objektnummer: 00220000710044
Ausstattung: Fußbodenheizung Balkon
IMG_2449
IMG_2445
IMG_2456
IMG_2453
IMG_2450
IMG_2454
IMG_2446
IMG_2452
IMG_2455
IMG_2448
IMG_2443
IMG_2444
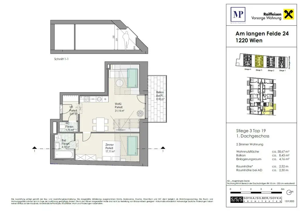
Top 19 Stiege 3

Preisinformationen

Kaufpreis:
363.600 €
Kaufpreis/m²
5.638,00 €
Preisinfos:
zzgl. PKW-Stellplatz: 28.500€ netto

Fakten

Objektnummer:
00220000710044
Objekttyp:
Wohnung
Balkon:
1
Balkonfläche:
8,43 m²
Wohnfläche:
58,67 m²
Zimmer:
2
Stockwerk:
2
Verfügbarkeit:
Verfügbar

Beschreibung

Vorsorgewohnungen: Am Langen Felde 24, 1220 Wien



Entdecken Sie exklusive Vorsorgewohnungen im Herzen des 22. Wiener Gemeindebezirks, wo urbaner Flair auf idyllisches Grün trifft. Das Projekt "Am Langen Felde 24" bietet Anleger:innen eine einzigartige Gelegenheit, in hochwertigen Wohnraum zu investieren, der Stadtleben und Natur harmonisch vereint.



Perfekte Lage & Optimale Verkehrsanbindung:

Gelegen in einer Top Lage des 22. Wiener Gemeindebezirks, genießen die Bewohner die unmittelbare Nähe zur Alten Donau und die vielfältigen Freizeitmöglichkeiten der Lobau. Die ausgezeichnete öffentliche Verkehrsanbindung garantiert, mit der U-Bahn Linie U1, den Buslinien 22A und 24A sowie der Straßenbahnlinie 26, eine schnelle Erreichbarkeit des Stadtzentrums und des Donauzentrums innerhalb von nur 7 Minuten.



Nachhaltige Bauweise & Exzellente Ausstattung: Mit dem Ziel, ein ÖGNI Zertifikat in Gold oder höher zu erlangen, stehen Nachhaltigkeit und Energieeffizienz im Vordergrund. Die Wohnungen überzeugen durch eine hochwertige und langlebige Ausstattung, die moderne Anforderungen an komfortables Wohnen erfüllt.



Exklusive Vorsorgeinvestition:

Die Vorsorgewohnungen in dem Projekt Am Langen Felde 24, 1220 Wien sind eine ideale Investition in die Zukunft. Sie vereinen hohe Wohnqualität mit beständiger Wertsteigerung. Die Preise werden als Nettokaufpreise (zzgl. USt.) ausgewiesen, wobei zusätzliche Kosten wie 3,5% Grunderwerbsteuer, 1,1% Grundbucheintragungsgebühr und ein Treuhandentgelt inkl. Vertragserrichtungsentgelt von 1,5% vom Gesamtkaufpreis (zzgl. USt und Barauslagen) anfallen.



Vorzüge für Anleger:

Mit einer perfekten Balance aus Lage, Ausstattung und Nachhaltigkeit, bietet "Am Langen Felde 24" eine attraktive Investitionsmöglichkeit. Die Mischung aus Eigentums- und Vorsorgewohnungen zielt darauf ab, Wohnraum für ein breites Spektrum an Mietern zu schaffen.



Erleben Sie die Zukunft des Investierens in Wohnimmobilien mit "Am Langen Felde 24", wo Sicherheit, Qualität und Nachhaltigkeit an erster Stelle stehen. Sichern Sie sich jetzt Ihre Vorsorgewohnung in einem der aufstrebendsten Bezirke Wiens.


Beschreibung weiterlesen

Energieeffizienz

HWB:
25 kWh/(m²*a)
HWB Klasse:
A
fGEE:
0,71
fGEE Klasse:
A
Energieausweis Ausstellungsdatum:
31.03.2022
Ausstellung:
ab dem 1.5.2014

Grundriss

Raiffeisen Vorsorge Wohnung

Raiffeisen Vorsorge Wohnung

Raiffeisen Vorsorge Wohnung GmbH

Lade...

Fotomix

IMG_2449 IMG_2445 IMG_2456 IMG_2453 IMG_2450 IMG_2454 IMG_2446 IMG_2452 IMG_2455 IMG_2448 IMG_2443 IMG_2444