Werkstatt/Lager/Büro im Gewerbegebiet, 8 Minuten zum Zentrum von Wiener Neustadt

Lager zur Miete in 2722 Winzendorf / Objektnummer: 1226/22096
Ausstattung: Zentralheizung

Preisinformationen

Gesamtmiete (exkl. USt.):
1.550,00 € / Monat
Betriebskosten netto:
250,00 € / Monat
Umsatzsteuer:
310,00 €
Miete/m² netto:
7,76 €
Kaution:
3 Bruttomonatsmieten
Vermittlungsprovision:
Ja
Provision:
5.580,00 € inkl. 20% USt.

Fakten

Objektnummer:
1226/22096
Objekttyp:
Lager
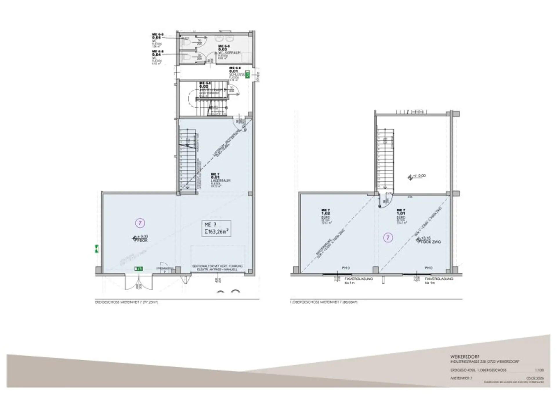
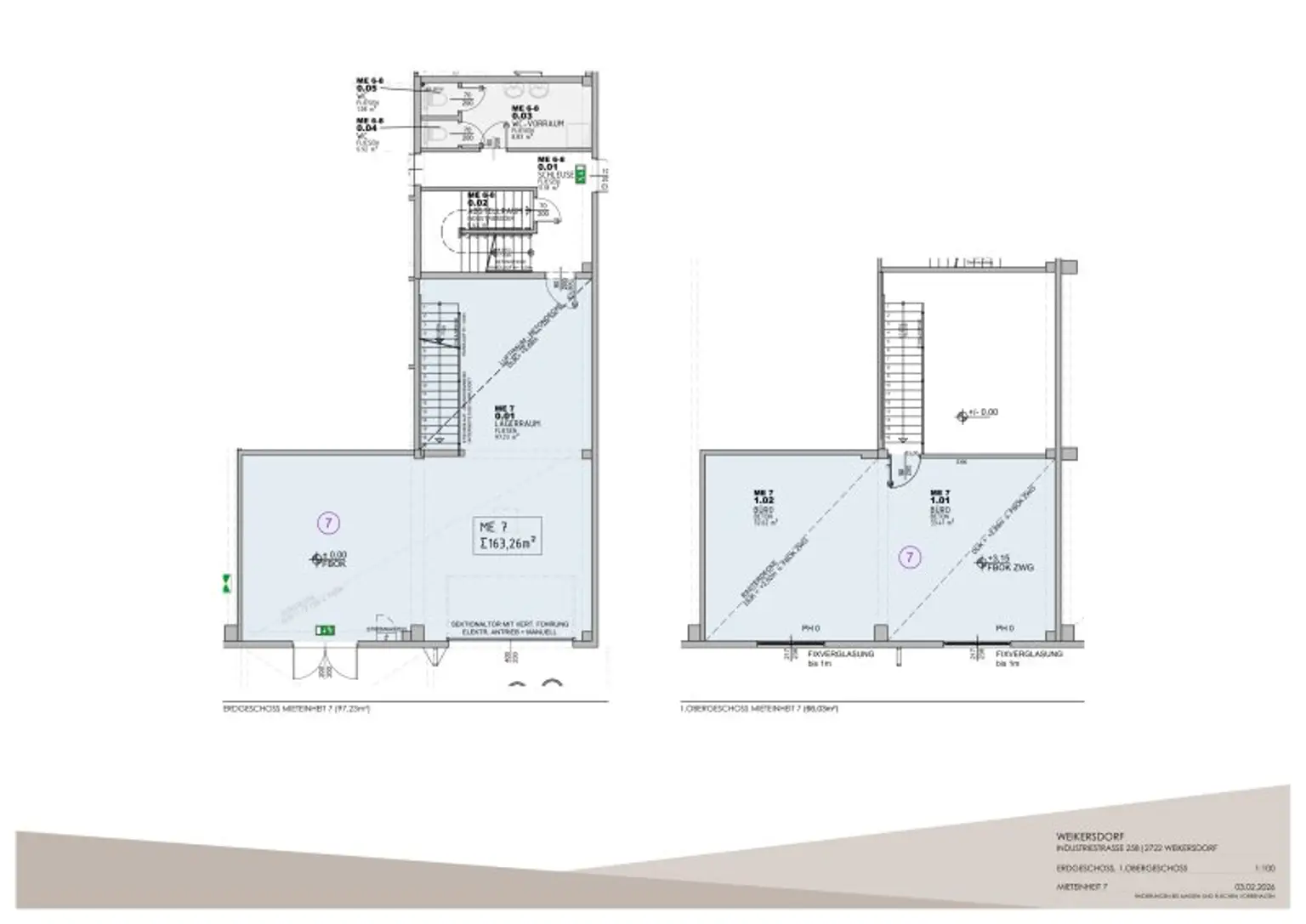
Nutzfläche:
167,6 m²
Bürofläche:
66 m²
Lagerfläche:
97 m²
Zimmer:
2
Toilette:
1
Neubau:
Ja
Zustand:
Neuwertig
Verfügbarkeit:
Verfügbar
Verfügbar ab:
sofort

Beschreibung

Das als Werkstatt/Lager/Büro nutzbare Objekt befindet sich im EG/OG und ist mit einer Tür und einer Garagentür versehen. Das Büro ist innen über Stufen erreichbar, WC ist im Stiegenhaus.

Lage:

2 min zur A2: Die Auffahrt Wr. Neustadt West befindet sich in ca. 1,5 km Entfernung.

Optional können auch weitere Lagerflächen angemietet werden

HWB 64 kWh/m² p.a.

Bitte beachten Sie, dass die von uns angegebenen Preise exklusive USt sind.

Nebenkosten bei Anmietung:
Kaution 3 BMM
Provision:3 BMM inkl. 20% USt
1% Vertragsvergebührung an das Finanzamt

Kontakt:
Für einen Besichtigungstermin oder nähere Informationen steht Ihnen Herr Augenhammer gerne jederzeit unter 0660 4678417 zur Verfügung.

Bitte beachten Sie, dass wir aufgrund der Nachweispflicht gegenüber dem Eigentümer nur Anfragen mit vollständiger Bekanntgabe von Name, Adresse, Telefon und E-Mail bearbeiten können.
Es wird darauf hingewiesen, dass wir als Doppelmakler tätig sind, und dass zwischen dem Abgeber und uns ein wirtschaftliches Naheverhältnis besteht. Die Überwälzung der Vermieterprovision auf den Mieter nach §12 IMVO wird durch Abschluss des Mietvertrags vom Mieter akzeptiert.

Wir weisen darauf hin, dass zwischen dem Vermittler und dem zu vermittelnden Dritten ein familiäres oder wirtschaftliches Naheverhältnis besteht.

Der Vermittler ist als Doppelmakler tätig.

Infrastruktur / Entfernungen

Gesundheit
Arzt <3.100m
Apotheke <3.400m
Klinik <4.675m
Krankenhaus <5.500m

Kinder & Schulen
Schule <2.500m
Kindergarten <2.575m
Höhere Schule <5.175m
Universität <6.350m

Nahversorgung
Supermarkt <2.475m
Bäckerei <2.875m
Einkaufszentrum <3.350m

Sonstige
Bank <2.475m
Geldautomat <2.475m
Post <2.900m
Polizei <4.150m

Verkehr
Bus <850m
Autobahnanschluss <1.600m
Bahnhof <2.250m
Flughafen <4.825m

Angaben Entfernung Luftlinie / Quelle: OpenStreetMap
Beschreibung weiterlesen

Lage und Verkehrsanbindung

2 min zur A2 | Wr. Neustadt West

Energieeffizienz

HWB:
37,6 kWh/(m²*a)
HWB Klasse:
B
fGEE:
0,85
fGEE Klasse:
A
Energieausweisart:
Energiebedarfs-ausweis

Dokumente

Grundriss

Lageplan

2722 Winzendorf | Wiener Neustadt (Land)

Lade...
Markus Augenhammer

Markus Augenhammer

Boubeva Makler GmbH

Lade...

Fotomix

Bürohaus Bild 2 Bild 3 Bild 4 Bild 5 Bild 6