NEU - Wertbeständige Anlegerwohnungen nahe Donau und Millenium City

Wohnung zum Kauf in 1200 Wien - Kaufpreis: 204.600 € / Objektnummer: 3164
Ausstattung:

Preisinformationen

Kaufpreis:
204.600 €
Preisinfos:
Fixpreis
Provision:
3.00 %

Fakten

Objektnummer:
3164
Objekttyp:
Wohnung
Baujahr:
2024
Verfügbarkeit:
Verfügbar

Beschreibung

PROJEKTBESCHREIBUNG
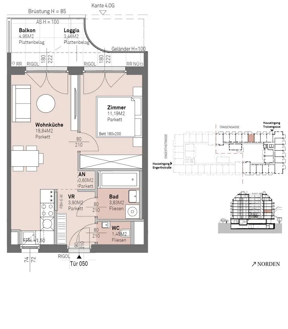
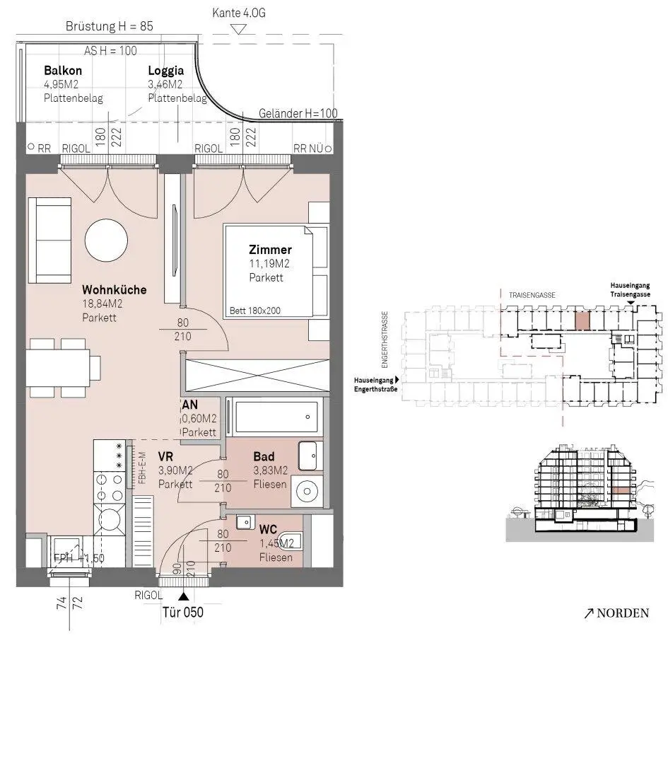
Die Traisengasse ist ein modernes Wohnprojekt, das viele kompakte Kleinwohnungen, aber auch großzügige Familienwohnungen bietet. Die Anlegerwohnungen verteilen sich auf sechs Regel- und zwei Dachgeschosse. Hochwertige Materialien, nachhaltige Bauweise und energieeffiziente Technik sorgen für ein angenehmes Wohnklima. Die Wohnungen sind optimal ausgerichtet, bieten viel Tageslicht und Ausblicke auf die Donau sowie grüne Umgebung. Balkone, Loggien und Terrassen erweitern den Wohnraum. Die Dachgeschoßwohnungen bieten luxuriösen Wohnkomfort für gehobene Ansprüche. Ein begrünter Innenhof bildet das Herzstück des rechteckig angelegten Gebäudes und schafft Raum für Erholung und Begegnung. Laubengänge und Gemeinschaftsbereiche fördern ein nachbarschaftliches Miteinander. Im Erdgeschoss befinden sich praktische Einrichtungen wie ein Supermarkt, Gemeinschaftsräume sowie Abstellräume für Kinderwägen und Fahrräder.

ZEITPLAN:

Baubeginn für das Wohnprojekt ist mit Ende 2026 geplant, mit einer Fertigstellung ist Ende 2028 zu rechnen.

AUSSTATTUNG
 Massivbauweise
 Parkettböden in Küche, Wohn- und Schlafräumen
 Kunststofffenster mit 3-Scheiben-Isolierverglasung
 außenliegender Sonnenschutz
 Balkone, (Dach)Terrassen, Loggien, Gärten
 Jugendspielplatz und Gemeinschaftsraum
 Fernwärme, Fußbodenheizung
 barrierefreie Personenaufzüge
 Kinderwagen- und Fahrradabstellräume
 Tiefgarage
 Kellerabteile

LAGEBESCHREIBUNG
Das Wohnprojekt Traisengasse 20–22 in Wien-Brigittenau zeichnet sich durch eine hervorragende Verkehrsanbindung aus: Die nahegelegenen Schnellbahnstationen Traisengasse und Handelskai sowie die Straßenbahnlinie 2 bieten schnelle Verbindungen ins Stadtzentrum, zum Flughafen und zu Wien Mitte. Die Lage in der Nähe der Donauinsel ermöglicht zudem naturnahe Erholung und vielfältige Freizeitaktivitäten und bietet somit einen wertvollen Ausgleich zum urbanen Leben, der besonders bei Familien, Sportbegeisterten und Ruhesuchenden beliebt ist. Das lebendige Viertel punktet darüber hinaus mit einer gut ausgebauten Infrastruktur, die zahlreiche Bildungs- und Gesundheitseinrichtungen. Auch das moderne Einkaufs- und Unterhaltungszentrum Millenium City, das über 100 Shops, gastronomisches Angebot und ein Kino beherbergt, ist in wenigen Minuten erreichbar.

 

Alle Angaben beruhen auf Informationen des Eigentümers sowie der Hausverwaltung und sind ohne Gewähr.

Doppelmaklertätigkeit:

Wir informieren Sie darüber, dass wir bei diesem Objekt eine Doppelmaklertätigkeit ausüben (§ 5 Abs. 3 MaklerG).

Haben Sie schon eine Finanzierung?

Wenn nicht, stellen wir gerne einen Kontakt zu einem Finanzierungsberater her. Wir arbeiten mit den beiden größten Anbietern am Markt zusammen, die durch Ihr breites Portfolio an Partnerbanken oftmals die besten Konditionen für Sie herausholen können!

Nebenkosten:

3,5% Grunderwerbsteuer; 1,1% Grundbucheintrag; ca. 1-3% Notar für Vertragserrichtung; 3% Vermittlungsprovision zuzügl. Ust.,

ggf. Finanzierungskosten und Gebühren der Bank oder des Kreditinstitutes.

 

 

Der Vermittler ist als Doppelmakler tätig.
Angaben gemäß gesetzlichem Erfordernis:
Heizwärmebedarf: 26.8 kWh/(m²a)
Klasse Heizwärmebedarf: B
Faktor Gesamtenergieeffizienz: 0.74
Klasse Faktor Gesamtenergieeffizienz: A

Beschreibung weiterlesen

Energieeffizienz

HWB:
26,8 kWh/(m²*a)
HWB Klasse:
B
fGEE:
0,74
fGEE Klasse:
A
Energieausweisart:
Energiebedarfs-ausweis

Lageplan

1200 Wien | Wien 20., Brigittenau

Lade...
Manfred Zeilinger

Manfred Zeilinger

RE/MAX Emotion in Wien-Penzing

Lade...

Fotomix

Aussenansicht Donau 1 Aussenansicht Engerthstrasse 1c Badezimmer _E6A5812 Photo_Neubau02_Innen Zimmer_ Grundriss