NEU - WOHNEN IM GRÜNEN - MIT KAUFOPTION - 2-ZIMMERWOHNUNG MIT LOGGIA

Wohnung zur Miete in 3033 Altlengbach - Gesamtmiete: 809,56 € / Objektnummer: 3666
Ausstattung: Fahrstuhl Garage Parkplatz Zentralheizung Loggia
Mietwohnung in Altlengbach, Obj. 3666
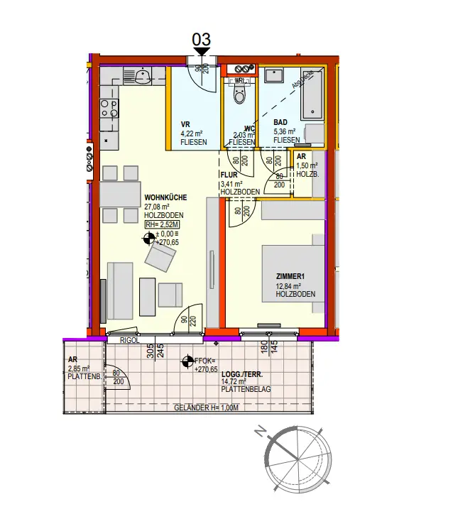
Grundriss St 2 T 3
Wohnzimmer
Loggia
Küche und Eingangsbereich
Schlafzimmer
Badezimmer
Abstellraum
WC

Preisinformationen

Gesamtmiete:
809,56 € / Monat

Fakten

Objektnummer:
3666
Objekttyp:
Wohnung
Loggia:
1
Keller Fläche:
2,71 m²
Wohnfläche:
56,44 m²
Zimmer:
2
Schlafzimmer:
1
Badezimmer:
1
Toilette:
1
Baujahr:
2023
Zustand:
Erstbezug
Verfügbarkeit:
Verfügbar

Beschreibung

WOHNEN IM GRÜNEN - MIT KAUFOPTION - 2-ZIMMERWOHNUNG MIT LOGGIA

BESCHREIBUNG: Neue, in Niedrigenergiebauweise errichtete Wohnhausanlage mit 26 Wohneinheiten. Jede der modernen Wohnungen verfügt entweder über einen Balkon, eine Loggia oder eine Terrasse. Beheizung und Warmwasserversorgung erfolgen über einen Fernwärmeanschluss sowie eine Photovoltaikanlage. Innerhalb der Anlage befindet sich ein Kinderspielplatz.
Nach fünfjähriger Mietdauer besteht eine KAUFOPTION!
Fordern Sie umgehend Ihre Unterlagen an.

AUSSTATTUNG: Fußbodenbeläge: in Bad, WC und Vorraum Fliesen. In Wohnküche, Zimmer, Flur und Abstellraum Holzboden. Auf Terrasse, Balkon und Loggia Betonestrichplatten. Fenster: Kunststofffenster mit Isolierverglasung und Rollläden.

RAUMAUFTEILUNG: Vorraum, WC, Bad, Abstellraum, Wohnküche, Zimmer, Loggia

ZUBEHÖR: Jeder Wohneinheit sind zwei KFZ-Stellplätze in der Tiefgarage sowie ein Einlagerungsraum zugeordnet.

LAGE: Die Wohnhausanlage befindet sich in Ortsrandlage der Marktgemeinde Altlengbach. Altlengbach liegt am Rande des Wienerwaldes und verfügt über zwei Kindergärten, eine Volksschule und eine Mittelschule. Für die Gesundheit sorgen diverse ortsansässige Ärzte. Weiters punktet der Ort mit seinem Anschluss an die Westautobahn: Wien Auhof erreichen Sie in ca. 20 Autominuten. Busverbindung Nr.456 nach Neulengbach mit Anbindung an die Westbahnstrecke.

ENERGIEKENNZAHLEN: HWB: 25,7 fGEE: 0,7

MONATLICHE KOSTEN:
EUR 809,56 (exklusive Strom, Heizung, Warmwasser und Parkplatzkosten)
WOHNKOSTENZUSCHUSS bei Erfüllung entsprechender Voraussetzungen.

Provisionsfrei für die Mieterseite! Wir sind ausschließlich für den Vermieter als Erstauftraggeber tätig, daher ist der/die Mietinteressent:in nicht provisionspflichtig.

Für weitere Informationen und Besichtigungen steht Ihnen Herr Mag. Veleddin Michael KIAMIL unter 0664 / 819 18 29 gerne zur Verfügung.

Wünschen Sie die Zusendung detaillierter Unterlagen zu dieser Immobilie benötigen wir bitte Ihre vollständigen Kontaktdaten. Ihre Daten werden nicht an Dritte weitergegeben und nach den Bestimmungen des Datenschutzgesetzes streng vertraulich behandelt

Finden Sie weitere Objekte unter www.immobilien-moertl.at oder
folgen Sie uns auf https://www.facebook.com/ImmobilienMoertl/ und auf Instagram: immobilien.moertl

IMMOBILIEN MÖRTL - Wir verkaufen Ihre Immobilie in Wien und Niederösterreich!
https://www.immobilien-moertl.at/1182743/Immobilienverkauf
Angaben gemäß gesetzlichem Erfordernis:
Heizwärmebedarf: 25.7 kWh/(m²a)
Faktor Gesamtenergieeffizienz: 0.7
Beschreibung weiterlesen

Energieeffizienz

HWB:
25,7 kWh/(m²*a)
fGEE:
0,7
Energieausweisart:
Energiebedarfs-ausweis

Lageplan

3033 Altlengbach | Sankt Pölten (Land)

Lade...
Veleddin Michael KIAMIL

Veleddin Michael KIAMIL

Immobilien Mörtl GesmbH

Lade...

Fotomix

Mietwohnung in Altlengbach, Obj. 3666 Grundriss St 2 T 3 Wohnzimmer Loggia Küche und Eingangsbereich Schlafzimmer Badezimmer Abstellraum WC