NEU - WOHNEN NAHE AUGARTEN | Charmante 3-Zimmer-Wohnung

Wohnung zur Miete in 8020 Graz - Gesamtmiete: 723,16 € / Objektnummer: 141/84964
Ausstattung: Fahrstuhl Fernwärme Zentralheizung
Vorraum
Wohnraum
Zimmer
Zimmer 1
Badezimmer
Innenhof
Fahrradabstellplatz
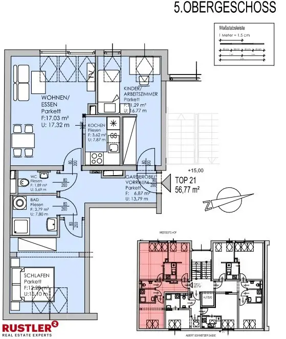
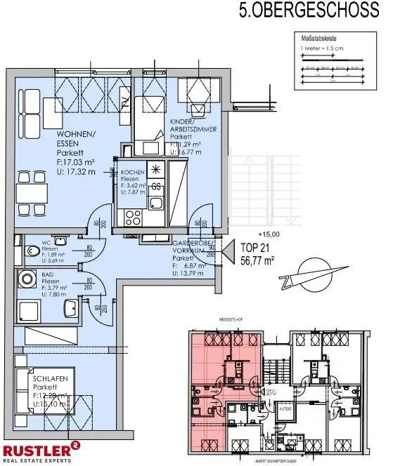
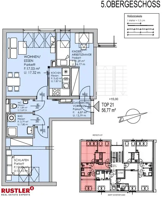
Grundriss
Lageplan1

Preisinformationen

Gesamtmiete:
723,16 € / Monat
Nettomiete:
482,55 € / Monat
Betriebskosten netto:
174,87 € / Monat
Umsatzsteuer:
65,74 €
Kaution:
2.170,00 €
Provision:
provisionsfrei

Fakten

Objektnummer:
141/84964
Objekttyp:
Wohnung
Wohnfläche:
56,77 m²
Zimmer:
3
Badezimmer:
1
Toilette:
1
Baujahr:
2015
Verfügbarkeit:
Verfügbar

Beschreibung

Diese gepflegte 3-Zimmer-Wohnung mit einer Wohnfläche von ca. 56,77 m² überzeugt durch ihre optimale Raumaufteilung und helle, freundliche Atmosphäre. Sie befindet sich in einem ruhigen Wohnhaus und eignet sich ideal für Singles oder Paare. Die Wohnung bietet dank ihrer durchdachten Raumaufteilung ein angenehmes Wohngefühl auf kompakter Fläche Highlights auf einen Blick: - Vorraum - Wohnraum - Schlafzimmer -Arbeitszimmer / Kinderzimmer - Kochnische - Badezimmer - WC Die Bruttomiete setzt sich zusammen aus: Hauptmietzins, Betriebskosten und Umsatzsteuer. Heizkosten und Energiekosten sind nicht enthalten. Lage und Infrastruktur: Die Wohnung befindet sich in einer ruhigen Lage, nur wenige Gehminuten von der Albert-Schweitzer-Klinik entfernt. In nur 10 Minuten erreicht man den Städtischen Augarten. In unmittelbarer Nähe befindet sich der Oeverseepark der sich perfekt zum Spielen und Sport machen eignet. Öffentliche Verkehrsmittel sind bequem zu erreichen. Die Wohnung ist derzeit noch bewohnt und steht ab April zur Verfügung. Besichtigungen sind nach vorheriger Terminvereinbarung gerne möglich und erfolgen in Abstimmung mit dem Vermieter. Mietbeginn: Ab April Mietdauer: unbefristet Jetzt online anfragen oder anrufen – wir melden uns zeitnah mit Terminvorschlägen. Weitere Immobilien finden Sie auf unserer Immobiliensuche - RUSTLER
Beschreibung weiterlesen

Lage und Verkehrsanbindung

Albert Schweitzer Klinik

Energieeffizienz

HWB:
31,3 kWh/(m²*a)
HWB Klasse:
B

Grundrisse

Arber Licaj

Arber Licaj

Rustler Immobilientreuhand

Lade...

Fotomix

Vorraum Wohnraum Zimmer Zimmer 1 Badezimmer Innenhof Fahrradabstellplatz