NEU - Wohnen nahe der Donau in 1200 Wien: Großzügige Wohnung inkl. Einbauküche und zwei Freiflächen!

Wohnung zur Miete in 1200 Wien - Gesamtmiete: 2.091,22 € / Objektnummer: 1764067
Ausstattung: Boden Fahrstuhl Wohnküche / offene Küche Bad Gäste-WC Kabel/Satelliten-TV Fahrradraum Zentralheizung Loggia Terrasse

Preisinformationen

Gesamtmiete:
2.091,22 € / Monat
Betriebskosten netto:
321,11 € / Monat
Umsatzsteuer:
190,11 €
Kaution:
3 Bruttomonatsmieten
Provision:
Gemäß Erstauftraggeberprinzip bezahlt der Abgeber die Provision.

Fakten

Objektnummer:
1764067
Objekttyp:
Wohnung
Terrasse:
2
Loggia:
1
Wohnfläche:
108,56 m²
Loggia Fläche:
4,11 m²
Nutzfläche:
147,25 m²
Gesamtfläche:
147,25 m²
Zimmer:
3
Badezimmer:
1
Toilette:
1
Baujahr:
2009
Neubau:
Ja
Zustand:
Neuwertig
Verfügbarkeit:
Verfügbar
Verfügbar ab:
ab sofort

Beschreibung

Gepflegte Mietwohnungen nahe Donau, Augarten und Prater

In zentraler Lage des 20. Bezirks gelangen mehrere 1- bis 4-Zimmer-Wohnungen mit Wohnflächen zwischen 40 m² und 100 m² zur unbefristeten Vermietung.

Die Wohnungen punkten mit einem durchdachtem Grundriss, hellen Räumen und einer praktischen Ausstattung, die ein angenehmes Wohngefühl vermittelt.

 

Das bietet Ihnen die Liegenschaft:

* Wohnungsgrößen: 40 m² bis 100 m²
* Zimmeranzahl: 1 bis 4 Zimmer
* Einbauküche
* 5 Jahre Befristung
* Gute Raumaufteilung & angenehme Helligkeit

Wohnung Top 2.33:

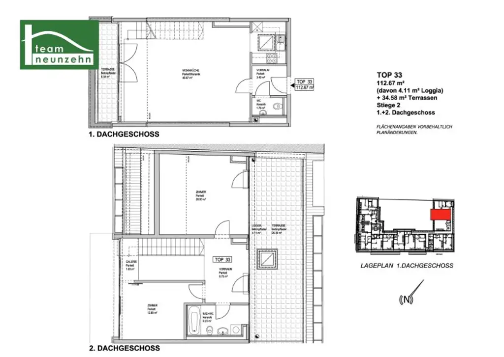
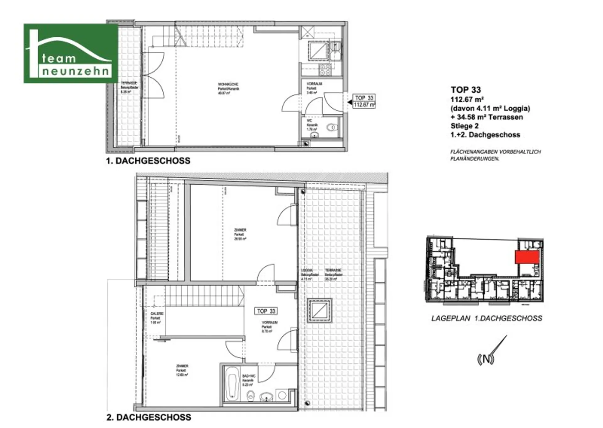
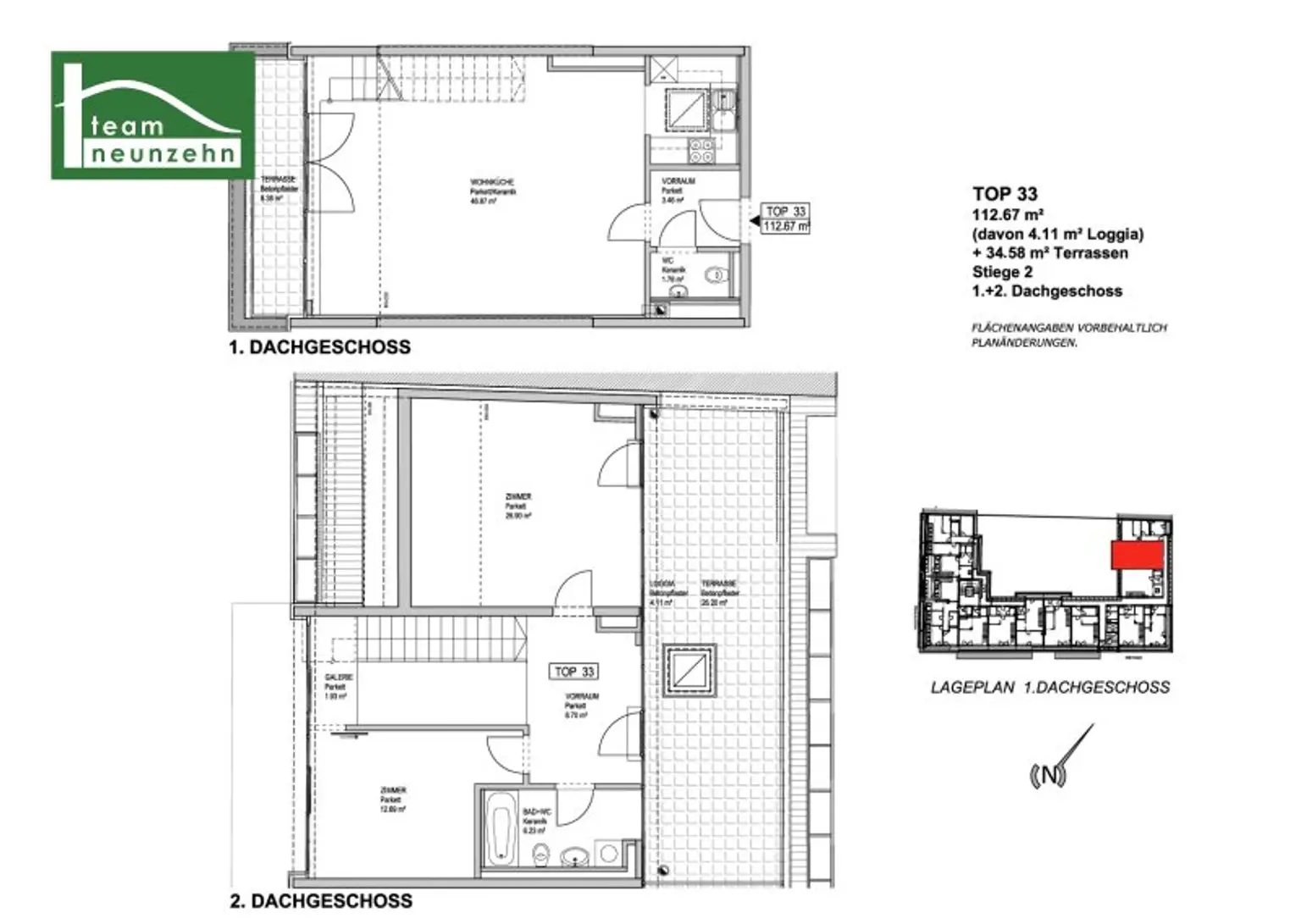
Die Wohnung mit ca. 108,56 m² Wohnfläche liegt im 1. + 2. Dachgeschoss und gliedert sich in folgende tolle Raumaufteilung:

1. Dachgeschoss

* Vorraum ca. 3,46 m²
* separates WC ca. 1,78 m²
* Wohn-/Essbereich mit separater Kochnische ca. 46,87 m²
* Terrasse ca. 8,38 m²

2. Dachgeschoss

* Vorraum/Flur ca. 8,70 m²
* Badezimmer mit WC, Badewanne, Waschbecken und Waschmaschinenanschluss ca. 6,23 m²
* 1. Zimmer ca. 12,69 m²
* 2. Zimmer ca. 26,90 m²
* Galerie: ca. 1,93 m² 
* Loggia ca. 4,11 m²
* Terrasse ca. 26,20 m²

 

Mietkosten:

monatliche Mietkosten: € 2.091,22 (inkl. Betriebskosten und USt.)

Bei dem angeführten Mietpreis handelt es sich um eine Kaltmiete, somit sind sämtliche Energiekosten wie Warmwasser-, Heiz- und Stromkosten nicht inkludiert.

 

Nebenkosten:

Kaution: 3 Bruttomonatsmieten

 

Infrastruktur: 

Die Wohnungen befinden sich in einer gut erschlossenen Wohngegend in der Nähe der Donau, des Augartens und des Praters – ideale Voraussetzungen für Erholung, Sport und Freizeit im Grünen. Gleichzeitig profitieren Sie von einer ausgezeichneten Nahversorgung sowie kurzen Wegen zu öffentlichen Verkehrsmitteln.

 

Sehr gute öffentliche Anbindung:

* Buslinien: 11A, 11B, 5A, 37A
* Straßenbahnlinien: O, 2
* Bahnhöfe: Wien Traisengasse, Wien Handelskai

Sowohl die Wiener Innenstadt als auch die Donauinsel sind in wenigen Minuten erreichbar.

 

 

Energieausweis:

Der Heizwärmebedarf beträgt 42,30 kWh/m²a, welcher der Klasse B entspricht.

 

 

Für Fragen bzw. Besichtigungen steht Ihnen Frau Marija Ivanov sehr gerne unter ivanov@teamneunzehn.at sowie unter +43 676 852 243 531 zur Verfügung.

Wir weisen darauf hin, dass zwischen dem Vermittler und dem zu vermittelnden Dritten ein familiäres oder wirtschaftliches Naheverhältnis besteht.

Der Immobilienmakler erklärt, dass er – entgegen dem in der Immobilienwirtschaft üblichen Geschäftsgebrauch des Doppelmaklers – einseitig nur für den Vermieter tätig ist.

"Leben braucht Raum" * T19-RE Real Estate GmbH & Co KG * www.teamneunzehn.at [https://www.teamneunzehn.at]

Doppelmakler

Wir werden als Immobilienmakler kraft bestehenden Geschäftsgebrauchs als Doppelmakler tätig und haben sohin beide Seiten des Vertrages (Verkäufer-Käufer, Vermieter-Mieter) zu unterstützen.

Wirtschaftliches Naheverhältnis

Es wird bekannt gegeben, dass folgendes wirtschaftliches Naheverhältnis zwischen der teamneunzehn-Gruppe und dem Verkäufer/der vermietenden Partei besteht: ständige und dauerhafte Beauftragung mit der Vermittlung des bestehenden Immobilienportfolios

Haftungserklärung zum Inserat

Irrtum und Änderungen vorbehalten! Sofern es sich bei Bildern um Visualisierungen handelt, können Abänderungen zur tatsächlichen Ausführung resultieren. Wir weisen ausdrücklich darauf hin, dass das auf Fotos oder Visualisierungen ersichtliche Mobiliar bzw. Inventar nicht Bestandteil des inserierten Preises ist.
Beschreibung weiterlesen

Lage und Verkehrsanbindung

Vorgartenstraße, Handelskai, Donau, Dresdner Straße, Augarten, Prater, Millennium City

Energieeffizienz

HWB:
42,3 kWh/(m²*a)
HWB Klasse:
B
fGEE:
1,06
fGEE Klasse:
C
Energieausweisart:
Energiebedarfs-ausweis

Grundriss

Lageplan

1200 Wien | Wien 20., Brigittenau

Lade...
Marija Ivanov

Marija Ivanov
Immobilienvermittlung

teamneunzehn-Gruppe

Lade...

Fotomix

Bild 1 Bild 2 Bild 3 Bild 4 Bild 5 Bild 6 Bild 7 Bild 8 Bild 9 Bild 10 Bild 11 Bild 12 Bild 13 Bild 14 Bild 15 Bild 16 Bild 17 Bild 18 Bild 19 Bild 20