NEU - Wohngefühl Simmering. Attraktive provisionsfreie Wohnung im Erstbezug.

Wohnung zum Kauf in 1110 Wien - Kaufpreis: 299.500 € / Objektnummer: 1939/216384
Ausstattung: Boden Fahrstuhl Wohnküche / offene Küche Tiefgarage Parkplatz Fahrradraum Fußbodenheizung Balkon Loggia

Preisinformationen

Kaufpreis:
299.500 €
Vermittlungsprovision:
Ja
Provision:
provisionsfrei

Fakten

Objektnummer:
1939/216384
Objekttyp:
Wohnung
Balkon:
1
Loggia:
1
Balkonfläche:
2,82 m²
Keller Fläche:
3,77 m²
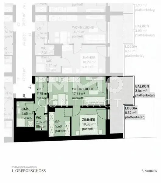
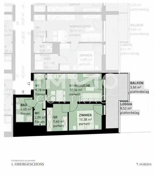
Wohnfläche:
45,08 m²
Loggia Fläche:
8,52 m²
Nutzfläche:
45,08 m²
Gesamtfläche:
55,01 m²
Zimmer:
2
Stockwerk:
1
Neubau:
Ja
Zustand:
Erstbezug
Verfügbarkeit:
Verfügbar
Verfügbar ab:
Ende 2028

Beschreibung

Ihr neues Zuhause in Simmering — modern, ruhig, provisionsfrei

Im lebendigen Wiener Bezirk Simmering entsteht ein zeitgemäßes Wohnbauprojekt mit 82 freifinanzierten Eigentumswohnungen — provisionsfrei für Käufer. Das fünfgeschossige Gebäude bietet durchdachte 2‑ und 3‑Zimmer‑Einheiten mit Wohnflächen von ca. 39 bis 62 m². Jede Wohnung verfügt über eine private Freifläche (Loggia, Balkon, Terrasse oder Eigengarten) und eröffnet so zusätzlichen persönlichen Außenraum für Erholung und Alltag.

Benötigen Sie mehr Platz, berät Sie unser Vertriebsteam gern: Auf Wunsch lassen sich benachbarte 2‑Zimmer‑Einheiten verbinden oder übereinanderliegende Wohnungen zu einer Maisonette (z. B. 4 Zimmer) zusammenlegen.

Alle Einheiten werden schlüsselfertig übergeben — Sanitärinstallationen, Fliesen und Parkett sind im Kaufpreis enthalten. Genauere Angaben zur Ausstattung entnehmen Sie bitte der Leistungsbeschreibung im Booklet.

Ihr Vorteil: Provisonsfrei kaufen! Sparen Sie 3,6% Provsionsgebühr incl. USt

 

DAS PROJEKT IM ÜBERBLICK

* 82 freifinanzierte, provisionsfreie Eigentumswohnungen (ca. 39–62 m²) 
* 2‑ und 3‑Zimmer‑Grundrisse 
* Jede Wohnung mit privater Freifläche (Loggia, Balkon, Terrasse, Eigengarten) 
* Möglichkeit zur Zusammenlegung von Einheiten (Maisonette/Verbundlösungen) 
* 37 PKW‑Stellplätze in der hauseigenen Tiefgarage 
* Schlüsselfertige Übergabe (inkl. Sanitär, Fliesen, Parkett) 
* Ruhige stadtrandnahe Lage mit guter öffentlicher Anbindung

 

AUSSTATTUNGSHIGHLIGHTS

* Eichenparkettböden
* Heizsystem: Luft-Wasser-Wärmepumpen (oder gleichwertiges System)  
* Fußbodenheizung
* Schallschutzfenster
*
Außenliegender Sonnenschutz

 

LAGE

Die stadtrandnahe Lage garantiert eine ruhige Wohnatmosphäre bei gleichzeitig sehr guter öffentlicher Anbindung — das Stadtzentrum ist gut erreichbar . Zahlreiche tägliche Versorgungsmöglichkeiten und Einrichtungen befinden sich in fußläufiger Nähe. Für Freizeit und Erholung bieten sich vielfältige Optionen: Vor der Türe liegt der Seeschlachtpark, Badespaß findet man im Simmeringer Bad, nostalgischen Vergnügungscharme im Böhmischen Prater sowie ein umfangreiches Einkaufs‑ und Freizeiterlebnis im Huma Eleven.
Entfernungen zu öffentlichen Verkehrsmitteln:

* U-Bahn- Station U3 Simmering etwa 700m 
* S-Bahn S80 Simmering etwa 700m
* Buslinien 69a und 72a etwa 200 bis 300m
* Straßenbahnlininien 11 und 71 etwa 450m

 

Renderings: Symbolbilder (c) bildraum.at / IC-KI Visualisierungen

 

 

Wir weisen darauf hin, dass zwischen dem Vermittler und dem zu vermittelnden Dritten ein familiäres oder wirtschaftliches Naheverhältnis besteht.

Der Vermittler ist als Doppelmakler tätig.

Infrastruktur / Entfernungen

Gesundheit
Arzt <475m
Apotheke <325m
Klinik <2.275m
Krankenhaus <3.950m

Kinder & Schulen
Schule <175m
Kindergarten <475m
Universität <2.900m
Höhere Schule <3.125m

Nahversorgung
Supermarkt <50m
Bäckerei <350m
Einkaufszentrum <1.275m

Sonstige
Geldautomat <525m
Bank <525m
Post <500m
Polizei <500m

Verkehr
Bus <175m
U-Bahn <650m
Straßenbahn <475m
Bahnhof <700m
Autobahnanschluss <1.925m

Angaben Entfernung Luftlinie / Quelle: OpenStreetMap
Beschreibung weiterlesen

Lage und Verkehrsanbindung

Die stadtrandnahe Lage garantiert eine ruhige Wohnatmosphäre bei gleichzeitig sehr guter öffentlicher Anbindung — das Stadtzentrum ist gut erreichbar . Zahlreiche tägliche Versorgungsmöglichkeiten und Einrichtungen befinden sich in fußläufiger Nähe. Für Freizeit und Erholung bieten sich vielfältige Optionen: Vor der Türe liegt der Seeschlachtpark, Badespaß findet man im Simmeringer Bad, nostalgischen Vergnügungscharme im Böhmischen Prater sowie ein umfangreiches Einkaufs‑ und Freizeiterlebnis im Huma Eleven.
Entfernungen zu öffentlichen Verkehrsmitteln:
U-Bahn- Station U3 Simmering etwa 700m
S-Bahn S80 Simmering etwa 700m
Buslinien 69a und 72a etwa 200 bis 300m
Straßenbahnlininien 11 und 71 etwa 450m

Energieeffizienz

HWB:
30,3 kWh/(m²*a)
HWB Klasse:
B
fGEE:
0,75
fGEE Klasse:
A
Energieausweisart:
Energiebedarfs-ausweis
Gültig bis:
19.10.2033

Grundriss

Lageplan

1110 Wien | Wien 11., Simmering

Lade...
Martina Abiodun-Regenfelder

Martina Abiodun-Regenfelder
Immobilienfachberaterin

IMMOcontract Immobilien Vermittlung GmbH

Lade...

Fotomix

Bild 1 Bild 2 Bild 3 Bild 4 Bild 5 Bild 6