NEU - Wohnglück in Grünruhelage ganz nahe bei Wien!

Haus zum Kauf in 3400 Klosterneuburg - Kaufpreis: 850.000 € / Objektnummer: 12298
Ausstattung: Boden Fahrstuhl Wohnküche / offene Küche Bad Gäste-WC Tiefgarage Parkplatz Fahrradraum Abstellraum Zentralheizung Fußbodenheizung Terrasse Garten

Preisinformationen

Kaufpreis:
850.000 €
Vermittlungsprovision:
Ja
Provision:
3% des Kaufpreises zzgl. 20% USt.

Fakten

Objektnummer:
12298
Objekttyp:
Haus
Terrasse:
4
Keller Fläche:
8,94 m²
Wohnfläche:
137,6 m²
Nutzfläche:
149,35 m²
Gartenfläche:
62,5 m²
Zimmer:
4
Badezimmer:
2
Toilette:
3
Baujahr:
2023
Neubau:
Ja
Zustand:
Erstbezug
Verfügbarkeit:
Verfügbar
Verfügbar ab:
kurzfristig

Beschreibung

IDYLLE FÜR RUHESUCHENDE...

In Kürze bezugsfertig ist dieses Traumobjekt in SCHLÜSSELFERTIGER AUSFÜHRUNG auf EIGENGRUND in begehrter Lage Klosterneuburgs.

Dieses nach modernsten Anforderungen und Ausstattungskriterien errichtete Reihenhaus ist optimal für Familien und Paare geeignet, die das Besondere suchen und ihren Wohntraum in einer ruhigen und naturnahen Umgebung verwirklichen möchten. Überzeugen Sie sich selbst von dieser einzigartigen Immobilie in Weidling und vereinbaren Sie noch heute einen Besichtigungstermin

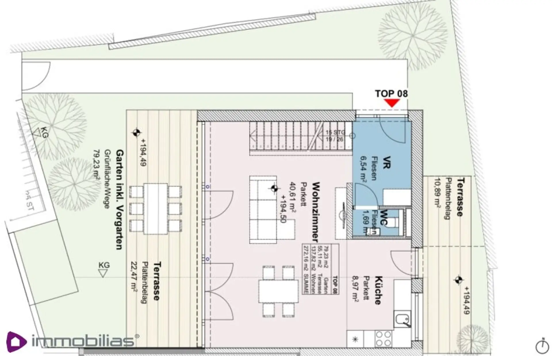
Raumaufteilung Reihenhaus:
ca 137,60 m² Wfl; zzgl Außenflächen, ca 55,92 m²; zzgl Gartenanteil, ca 62,50 m²

Erdgeschoss (ebenerdig):
Vorzimmer, ca 6,54 m²
Küchenbereich, ca 8,97 m²
Wohnzimmer, ca 40,61 m²
Gäste- Wc, ca 1,69 m²
Terrasse 1, ca 22,47 m², vom Wohnzimmer aus zu betreten
Terrasse 2, vom Küchenbereich aus zu betreten, ca 10,89 m²
Garten inkl Vorgarten, ca 79,23 m²

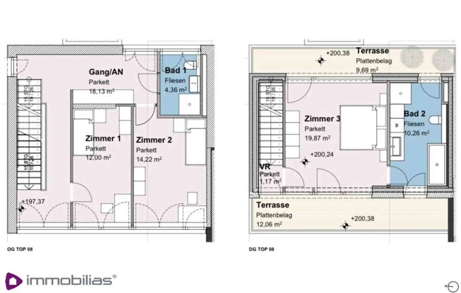
Stiege ins Obergeschoss:
Schlafzimmer 1, ca 12,00 m²
Schlafzimmer 2, ca 14,22 m²
Gang, ca 18,13 m², viele Fenster, lichtdurchflutet
Bad 1, ca 4,36 m², mit Dusche/WC und Fenster
 

Stiege ins Dachgeschoss: 
Vorraum, ca 1,17 m²
Schlafzimmer 3, ca 19,87 m²
Bad 2, ca 10,26 m², mit Badewanne/Dusche/ WC, Waschmaschinenanschluss und Fenster
Ost- Terrasse, ca 9,69 m²
West- Terrasse, ca 12,06 m²

Kellerabteil im Kellerbereich der Liegenschaft:
ca 8,94 m²
 

+++PLUS+++ gehobene Ausstattung, schlüsselfertig: 
Fußbodenheizung in allen Räumen
Echtholz-Parkett Eiche
Feinsteinzeug im Bad, WC und Vorraum
elektrische Raffstores südseitig; außenliegender Sonnenschutz
Doppel- / Mehrfachverglasung
Laufen und Grohe Sanitärausstattung
WK2 Sicherheitstüren
Ziegelbauweise
Gerne senden wir Ihnen auf Anfrage die ausführliche Bau- und Ausstattungsbeschreibung zu. 

+++ PLUS+++  Moderne Heizung: Die Liegenschaft verfügt über eine zeitgemäße Zentralheizung/ Fußbodenheizung mit Erdwärme in Kombination mit Solarenergie

Gemeinschaftsanlagen: 
Kinderwagenraum im UG, Müllraum, Fahrradabstellplätze im Innenhof und in der Garage, Tiefgarage mit insgesamt 11 Stellplätzen
KP Garage: € 25 000.-

 

Für alle weiteren Fragen und eine unverbindliche Besichtigung stehe ich Ihnen gerne zur Verfügung:
Andrea Höferstock
T: 0699 1 4444 700
E: office@immobilias.at

Viele weitere Angebote finden Sie auf unserer Homepage www.immobilias.at [http://www.immobilias.at]

!! Wir möchten Sie informieren – Maklervertrag Bestimmungen (FAGG - Fern- u. Auswärtsgeschäfte-Gesetz - - VRUG - Verbraucherrechte Richtlinie-Umsetzungsgesetz) !!

Alleine durch die Unterfertigung dieses Maklervertrages und die Besichtigung von Objekten entstehen Ihnen keine Kosten.
Erst mit dem Abschluss eines Kaufvertrages und/ oder eines Mietvertrages tritt Verdienstlichkeit ein und es wird die Provisionszahlungspflicht iSd Provisionsvereinbarung dieses Vertrages ausgelöst! Wenn der Kaufvertrag/ Mietvertrag nicht zustande kommt, bleibt unsere Tätigkeit für Sie vollkommen kostenlos.
Bitte haben Sie dafür Verständnis, dass wir Ihnen seit dem 13. Juni 2014 aufgrund der neuen EU-Richtlinie Unterlagen und Informationen zu unseren Objekten erst dann übersenden können, wenn Sie bestätigen, dass Sie unser vorzeitiges Tätigwerden wünschen und über Ihre Rücktrittsrechte aufgeklärt wurden. Hierfür erhalten Sie nach Ihrer Anfrage eine Email mit den entsprechenden Unterlagen und einem Link, um diese Punkte zu bestätigen.

Vielen Dank!

Bitte beachten Sie, dass wir aufgrund der Nachweispflicht gegenüber dem Eigentümer und um Ihre Rechte zu wahren nur Anfragen mit vollständigen Kontaktdaten (Name, Anschrift und Telefonnummer) bearbeiten können und auch nur in diesem Falle Auskünfte über Objektunterlagen und die genauen Liegenschaftsadresse geben dürfen. Wir bitten um größtmögliche Diskretion und ersuchen Sie, Innenbesichtigungen und Verhandlungen ausschließlich über uns durchzuführen.

_Nebenkosten lt. Nebenkostenübersicht_

_Der Vollständigkeit halber halten wir fest, dass wir Ihnen bei Anmietung/Ankauf eines von uns namhaft gemachten Objektes durch Sie oder einen durch Sie namhaft gemachten Dritten bzw. bei beidseitiger Willensübereinstimmung eine Vermittlungsprovision in der Höhe von 3 Bruttomonatsmieten bei Gewerbeimmobilien, 2 Bruttomonatsmieten bei Wohnimmobilien bzw. 3 % des Kaufpreises zuzüglich der gesetzlichen Umsatzsteuer in Rechnung stellen (Honorarverordnung für Immobilienmakler, BGBl. Nr. 262 und 297/1996)._
_Dieses Angebot ist unverbindlich und freibleibend. Die Angaben erfolgen aufgrund der Informationen und Unterlagen, die uns vom Eigentümer und/oder _Dritten zur Verfügung gestellt werden und sind ohne Gewähr. _Im Übrigen gelten die allgemeinen Geschäftsbedingungen sowie die Verordnung des BM für wirtschaftliche Angelegenheiten über Standes- und Ausübungsregeln für Immobilienmakler, BGBl 297/96._

_Alle Angaben im Angebot basieren auf Informationen und Unterlagen des Eigentümers und erfolgen nach bestem Wissen, jedoch ohne Gewähr auf Richtigkeit_. _

 

Noch nichts gefunden? Wir informieren Sie über geeignete Immobilienangebote noch vor allen anderen.
Legen Sie jetzt Ihren individuellen Suchagenten unter folgendem Link an. Wir schicken Ihnen passende Immobilien exklusiv vorab zu.
Suchagent anlegen [https://immobilias-realitaeten.service.immo/registrieren/de] - https://immobilias-realitaeten.service.immo/registrieren/de

Wir weisen darauf hin, dass zwischen dem Vermittler und dem zu vermittelnden Dritten ein familiäres oder wirtschaftliches Naheverhältnis besteht.

Der Vermittler ist als Doppelmakler tätig.

!! Wir möchten Sie informieren – Maklervertrag Bestimmungen !!
(FAGG - Fern- u. Auswärtsgeschäfte-Gesetz - VRUG - Verbraucherrechte Richtlinie-Umsetzungsgesetz) 

Alleine durch die Unterfertigung dieses Maklervertrages und die Besichtigung von Objekten entstehen Ihnen keinerlei Kosten.
Erst mit dem Abschluss eines Kaufvertrages und/ oder eines Mietvertrages tritt unsere Verdienstlichkeit ein und es wird die Provisionszahlungspflicht iSd Provisionsvereinbarung dieses Vertrages ausgelöst!
Wenn der Kaufvertrag/ Mietvertrag nicht zustande kommt, bleibt unsere Tätigkeit für Sie vollkommen kostenlos!

Bitte haben Sie dafür Verständnis, dass wir Ihnen seit dem 13. Juni 2014 aufgrund der neuen EU-Richtlinie Unterlagen und Informationen zu unseren Objekten erst dann übersenden können, wenn Sie bestätigen, dass Sie unser vorzeitiges Tätigwerdenwünschen und über Ihre Rücktrittsrechte aufgeklärt wurden. Hierfür erhalten Sie nach Ihrer Anfrage eine Email mit den entsprechenden Unterlagen und einem Link, um diese Punkte zu bestätigen.

Vielen Dank!

Bitte beachten Sie, dass wir aufgrund der Nachweispflicht gegenüber dem Eigentümer und um Ihre Rechte zu wahren nur Anfragen mit vollständigen Kontaktdaten (Name, Anschrift und Telefonnummer) bearbeiten können und auch nur in diesem Falle Auskünfte über Objektunterlagen und die genauen Liegenschaftsadresse geben dürfen. Wir bitten um größtmögliche Diskretion und ersuchen Sie, Innenbesichtigungen und Verhandlungen ausschließlich über uns durchzuführen.

_Nebenkosten lt. Nebenkostenübersicht_

_Der Vollständigkeit halber halten wir fest, dass wir Ihnen bei Anmietung/Ankauf eines von uns namhaft gemachten Objektes durch Sie oder einen durch Sie namhaft gemachten Dritten bzw. bei beidseitiger Willensübereinstimmung eine Vermittlungsprovision in der Höhe von 3 Bruttomonatsmieten bei Gewerbeimmobilien, 2 Bruttomonatsmieten bei Wohnimmobilien bzw. 3 % des Kaufpreises zuzüglich der gesetzlichen Umsatzsteuer in Rechnung stellen (Honorarverordnung für Immobilienmakler, BGBl. Nr. 262 und 297/1996). _

_Dieses Angebot ist unverbindlich und freibleibend. Die Angaben erfolgen aufgrund der Informationen und Unterlagen, die uns vom Eigentümer und/oder _Dritten zur Verfügung gestellt werden und sind ohne Gewähr. _

_Im Übrigen gelten die allgemeinen Geschäftsbedingungen sowie die Verordnung des BM für wirtschaftliche Angelegenheiten über Standes- und Ausübungsregeln für Immobilienmakler, BGBl 297/96._

_Alle Angaben im Angebot basieren auf Informationen und Unterlagen des Eigentümers und erfolgen nach bestem Wissen, jedoch ohne Gewähr auf Richtigkeit_.  _

Infrastruktur / Entfernungen

Gesundheit
Arzt <500m
Apotheke <2.000m
Klinik <5.000m
Krankenhaus <2.500m

Kinder & Schulen
Schule <500m
Kindergarten <500m
Universität <3.000m
Höhere Schule <6.000m

Nahversorgung
Supermarkt <1.000m
Bäckerei <2.000m
Einkaufszentrum <5.500m

Sonstige
Bank <2.000m
Geldautomat <2.000m
Post <2.000m
Polizei <2.000m

Verkehr
Bus <500m
Straßenbahn <5.000m
U-Bahn <6.500m
Bahnhof <2.500m
Autobahnanschluss <4.500m

Angaben Entfernung Luftlinie / Quelle: OpenStreetMap
Beschreibung weiterlesen

Lage und Verkehrsanbindung

Weidlingbach

Energieeffizienz

HWB:
32,39 kWh/(m²*a)
HWB Klasse:
B
fGEE:
0,78
fGEE Klasse:
A
Energieausweisart:
Energiebedarfs-ausweis
Gültig bis:
24.05.2033

Grundrisse

Lageplan

3400 Klosterneuburg | Sankt Pölten (Land)

Lade...
Andrea Höferstock

Andrea Höferstock
Geschäftsleitung, Inhaberin

Immobilias Realitäten e.U.

Lade...

Fotomix

Bild 1 Bild 2 Bild 3 Bild 4 Bild 5 Bild 6 Bild 7 Bild 8 Bild 9 Bild 10 Bild 11 Bild 12 Bild 13 Bild 14 Bild 15 Bild 16 Bild 17