NEU - Zinshaus 346m² in 1100 Wien nähe Hauptbahnhof– großes Potenzial, renovierungsbedürftig!

Investment zum Kauf in 1100 Wien - Kaufpreis: 950.000 € / Objektnummer: 8428/114
Ausstattung:

Preisinformationen

Kaufpreis:
950.000 €
Kaufpreis/m²
2.745,66 €
Vermittlungsprovision:
Ja
Provision:
34.200,00 € inkl. 20% USt.

Fakten

Objektnummer:
8428/114
Objekttyp:
Investment
Nutzfläche:
346 m²
Grundstücksfläche:
228 m²
Baujahr:
1900
Altbau:
Ja
Zustand:
Sanierungsbedürftig
Verfügbarkeit:
Verfügbar

Beschreibung

Dieses Zinshaus wurde ca. 1900 erbaut. Gegenwärtig ist es befristet vermietet, aber es kann in absehbarer Zeit ein Leerstand erzielt werden.

Kaufpreis: € 950.000,–
aktuelle Wohnnutzfläche: ca. 346 m²
erzielbare Wohnnutzfläche: ca. 644 m²

Für weitere Informationen zu dieser Immobilie fordern Sie bitte per Anfrage unser Exposé an.
Bitte senden Sie Ihre Anfrage mit vollständigen Kontaktdaten!

Infrastruktur / Entfernungen

Gesundheit
Arzt <500m
Apotheke <500m
Klinik <500m
Krankenhaus <1.500m

Kinder & Schulen
Schule <500m
Kindergarten <500m
Universität <1.500m
Höhere Schule <2.000m

Nahversorgung
Supermarkt <500m
Bäckerei <500m
Einkaufszentrum <500m

Sonstige
Geldautomat <500m
Bank <500m
Post <500m
Polizei <500m

Verkehr
Bus <500m
U-Bahn <500m
Straßenbahn <500m
Bahnhof <500m
Autobahnanschluss <2.000m

Angaben Entfernung Luftlinie / Quelle: OpenStreetMap
Beschreibung weiterlesen

Lage und Verkehrsanbindung

500m vom Hauptbahnhof

Hauptbahnhof

Energieeffizienz

HWB:
179,7 kWh/(m²*a)
HWB Klasse:
F
fGEE:
2,61
fGEE Klasse:
E
Energieausweisart:
Energiebedarfs-ausweis
Gültig bis:
08.08.2031

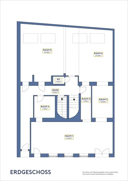
Grundrisse

Lageplan

1100 Wien | Wien 10., Favoriten

Lade...
Matthias Kundi

Matthias Kundi
Immobilienexperte

SIMPLICITY Immobilien GmbH

Lade...

Fotomix

Bild 1 Bild 2 Bild 3 Bild 4