Zinshaus - mit enormen Entwicklungspotenzial

Investment zum Kauf in 1100 Wien - Kaufpreis: 3.990.000 € / Objektnummer: 5345/3316
Ausstattung:

Preisinformationen

Kaufpreis:
3.990.000 €
Vermittlungsprovision:
Ja
Provision:
143.640,00 € inkl. 20% USt.

Fakten

Objektnummer:
5345/3316
Objekttyp:
Investment
Keller Fläche:
164 m²
Nutzfläche:
1.050 m²
Grundstücksfläche:
795 m²
Baujahr:
1900
Altbau:
Ja
Zustand:
Gepflegt
Verfügbarkeit:
Verfügbar
Verfügbar ab:
sofort

Beschreibung

Zum Verkauf gelangt ein außergewöhnliches Zinshaus in zentraler Wiener Lage. Das Gebäude besteht aus zwei harmonisch miteinander verbundenen Bauteilen mit einer gesamten Nutzfläche von rund 1.050 m².

Die Liegenschaft steht ab sofort leer und bietet damit eine ideale Basis für Investoren und Projektentwickler.

Die Immobilie überzeugt durch ihr enormes Entwicklungspotenzial, unter anderem:

*
Ausbau der bestehenden Flächen

*
Aufstockung zur Schaffung zusätzlicher Einheiten

*
Abriss & Neubau für ein modernes Wohn- oder Mischnutzungskonzept

Der aktuelle Gebäudebestand befindet sich in einem gepflegten Zustand, sodass eine sofortige Weitervermietung oder Projektrealisierung problemlos möglich ist.

 

Flächenwidmung

*
Straßentrakt: Bauland – Wohngebiet

*
Hoftrakt: Bauland – Wohngebiet / Geschäftsviertel

 

Ihre Chancen auf einen Blick

*
Sofort verfügbar – keine laufenden Mietverträge

*
Hervorragende Widmungsstruktur für Wohn- oder gemischte Nutzung

*
Zentraler Wiener Standort mit hoher Nachfrage

*
Flexibel nutzbares Entwicklungspotenzial

 

Kaufpreis: € 3.990.000,-

Maklerprovision 3 % zzgl. 20 % Ust.

Weitere Immobilienangebote finden Sie unter "www.maxxx.at".

Möchten Sie mehr über dieses attraktive Eigenheim erfahren oder einen Besichtigungstermin vereinbaren? Wir freuen uns auf Ihre Kontaktaufnahme!

Der Vermittler ist als Doppelmakler tätig.

Infrastruktur / Entfernungen

Gesundheit
Arzt <500m
Apotheke <500m
Klinik <1.000m
Krankenhaus <2.500m

Kinder & Schulen
Schule <500m
Kindergarten <500m
Universität <500m
Höhere Schule <2.500m

Nahversorgung
Supermarkt <500m
Bäckerei <500m
Einkaufszentrum <1.500m

Sonstige
Geldautomat <500m
Bank <500m
Post <500m
Polizei <1.000m

Verkehr
Bus <500m
U-Bahn <500m
Straßenbahn <500m
Bahnhof <500m
Autobahnanschluss <1.000m

Angaben Entfernung Luftlinie / Quelle: OpenStreetMap
Beschreibung weiterlesen

Lage und Verkehrsanbindung

Reumannplatz

Energieeffizienz

HWB:
122 kWh/(m²*a)
HWB Klasse:
D
fGEE:
1,39
fGEE Klasse:
C
Energieausweisart:
Energiebedarfs-ausweis

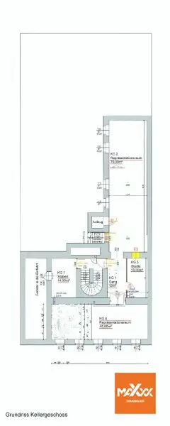
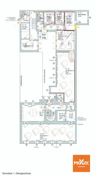
Grundrisse

Lageplan

1100 Wien | Wien 10., Favoriten

Lade...
Sascha Lackner

Sascha Lackner
Head of Sales

RL Immo GmbH

Lade...

Fotomix

Bild 1 Bild 2