NEU - 87 m2 Dachgeschoss Maisonette mit 8,74 m2 Terrasse, 4,19 m2 Loggia und Garagenplatz! Nähe Westbahnhof / Burggasse Stadthalle U6

Wohnung zum Kauf in 1070 Wien - Kaufpreis: 744.000 € / Objektnummer: 5523
Ausstattung: Barrierefrei Rollstuhlgerecht Boden Fahrstuhl Bad Rollladen Kabel/Satelliten-TV Klimaanlage Parkplatz Außenparkplatz Abstellraum Etagenheizung Fußbodenheizung Loggia Terrasse

Preisinformationen

Kaufpreis:
744.000 €
Betriebskosten netto:
195,43 € / Monat
Vermittlungsprovision:
Ja
Provision:
3% des Kaufpreises zzgl. 20% USt.

Fakten

Objektnummer:
5523
Objekttyp:
Wohnung
Terrasse:
1
Loggia:
1
Keller Fläche:
3 m²
Wohnfläche:
86,89 m²
Loggia Fläche:
4,19 m²
Zimmer:
2
Badezimmer:
2
Toilette:
2
Baujahr:
2015
Neubau:
Ja
Zustand:
Neuwertig
Verfügbarkeit:
Verfügbar

Beschreibung

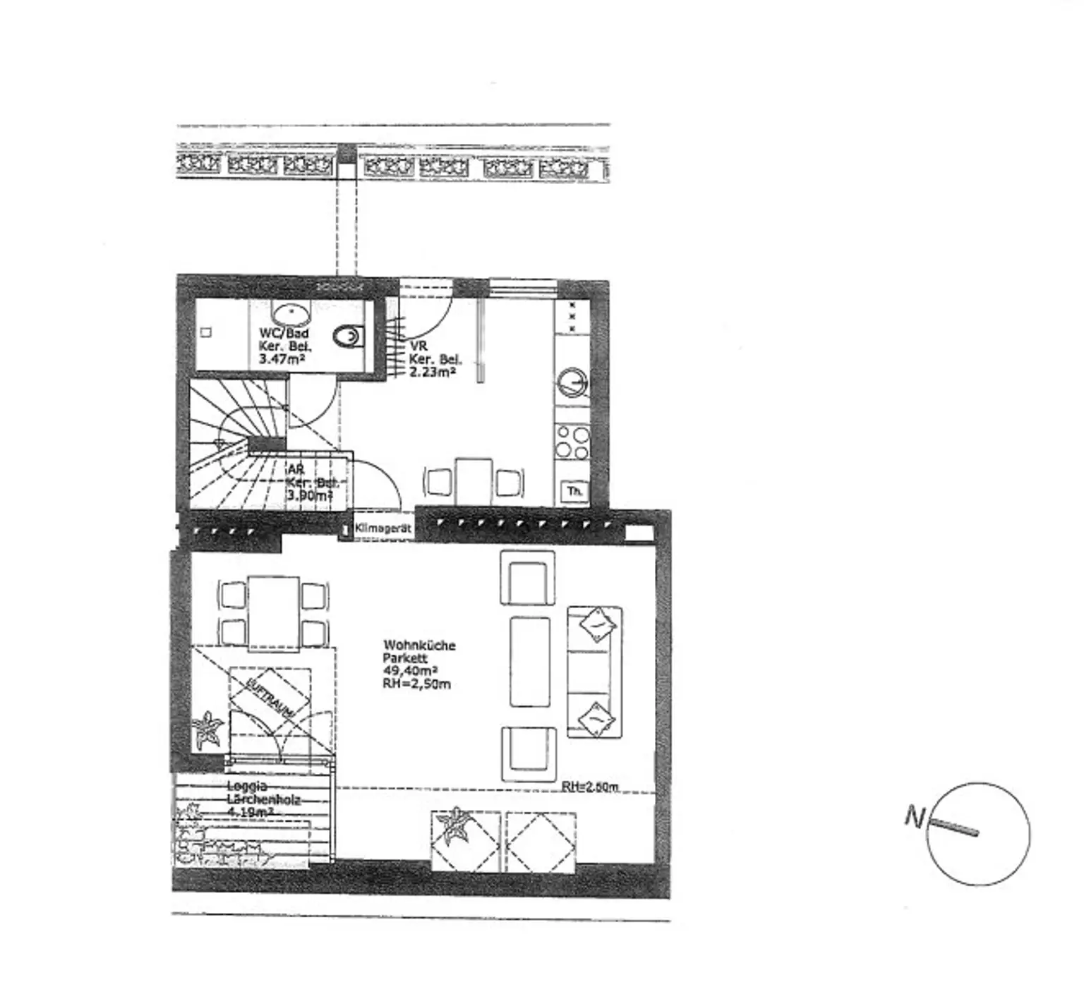
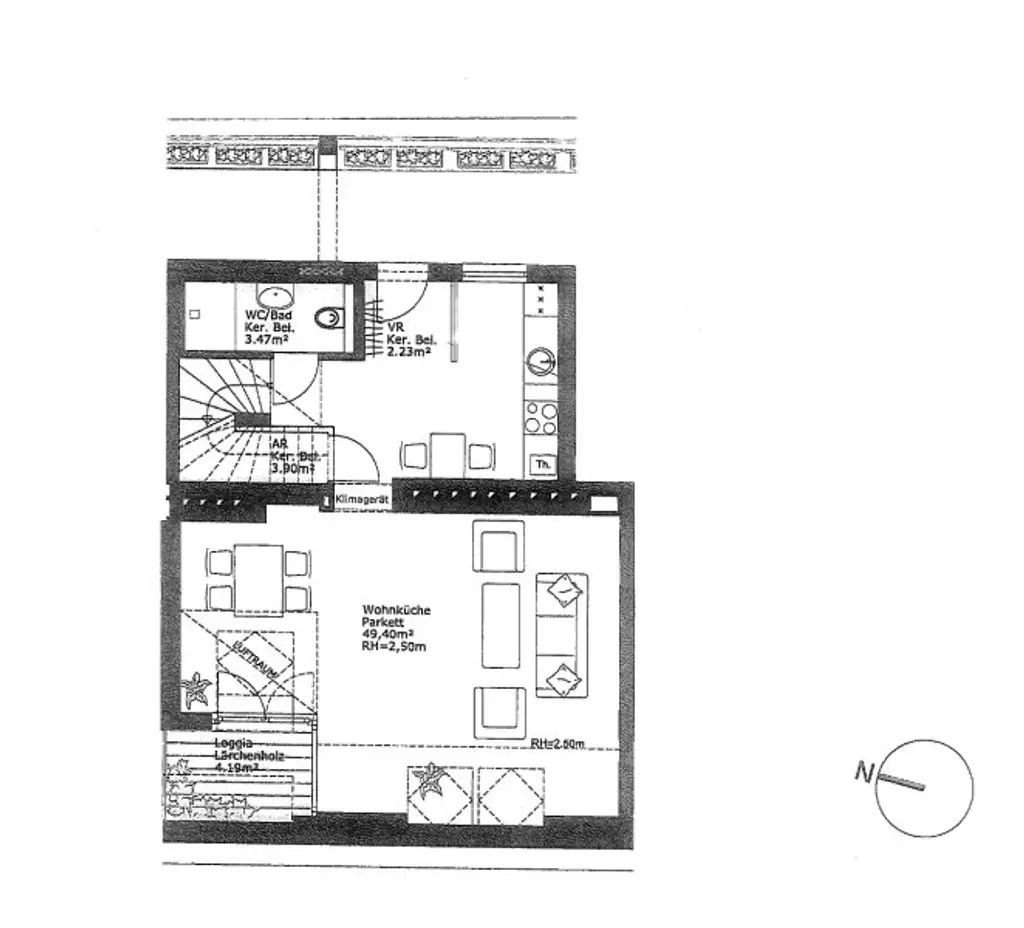
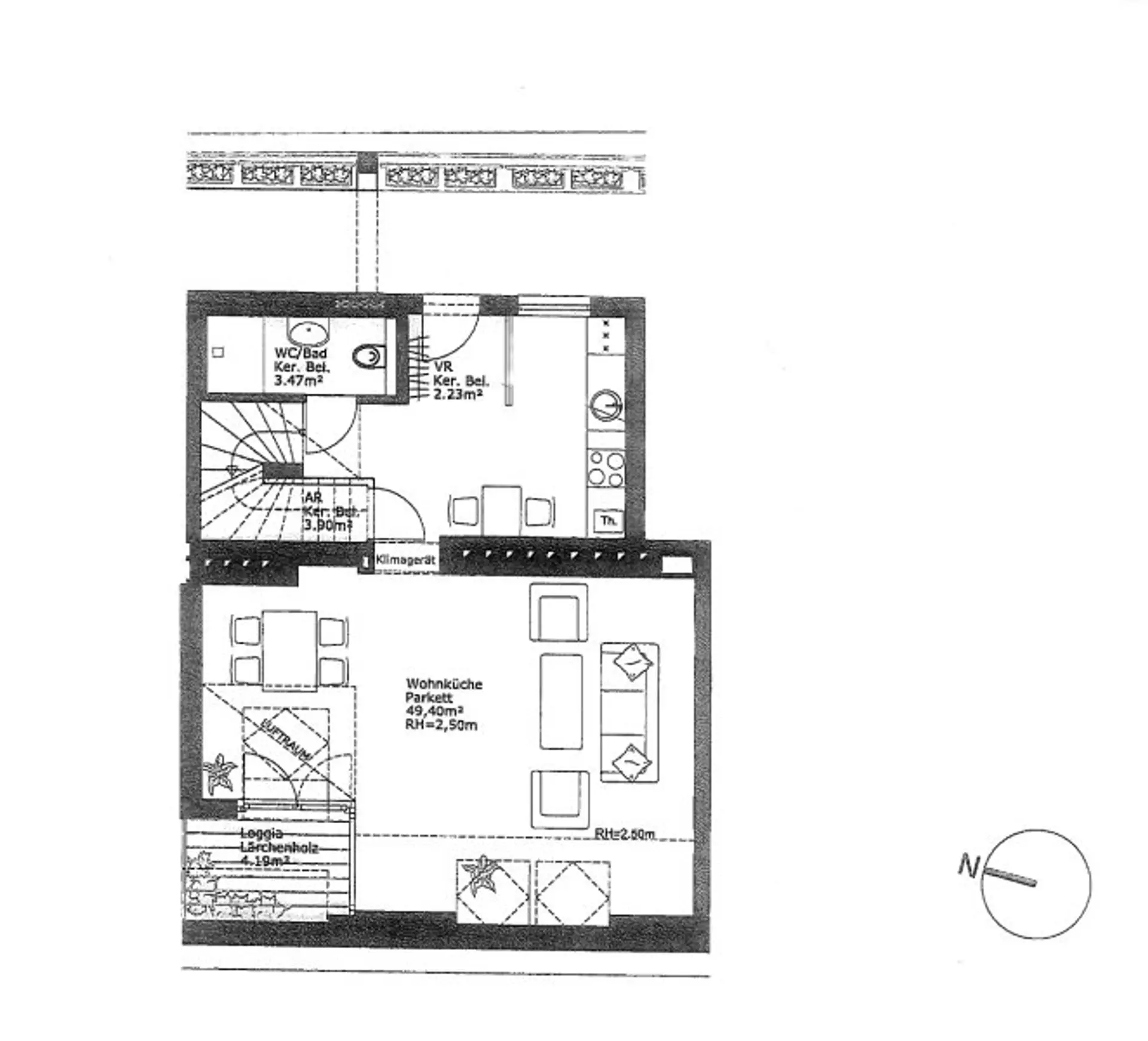
Zu Verkaufen steht eine 86,89 m2 große 2 Zimmer (teilbar in 3 Zimmer)  Maisonnette Wohnung mit 4,19 m2 großer Loggia in der unteren Etage sowie einer 8,74 m2 großen Terrasse in der oberen Etage und einem Autoabstellplatz. Die Wohnung befindet sich im Dachgeschoss eines 2015 ausgebauten Altbauwohnhauses in der Seidengasse. Das Objekt ist um monatlich 1.774,12 Euro inklusive Betriebskosten befristet bis zum 30.05.2027 vermietet! Besichtigungen müssen mit dem Mieter abgestimmt werden.

Die Maisonnette Wohnung ist wie folgt aufgeteilt:

Im ersten Geschoss:

- ein Eingangsbereich
- eine möblierte, ausgestattete Küche 
- ein großzügiger zirka 48 m2 großer Wohnbereich mit Essplatz und Zugang zur 4,19 m2 Loggia ( es besteht die Möglichkeit den Wohnbereich zu teilen und somit ein drittes Zimmer herzustellen) 
- ein Badezimmer mit Dusche, Toilette und Fenster
- ein geräumiger Abstellraum unter der Stiege

Im Obergeschoß:

- ein geräumiges, helles Schlafzimmer mit Galerie 
- ein Badezimmer mit Eckbadewanne und WC
- eine hofseitige 8,74 m2 große Terrasse 

Beheizt wird das Objekt mittels Fussbodenheizung in sämtlichen Räumen. In den Wohnräumen sind Parkettböden verlegt, die Badezimmer sind verfließt. Eine Klimaanlage sorgt im Sommer für ein angenehmes Raumklima.

Der Wohnung ist ein Autoabstellplatz und ein Kellerabteil zugeteilt. Die Seidengasse bietet eine optimale Lage, zahlreiche Annehmlichkeiten sind in unmittelbarer Nähe. Ärzte, Apotheken, Schulen und Kindergärten sind bequem erreichbar. Supermärkte, Bäckereien und ein Einkaufszentrum sorgen für eine optimale Nahversorgung. Die exzellente Verkehrsanbindung an öffentliche Verkehrsmittel wie U-Bahn, Straßenbahn und Bus ist ideal – hier wohnen Sie zentral und dennoch ruhig!

Kaufpreis Wohnung: 744.000 Euro 
Kaufpreis Garagenplatz: 25.000 Euro 
Betriebskosten Wohnung: 333,56 Euro inkl. 94,16 Euro Reparaturrücklage
Betriebskosten Garage: 46,60 inkl. 7 Euro Reparaturrücklage
Provision: 3% zzgl. Ust

Befristet vermietet bis 30.05.2027, Besichtigungen müssen mit dem Mieter abgestimmt werden.

Ein Energieausweis liegt vor / HWB-ref = 36,9 kWh/m²a

Für Besichtigungstermine bzw. weitere Informationen kontaktieren Sie bitte Herrn Bigus unter 0699 / 12 47 15 92 oder per Email bigus@immobilienquartier.at.

Infrastruktur / Entfernungen

Gesundheit
Arzt <500m
Apotheke <500m
Klinik <500m
Krankenhaus <1.000m

Kinder & Schulen
Schule <500m
Kindergarten <500m
Universität <500m
Höhere Schule <1.000m

Nahversorgung
Supermarkt <500m
Bäckerei <500m
Einkaufszentrum <500m

Sonstige
Geldautomat <500m
Bank <500m
Post <500m
Polizei <500m

Verkehr
Bus <500m
U-Bahn <500m
Straßenbahn <500m
Bahnhof <500m
Autobahnanschluss <5.000m

Angaben Entfernung Luftlinie / Quelle: OpenStreetMap
Beschreibung weiterlesen

Lage und Verkehrsanbindung

Nähe U6 Westbahnhof / Burggasse Stadthalle / Seidengasse

Seidengasse

Energieeffizienz

HWB:
39,4 kWh/(m²*a)
HWB Klasse:
B
Energieausweisart:
Energiebedarfs-ausweis

Grundrisse

Lageplan

1070 Wien | Wien 7., Neubau

Lade...
Peter Bigus

Peter Bigus
Geschäftsführung

Immobilienquartier

Lade...

Fotomix

Bild 1 Bild 2 Bild 3 Bild 4 Bild 5 Bild 6 Bild 7 Bild 8 Bild 9 Bild 10 Bild 11 Bild 12 Bild 13 Bild 14 Bild 15 Bild 16 Bild 17 Bild 18 Bild 19 Bild 20 Bild 21 Bild 22 Bild 23