Altbau-Investment im 3. Bezirk mit ca. 3,4% Bruttoanfangsrendite!

Wohnung zum Kauf in 1030 Wien - Kaufpreis: 289.000 € / Objektnummer: 247/21485
Ausstattung: Fahrstuhl Fernwärme
Aussenansicht I
Aussenansicht II
Eingangsbereich
Garage
Flur I
Flur II
Stiegenaufgang
Keller
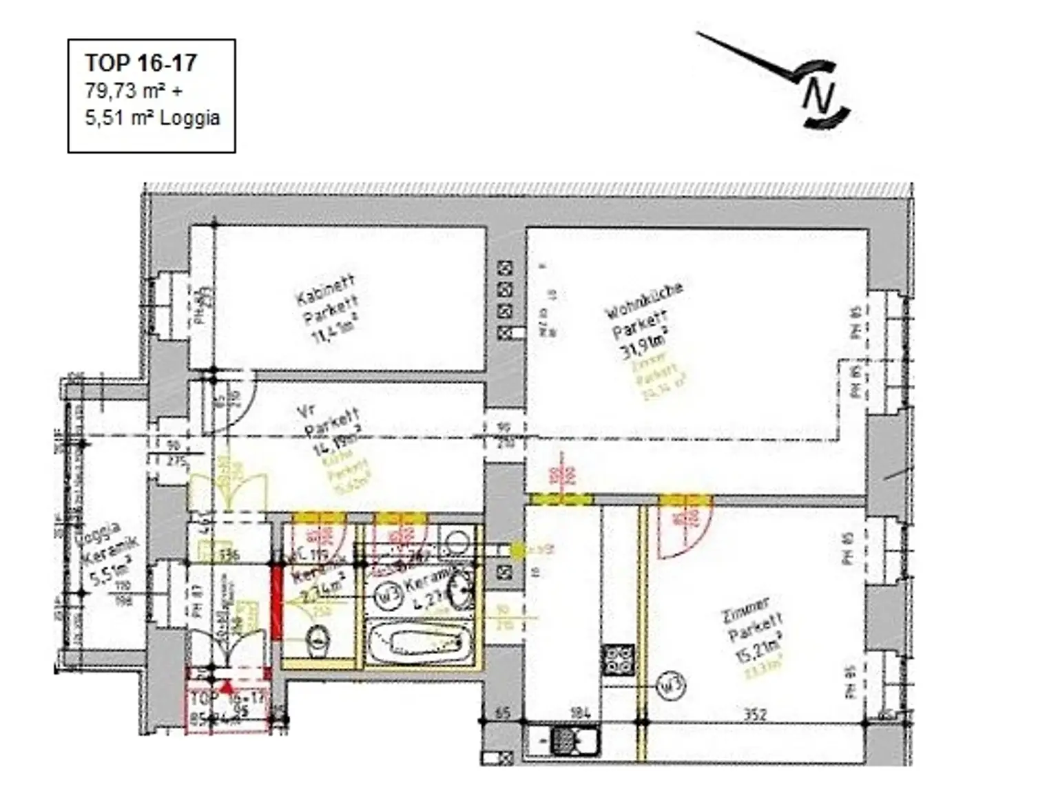
Plan
Lageplan

Preisinformationen

Kaufpreis:
289.000 €
Kaufpreis/m²
3.390,43 €
Betriebskosten netto:
238,67 € / Monat
Preisinfos:
GrESt 3,5% + Grundbucheintragung 1,1% des Gesamtkaufpreises /Vertragserrichtung 1,5% + Barauslagen, Beglaubigungs-, ggf. Treuhandkosten bei Finanzierung +USt. (WeiKes RA) / WE-Begründungsbeitrag € 500 +USt. / Provision…
Vermittlungsprovision:
Ja
Provision:
3%

Fakten

Objektnummer:
247/21485
Objekttyp:
Wohnung
Wohnfläche:
85,24 m²
Zimmer:
3
Badezimmer:
1
Toilette:
1
Baujahr:
1900/san.Altbau
Altbau:
Ja
Verfügbarkeit:
Verfügbar

Beschreibung

In attraktiver Lage des 3. Bezirks, in der Dietrichgasse gelangen mehrere Wohnungen zum Einzelabverkauf. Die Adresse befindet sich in einem innerstädtischen Wohngebiet mit sehr guter Infrastruktur (u. a. Nahversorgung, Gastronomie und Verkehrsanbindung) und kurzen Wegen zu zentralen Punkten wie dem Prater sowie dem Donaukanal. Diese unbefristet vermietete 3-Zimmer-Wohnung in der Dietrichgasse ist ein Zukunftsinvestment in den lebenswerten 3. Bezirk. Die ca 80 m² große 3 Zimmer Wohnung zzgl ca 5,5m² Loggia (Vorraum, Wohnküche, 2 Zimmer, Badezimmer, Toilette, Loggia) befindet sich im Mezzanin eines stilvollen Gründerzeithauses welches 2008 saniert und ausgebaut wurde Sie bietet – kurz-, mittel- und langfristig – eine absolute Vorteilslage! Die Highlights: - durchdachter Grundriss, Schlafzimmer separat begehbar - Aufzug vorhanden, barrierefrei erreichbar - Kellerabteil - Waschküche, Kinderwagen- und Fahrradraum - Fernwärmeheizung - unbefristet vermietet (keine Eigennutzung bis zur Kündigung des Mieters; bei einem neuen Mietverhältnis kann der Richtwertmietzins vereinbart werden; Mieter Jahrgang 1980) - derzeit monatliche Mieteinnahmen netto € 806,62 inkl. Inventarmiete und Benützungsentgelt (Betriebskosten nicht inkludiert) Lage-Highlights - Mitten in Wien: - Grün & Erholung: Kardinal Nagl Park oder Donaukanal - ideal für Erholung, Spaziergänge, Sport und Freizeit - Öffentliche Anbindung: U3, Straßenbahn und Busse in Gehweite - schnelle Verbindungen ins Stadtzentrum . - Nahversorgung & Alltag: Supermärkte, Bäckereien, Apotheken, Cafés und Restaurants zu Fuß erreichbar - Lokale Atmosphäre: Ruhige Wohnstraßen und typische Nachbarschaftsatmosphäre prägen den Stadtteil – kombiniert mit guten Services und Gastronomieoptionen in Gehweite. Der Kaufpreis für diese Eigentumswohnung mit hervorragender Infrastruktur beträgt Euro 289.000,00 Tipp: Die gesamte Anlage wird gerade parifiziert und abverkauft. Fragen Sie uns nach weiteren Objekten bzw. Paketangeboten! Wir möchten darauf hinweisen, dass unsere Antwort möglicherweise in Ihrem Spamordner landen könnte. Bitte kontrollieren Sie diesen, wenn Sie keine Rückmeldung auf Ihre Anfrage erhalten haben. Wir freuen uns auf Ihre Anfrage und einen gemeinsamen Besichtigungstermin!
Beschreibung weiterlesen

Lage und Verkehrsanbindung

Lechnerstraße, Leonie-Rysanek-Park

Energieeffizienz

HWB:
50,7 kWh/(m²*a)
HWB Klasse:
C
fGEE:
1,11
fGEE Klasse:
C

Grundrisse

Vivienne Spicak

Vivienne Spicak

IMV Immobilienmakler

Lade...

Fotomix

Aussenansicht I Aussenansicht II Eingangsbereich Garage Flur I Flur II Stiegenaufgang Keller