NEU - Altbaubüro nähe Altes AKH

Büro zur Miete in 1080 Wien - Gesamtmiete: 11.509,11 € / Objektnummer: 1649/515
Ausstattung: Fahrstuhl

Preisinformationen

Gesamtmiete:
11.509,11 € / Monat
Gesamtmiete (exkl. USt.):
8.933,28 € / Monat
Nettomiete:
8.000,00 € / Monat
Betriebskosten netto:
933,28 € / Monat
Heizkosten netto:
657,64 €
Umsatzsteuer:
1.918,19 €
Kaution:
35.000,00 €
Provision:
3.0 BMM plus 20.0% USt.

Fakten

Objektnummer:
1649/515
Objekttyp:
Büro
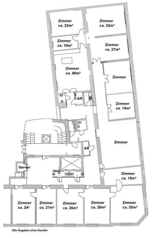
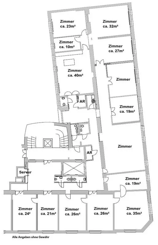
Nutzfläche:
491,48 m²
Bürofläche:
491,48 m²
Gesamtfläche:
491,48 m²
Zimmer:
14
Toilette:
5
Stockwerk:
3
Baujahr:
1900
Verfügbarkeit:
Verfügbar
Verfügbar ab:
Sofort

Beschreibung

Alserstrasse AKH- Nähe!

In der Nähe des AKH gelangt in einem gepflegten Stilaltbau eine großzügig angelegte Büroetage zur unbefristeten Vermietung.

Ausstattung:
Parketten, Stuckdecken, Flügeltüren, geräumige Teeküche, zeitgemäße Sanitärausstattung

Infrastruktur:
Straßenbahn 5, 12, Autobus 13A, Gastronomiebetriebe und Einkaufsmöglichkeiten in unmittelbarer Umgebung

Beschreibung weiterlesen

Lage und Verkehrsanbindung

AKH - Spitalgasse

Energieeffizienz

Endenergiebedarf:
195 kWh/(m²*a)
HWB:
195 kWh/(m²*a)
HWB Klasse:
C
fGEE:
2,4
fGEE Klasse:
C
Energieausweisart:
Energiebedarfs-ausweis

Grundriss

Gerhard Wagner

Gerhard Wagner

Altenburg Realitäten GmbH & Co KG

Lade...