Anlageobjekt am Kutschkermarkt: Unbefristet vermietetes Geschäftslokal/Restaurant mit prominentem Mieter: Rendite ca. 5,25 % - Top Lage

Gastgewerbe zum Kauf in 1180 Wien - Kaufpreis: 700.000 € / Objektnummer: 4223
Ausstattung:

Preisinformationen

Kaufpreis:
700.000 €
Betriebskosten netto:
746,46 € / Monat
Vermittlungsprovision:
Ja
Provision:
3% des Kaufpreises zzgl. 20% USt.

Fakten

Objektnummer:
4223
Objekttyp:
Gastgewerbe
Nutzfläche:
349,63 m²
Baujahr:
1895
Altbau:
Ja
Verfügbarkeit:
Verfügbar

Beschreibung

Top-Lage: Anlageobjekt am Kutschkermarkt

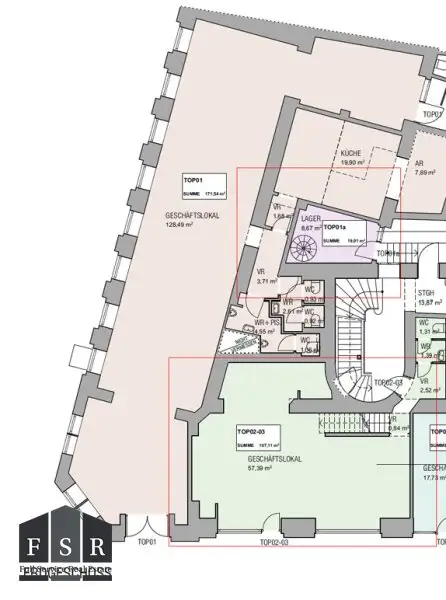
Das Lokal verfügt über rd. 350m² Nutzfläche - davon ca. 172 m² im Erdgeschoss und 178 m² im Keller mit Eiskeller, Heizraum Lager etc.

Der kaufgegenständliche Gegenstand ist derzeit  unbefristet vermietet und wird somit als Anlageobjekt mit einer Mietrendite von ca. 5,25% zum Kauf angeboten

Mieter: Es handelt sich hier um ein gut situiertes und gut gehendes Restaurant - Ecklokal gleich beim Kutschkermarkt.

 

Die derzeitige Nettomiete beträgt derzeit rd. € 36.768,- p.a., und ist indexiert und wertgesichert.

Der Dachboden wird im Herbst 2026 ausgebaut und im Zuge des Ausbaus die Allgemeinteile wie Fassade etc. saniert und ein Personenlift eingebaut.

Der Käufer erwirbt Wohnungseigentum - Die Wohnungseigentumsbegründung ist zeitnah geplant.

Für alle weiteren Informationen stehen wir gerne zur Verfügung.

 

Kontakt:

Für weitere Fragen sowie zur Vereinbarung eines Besichtigungstermins stehen wir Ihnen unter office@fsr-real.at zur Verfügung. Die von uns erbrachten Informationen beruhen auf Angaben des Verkäufer. Für die Richtigkeit und Vollständigkeit der Angaben kann keine Gewähr bzw. Haftung übernommen werden.

Da es immer wieder zu Missverständnissen kommt, möchten wir Sie darüber informieren, dass ein Provisionsanspruch erst nach Unterzeichnung eines Miet- oder Kaufanbotes besteht. Eine Besichtigung ist nach wie vor unverbindlich und kostenlos!

Dieses Objekt wird Ihnen unverbindlich und freibleibend zum Kauf angeboten. Oben angeführte Angaben basieren auf Informationen und Unterlagen des Eigentümers und sind unsererseits ohne Gewähr. Im Falle eines Abschlusses mit Ihnen oder einem von Ihnen namhaft gemachten Dritten bzw. bei beidseitiger Willensübereinstimmung beträgt unser Honorar (lt. Honorarverordnung für Immobilienmakler) 3% des Kaufpreises zuzüglich der gesetzlichen Umsatzsteuer.

Wir weisen darauf hin, dass zwischen dem Vermittler und dem zu vermittelnden Dritten ein familiäres oder wirtschaftliches Naheverhältnis besteht.

Der Vermittler ist als Doppelmakler tätig.

Infrastruktur / Entfernungen

Gesundheit
Arzt <500m
Apotheke <500m
Klinik <500m
Krankenhaus <500m

Kinder & Schulen
Schule <500m
Kindergarten <500m
Universität <500m
Höhere Schule <500m

Nahversorgung
Supermarkt <500m
Bäckerei <500m
Einkaufszentrum <1.500m

Sonstige
Geldautomat <500m
Bank <500m
Post <500m
Polizei <1.000m

Verkehr
Bus <500m
U-Bahn <500m
Straßenbahn <500m
Bahnhof <500m
Autobahnanschluss <2.000m

Angaben Entfernung Luftlinie / Quelle: OpenStreetMap
Beschreibung weiterlesen

Lage und Verkehrsanbindung

Kutschkermarkt

Energieeffizienz

HWB:
147,6 kWh/(m²*a)
HWB Klasse:
F
fGEE:
3,21
fGEE Klasse:
E
Energieausweisart:
Energiebedarfs-ausweis
Gültig bis:
27.02.2033

Grundrisse

Lageplan

1180 Wien | Wien 18., Währing

Lade...
Gabor Rudnay

Gabor Rudnay
Geschäftsführender Gesellschafter

FSR Immobilienvermarktungs- u. -beteiligungs GmbH

Lade...