NEU - Anlagewohnung nahe Donaukanal - unbefristet vermietete 1 Zimmer Wohnung

Wohnung zum Kauf in 1030 Wien - Kaufpreis: 99.000 € / Objektnummer: 247/21474
Ausstattung: Fahrstuhl Fernwärme
Aussenansicht V
Aussenansicht I
Eingangsbereich
Garage
Flur III
Flur
Stiegenaufgang
Keller
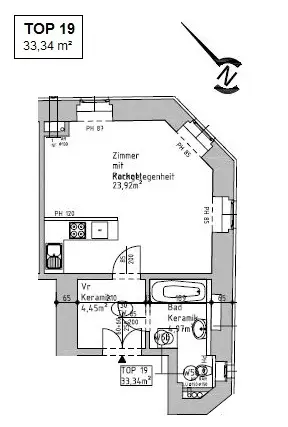
Plan
Lageplan

Preisinformationen

Kaufpreis:
99.000 €
Kaufpreis/m²
3.149,86 €
Betriebskosten netto:
88,00 € / Monat
Preisinfos:
GrESt 3,5% + Grundbucheintragung 1,1% des Gesamtkaufpreises /Vertragserrichtung 1,5% + Barauslagen, Beglaubigungs-, ggf. Treuhandkosten bei Finanzierung +USt. (WeiKes RA) / WE-Begründungsbeitrag € 500 +USt. / Provision…
Vermittlungsprovision:
Ja
Provision:
3%

Fakten

Objektnummer:
247/21474
Objekttyp:
Wohnung
Wohnfläche:
31,43 m²
Zimmer:
1
Badezimmer:
1
Toilette:
1
Baujahr:
1900/san.Altbau
Altbau:
Ja
Verfügbarkeit:
Verfügbar

Beschreibung

In attraktiver Lage des 3. Bezirks, in der Dietrichgasse gelangen mehrere Wohnungen zum Einzelabverkauf. Die Adresse befindet sich in einem innerstädtischen Wohngebiet mit sehr guter Infrastruktur (u. a. Nahversorgung, Gastronomie und Verkehrsanbindung) und kurzen Wegen zu zentralen Punkten wie dem Prater sowie dem Donaukanal. Diese unbefristet vermietete 1-Zimmer-Wohnung in der Dietrichgasse ist ein Zukunftsinvestment in den lebenswerten 3. Bezirk. Die ca 31m² große 1 Zimmer Wohnung (Vorraum, Wohnküche, Badezimmer mit Toilette) befindet sich im 1. Obergeschoß eines stilvollen Gründerzeithauses welches 2008 saniert und ausgebaut wurde Sie bietet – kurz-, mittel- und langfristig – eine absolute Vorteilslage! Die Highlights: - durchdachter Grundriss - Aufzug vorhanden, barrierefrei erreichbar - Kellerabteil - Waschküche, Kinderwagen- und Fahrradraum - Fernwärmeheizung - unbefristet vermietet (keine Eigennutzung bis zur Kündigung des Mieters; bei einem neuen Mietverhältnis kann der Richtwertmietzins vereinbart werden; Mieter Jahrgang 1979) - derzeit monatliche Mieteinnahmen netto € 146,48 (Betriebskosten nicht inkludiert) Lage-Highlights - Mitten in Wien: - Grün & Erholung: Kardinal Nagl Park oder Donaukanal - ideal für Erholung, Spaziergänge, Sport und Freizeit - Öffentliche Anbindung: U3, Straßenbahn und Busse in Gehweite - schnelle Verbindungen ins Stadtzentrum . - Nahversorgung & Alltag: Supermärkte, Bäckereien, Apotheken, Cafés und Restaurants zu Fuß erreichbar - Lokale Atmosphäre: Ruhige Wohnstraßen und typische Nachbarschaftsatmosphäre prägen den Stadtteil – kombiniert mit guten Services und Gastronomieoptionen in Gehweite. Der Kaufpreis für diese Eigentumswohnung mit hervorragender Infrastruktur beträgt Euro 99.000,00 Tipp: Die gesamte Anlage wird gerade parifiziert und abverkauft. Fragen Sie uns nach weiteren Objekten bzw. Paketangeboten! Wir möchten darauf hinweisen, dass unsere Antwort möglicherweise in Ihrem Spamordner landen könnte. Bitte kontrollieren Sie diesen, wenn Sie keine Rückmeldung auf Ihre Anfrage erhalten haben. Wir freuen uns auf Ihre Anfrage und einen gemeinsamen Besichtigungstermin!
Beschreibung weiterlesen

Lage und Verkehrsanbindung

Lechnerstraße, Leonie-Rysanek-Park

Energieeffizienz

HWB:
50,7 kWh/(m²*a)
HWB Klasse:
C
fGEE:
1,11
fGEE Klasse:
C

Grundrisse

Vivienne Spicak

Vivienne Spicak

IMV Immobilienmakler

Lade...

Fotomix

Aussenansicht V Aussenansicht I Eingangsbereich Garage Flur III Flur Stiegenaufgang Keller