NEU - Anlegerwohnungen mit Einnahmen aus Kurz- & Langzeitvermietung ohne Vermietungsaufwand

Wohnung zum Kauf in 1100 Wien - Kaufpreis: 235.000 € / Objektnummer: 10293
Ausstattung: Boden Fahrstuhl Bad Möbliert Fußbodenheizung Loggia

Preisinformationen

Kaufpreis:
235.000 €
Preisinfos:
Preis Möbel- und Einrichtungspaket: € 16.199,- zzgl. 20% USt.
Vermittlungsprovision:
Ja
Provision:
3% des Kaufpreises zzgl. 20% USt.

Fakten

Objektnummer:
10293
Objekttyp:
Wohnung
Loggia:
1
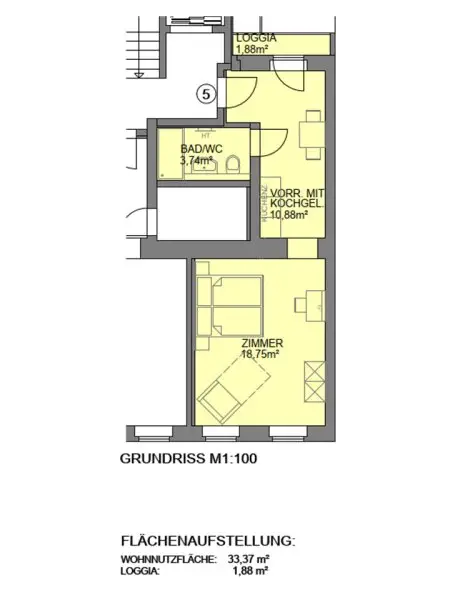
Wohnfläche:
33,37 m²
Loggia Fläche:
1,88 m²
Nutzfläche:
35,25 m²
Gesamtfläche:
35,25 m²
Zimmer:
1
Badezimmer:
1
Stockwerk:
1
Baujahr:
1900
Zustand:
Erstbezug
Verfügbarkeit:
Verfügbar

Beschreibung

STABILE EINNAHMEN: KURZ- & LANGZEITVERMIETUNG IN EINEM INVESTMENT!

Das Projekt Senefeldergasse 35 bietet 18 hochwertig sanierte Wohnungen in einem stilvollen Altbau, der historischen Charme mit modernem Wohnkomfort verbindet. Ein Großteil der Einheiten verfügt über attraktive Außenflächen wie Balkone oder Terrassen.

Sie erwerben eine Anlegerwohnung im Eigentum und erhalten Mieteinnahmen aus: 

* Kurzzeitvermietung (mit Betreiberkonzept)
* Langzeitvermietung

8 Wohnungen verfügen über eine Beherbergungswidmung und werden professionell im Kurzzeitvermietungsmodell betrieben. Die restlichen Einheiten sind für klassische Vermietung vorgesehen. Alle Mieteinnahmen aus beiden Vermietungsarten fließen in einen Mietenpool. Die Mieteinnahmen werden auf Basis eines speziell errechneten „Rendite-Nutzwertes“ unter den Eigentümern verteilt. Dieser speziell berechnete Wert sorgt für volle Transparenz und garantiert jedem Eigentümer die gleiche Rendite.

IHRE VORTEILE AUF EINEN BLICK

* Rundum-Sorglos-Paket:
Kein Aufwand für Vermietung, Verwaltung oder Mietersuche
* Professioneller Betreiber:
Übernimmt Vermietung, Betreuung, Abrechnung und laufenden Betrieb
* Keine klassischen Vermieterpflichten:
Kein Leerstandsrisiko, keine MRG-Einschränkungen
* Mietenpool-System:
Gleichmäßige und transparente Verteilung der Einnahmen
→ Stabile Rendite unabhängig von der Einzelauslastung
* Alle laufenden Kosten inkludiert:
Betrieb, Energie und Instandhaltung werden vom Betreiber getragen

DAS ERGEBNIS FÜR SIE: EIN IMMOBILIENINVESTMENT, DAS ERTRAG, SICHERHEIT UND KOMFORT VEREINT.

* Attraktive Renditen
* Minimiertes Risiko
* Passives Einkommen ohne Aufwand

Zahlen, Daten, kalkulierte Werte | Beispielwohnung

* Wohnfläche: 34,44 m²
* Kaufpreis: € 235.611,- netto (zzgl. 20% USt.)
* Monatliche Miete: € 906,- netto
* Rendite: 4,34 %

Kaufpreise
Netto-Kaufpreis* ab  € 180.000,- (zzgl. 20 % USt.)
Möbel- und Einrichtungspaket ist NICHT im Kaufpreis enthalten. Die Preise sind beim jeweiligen Objekt angeführt. 
Alle verfügbaren Wohnungen finden Sie unter: www.accenta-immo.at/sen35 [https://www.accenta-immo.at/sen35]

-------------

Rechtlicher Hinweis:
Alle Angaben beruhen auf Vergangenheitswerten und Annahmen; sie stellen keine Garantie für zukünftige Entwicklungen dar. Sämtliche Bilder, Visualisierungen, Pläne und KI-generierte Darstellungen, die in den Inseraten verwendet werden, dienen ausschließlich als Referenz. Die gezeigte Einrichtung und Fotos sind beispielhaft und können von der tatsächlichen Ausstattung oder dem Layout abweichen. Alle Angaben beruhen auf Informationen des Verkäufers.

Noch nichts gefunden? Wir informieren Sie über geeignete Immobilienangebote noch vor allen anderen.
Legen Sie jetzt Ihren individuellen Suchagenten unter folgendem Link an. Wir schicken Ihnen passende Immobilien exklusiv vorab zu.
Suchagent anlegen [https://accenta-immobilien.service.immo/registrieren/de] - https://accenta-immobilien.service.immo/registrieren/de

Wir weisen darauf hin, dass zwischen dem Vermittler und dem zu vermittelnden Dritten ein familiäres oder wirtschaftliches Naheverhältnis besteht.

Der Vermittler ist als Doppelmakler tätig.

Sie möchten Ihre Immobilie verkaufen oder vermieten?
Vertrauen Sie auf unsere Erfahrung – mit geprüfter Qualität und transparenter Abwicklung. 
Die Immobilien Card garantiert Ihnen, dass Sie mit einem geprüften Profi für Verkauf und Vermietung sprechen.

Infrastruktur / Entfernungen

Gesundheit
Arzt <50m
Apotheke <175m
Klinik <200m
Krankenhaus <1.825m

Kinder & Schulen
Schule <175m
Kindergarten <375m
Universität <850m
Höhere Schule <2.275m

Nahversorgung
Supermarkt <50m
Bäckerei <150m
Einkaufszentrum <900m

Sonstige
Geldautomat <100m
Bank <100m
Post <100m
Polizei <600m

Verkehr
Bus <150m
U-Bahn <200m
Straßenbahn <100m
Bahnhof <200m
Autobahnanschluss <1.275m

Angaben Entfernung Luftlinie / Quelle: OpenStreetMap
Beschreibung weiterlesen

Energieeffizienz

HWB:
31,43 kWh/(m²*a)
HWB Klasse:
B
fGEE:
0,77
fGEE Klasse:
A
Energieausweisart:
Energiebedarfs-ausweis
Gültig bis:
14.12.2029

Grundrisse

Lageplan

1100 Wien | Wien 10., Favoriten

Lade...
Martina Schütz

Martina Schütz
konzessionierte Immobilienmaklerin

Accenta Immobilien e.U.

Lade...

Fotomix

Beispiel Apartment Beispiel Apartment Bild 3 Hausansicht Hausansicht Bild 6