NEU - Autoabstellplatz in Tarrenz bei Imst zu mieten

Parken zur Miete in 6464 Tarrenz - Gesamtmiete: 56,50 € / Objektnummer: 4178
Ausstattung: Barrierefrei
Autoabstellplatz Tarrenz Tirol - Vermietung

Preisinformationen

Gesamtmiete:
56,50 € / Monat
Gesamtmiete (exkl. USt.):
39,00 € / Monat
Betriebskosten netto:
4,00 € / Monat
Umsatzsteuer:
17,50 €
Kaution:
3 Bruttomonatsmieten

Fakten

Objektnummer:
4178
Objekttyp:
Parken
Grundstücksfläche:
12,5 m²
Verfügbarkeit:
Verfügbar

Beschreibung

Tarrenz bei Imst: Ab sofort Autoabstellplatz im Freien zu mieten - auch für Wohnmobile oder Wohnwägen geeignet (abhängig von der Größe des Fahrzeugs). 

 

Adresse: Am Tasen 5.

 

Größe Parkplatz: 5 Meter x 2,5 Meter (12,5 m2)

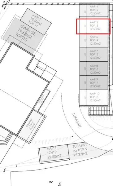
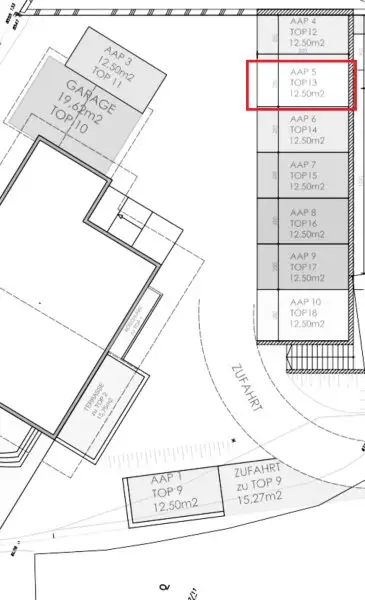
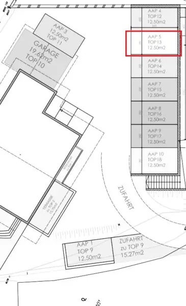
Der Autoabstellplatz Nr. 5 befindet sich in Tarrenz nur wenige Autominuten von Imst-Stadt.

 

Miete: EUR 50 pro Monat

Betriebskosten: EUR 4 pro Monat

Gesamtmiete: EUR 35 pro Monat

 

Kaution: 3 BMM 
Mietdauer:  unbefristet 
Provision: 2 BMM zzgl. 20 % USt 

Vertragserrichtung: 1 BMM zzgl. 20% Ust.

 

Wir bitten Sie um Verständnis, dass wir unserer Nachweispflicht nachkommen müssen und wir Anfragen nur unter Angabe der vollständigen Kontaktdaten (Name, Adresse, Telefonnummer, Email) beantworten können. Wir weisen ausdrücklich auf unsere Stellung als Doppelmakler hin.

 

Für weitere Informationen oder einen Besichtigungstermin steht Ihnen unser Team gerne zur Verfügung.

 

office@sagentus.at

www.sagentus.at

 

Dieses Angebot bieten wir Ihnen im Auftrag der Eigentümerseite unverbindlich und freibleibend an. Allfällige Änderungen, Irrtümer, Satz- und Druckfehler vorbehalten. Alle Angaben sind sorgfältig recherchiert und beruhen auf Angaben und Informationen Dritter. Hierfür wird keine Haftung übernommen. Wir weisen im Zusammenhang mit dem gegenständlichen Angebot auf ein bestehendes wirtschaftliches Naheverhältnis zwischen Abgeber und Vermittlungsunternehmen hin. _Das Vermittlungsunternehmen ist auch mit der Vermittlung von anderen Objekten des Abgebers beauftragt worden._

 

+++ ICH VERKAUFE ODER VERMIETE AUCH GERNE IHRE WOHNUNG, IHR HAUS ODER IHR GRUNDSTÜCK IN INNSBRUCK UND GANZ TIROL +++

 

Falls Sie eine Wohnung, ein Haus oder ein Grundstück zu verkaufen oder zu vermieten haben, so würde ich Sie sehr gerne dabei unterstützen Ihre Immobilie optimal zu vermarkten.

Wir greifen bei unserer Immobilienvermarktung auf eine Datenbank mit hunderten vorgemerkten Kunden zurück und inserieren Ihr Objekt zudem in den wichtigsten einschlägigen Medien im Internet und in Printformat.

Unsere gut ausgebildeten Mitarbeiter garantieren dafür, dass Ihre Immobilie in kürzester Zeit und zum best möglichen Preis verkauft oder vermietet wird.

Sollten Sie eine Immobilie verkaufen oder vermieten möchten oder einfach nur eine unverbindliche Wertanalyse Ihres Objekts wünschen, so lade ich Sie herzlich dazu ein mit uns in Kontakt zu treten.

SAGENTUS Immobilien ist als staatlich konzessionierter Immobilienmakler Ihr zuverlässiger Partner im Bereich Immobilien im Raum Innsbruck, Tirol und Rest-Österreich. Als Full-Service-Agentur nehmen wir Ihnen wenn gewünscht sämtlichen Aufwand ab - von der Wohnungsaufnahme bis zur finalen Schlüsselübergabe an den neuen Wohnungseigentümer oder Mieter.

 

SAGENTUS Immobilien

Standort Hall in Tirol (Bezirk Innsbruck-Land)

office@sagentus.at

www.sagentus.at [http://www.sagentus.at]

Wir weisen darauf hin, dass zwischen dem Vermittler und dem zu vermittelnden Dritten ein familiäres oder wirtschaftliches Naheverhältnis besteht.

Der Vermittler ist als Doppelmakler tätig.

Infrastruktur / Entfernungen

Gesundheit
Arzt 425m
Apotheke 2.450m
Klinik 6.900m

Kinder & Schulen
Schule 300m
Kindergarten 300m

Nahversorgung
Supermarkt 250m
Bäckerei 250m
Einkaufszentrum 5.000m

Sonstige
Bank 525m
Post 275m
Geldautomat 525m
Polizei 2.850m

Verkehr
Bus 125m
Autobahnanschluss 1.850m
Bahnhof 4.725m

Angaben Entfernung Luftlinie / Quelle: OpenStreetMap
Beschreibung weiterlesen

Lage und Verkehrsanbindung

Tarrenz, am Tasen 5

Grundriss

Lageplan

6464 Tarrenz | Imst

Lade...
SAGENTUS IMMOBILIEN

SAGENTUS IMMOBILIEN
Geschäftsführung

SAGENTUS Immobilien GmbH

Lade...