Baubewilligter Rohdachboden mit attraktivem Ausbaupotenzial!

Wohnung zum Kauf in 1060 Wien - Kaufpreis: 1.000.000 € / Objektnummer: 101/18505
Ausstattung: Fahrstuhl Terrasse
(c)2026 ZOOMV_JPI T
(c)2026 ZOOVP_JPI T
(c)2026 ZOMVP_JPI T
(c)2026 ZOOMVP_JPIT
(c)2026 ZOOMVP_JP
_DSC2894
_DSC2867
_DSC2861
_DSC2672
1.DG
2.DG
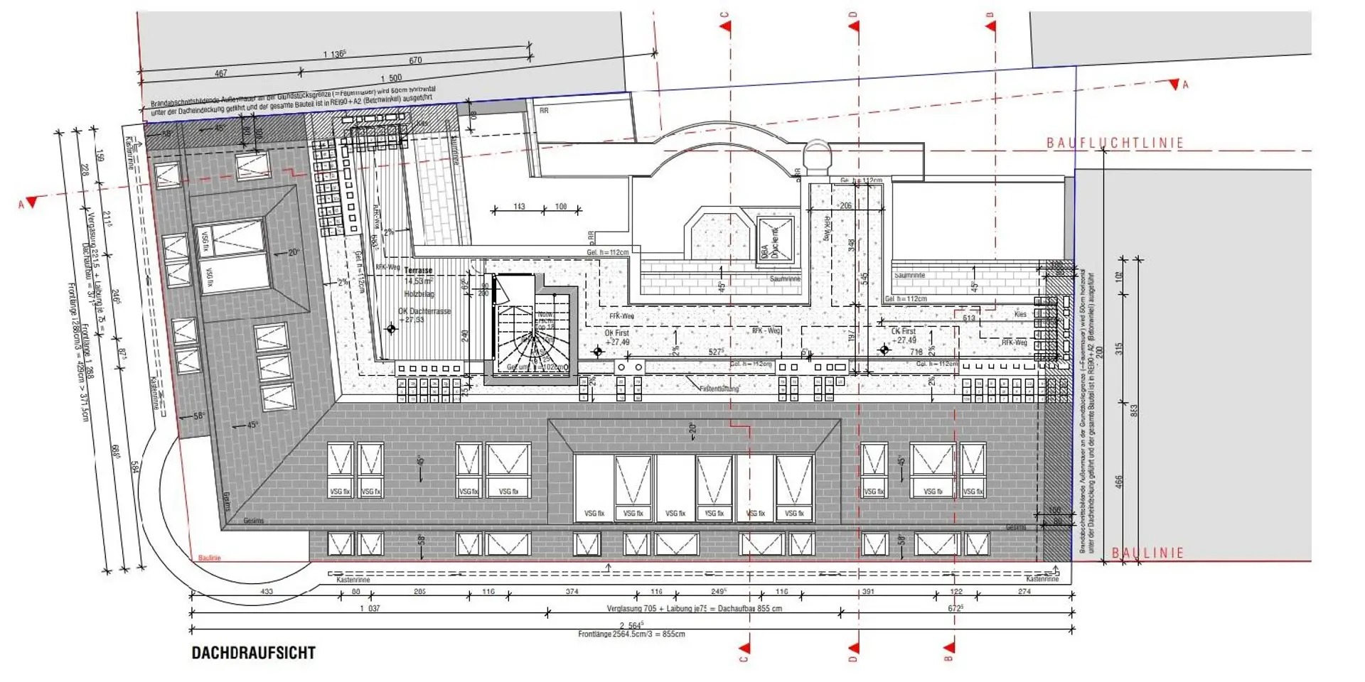
Dachdraufsicht

Preisinformationen

Kaufpreis:
1.000.000 €
Kaufpreis/m²
2.597,40 €
Vermittlungsprovision:
Ja
Provision:
3%

Fakten

Objektnummer:
101/18505
Objekttyp:
Wohnung
Terrasse:
1
Wohnfläche:
385 m²
Altbau:
Ja
Verfügbarkeit:
Verfügbar

Beschreibung

Zum Verkauf gelangt ein Rohdachboden mit ca. 385 m² erzielbarer Nutzfläche sowie ca. 63 m² Freifläche – ideal für ein modernes Ausbauprojekt. Highlights: • Für das Dachgeschoss ist bereits die Integration einer modernen Luftwärmepumpe vorgesehen. • Im Zuge des geplanten Ausbaus werden die Loggien im Bestand gebaut, wodurch zusätzliche attraktive Außenbereiche entstehen. Lage Die Liegenschaft befindet sich an der Ecke zur Linken Wienzeile auf Höhe der U-Bahnstation Pilgramgasse. Die Anbindung an die öffentlichen Verkehrsmittel ist somit bestens gegeben. Die U4-Station sowie die Autobuslinien 12A, 13A und 14A sind in weniger als 5 Gehminuten erreichbar. Zahlreiche Nahversorger sowie Restaurants, Bars und Cafés befinden sich in unmittelbarer Nähe. Auch der Naschmarkt mit seinem vielfältigen kulinarischen Angebot ist nur wenige Gehminuten entfernt und in weiterer Folge die Wiener Innenstadt. Zu einer ausgedehnte Shoppingtour lädt die nahegelegene Mariahilferstraße ein. Dank der exzellenten Verkehrsanbindung lassen sich auch weitläufige Parkanlagen wie z.B. die des Schloss Schönbrunn oder auch der Wiener Prater leicht erreichen. Ansprechpartner Herr Mag. Patrik Adler, LL.M. || +43676840063619 || pa@jpi.at Wir weisen darauf hin, dass wir mit dem Abgeber in ständiger Geschäftsbeziehung stehen und schon aus diesem Grund ein wirtschaftliches Naheverhältnis vorliegt.
Beschreibung weiterlesen

Lage und Verkehrsanbindung

Pilgramgasse

Energieeffizienz

HWB:
120,8 kWh/(m²*a)
HWB Klasse:
D
fGEE:
2,14
fGEE Klasse:
D

Grundrisse

Patrik Adler, LL.M.

Patrik Adler, LL.M.

JP Immobilien

Lade...

Fotomix

(c)2026 ZOOMV_JPI T (c)2026 ZOOVP_JPI T (c)2026 ZOMVP_JPI T (c)2026 ZOOMVP_JPIT (c)2026 ZOOMVP_JP _DSC2894 _DSC2867 _DSC2861 _DSC2672