NEU - ++ Büro / Geschäftsfläche in zentraler Lage in Asten zu vermieten! ++

Immobilie zur Miete in 4481 Asten / Objektnummer: 1939/130768
Ausstattung: Zentralheizung
20250318_143800
20250318_143046
20250318_143130
20250318_143224
20250318_143123
20250318_143054
20250318_143114
20250318_143153
20250318_143137
20250318_143211
20250318_143803
Raiffeisenbank Asten

Preisinformationen

Gesamtmiete (exkl. USt.):
3.225,60 € / Monat
Betriebskosten netto:
662,40 € / Monat
Umsatzsteuer:
645,12 €
Miete/m² netto:
10,68 €
Kaution:
23.225,00
Vermittlungsprovision:
Ja
Provision:
3 Bruttomonatsmieten zzgl. 20% USt

Fakten

Objektnummer:
1939/130768
Nutzfläche:
288 m²
Toilette:
2
Baujahr:
1972
Zustand:
Gepflegt
Verfügbarkeit:
Verfügbar

Beschreibung

Das Büro - und Geschäftshaus befindet sich in sehr gut frequentierter Lage in Asten. Durch die hervorragende Verkehrsanbindung und die Nähe zu Geschäften, Restaurants und Cafés sowie die vielfältigen Dienstleistungsangebote sorgen für ein lebendiges Umfeld und eine hohe Lebensqualität. Geschäftspartner und Mitarbeiter werden die Vorzüge dieser zentralen Lage ebenso zu schätzen wissen.

Geschäftsfläche/Bürofläche

+ Profitieren Sie von einer gut durchdachten
Raumaufteilung und optimalen Arbeitsbedingungen direkt im Zentrum von Asten
+ Die klimatisierte Fläche mit ca. 228 m² Nutzfläche befindet sich im Erdgeschoss der Liegenschaft.

Ausstattung:
+ EG ist möbliert
+ Klimatisierung um ein angenehmes Arbeitsklima auch in den Sommermonaten zu gewährleisten
+ IT-Infrastruktur: Vorhandene IT-Infrastruktur ermöglicht eine sofortige und
nahtlose Integration Ihrer technischen Anforderungen.
+ PKW Stellplätze im Freien sowohl für Kunden als auch für Mitarbeiter können bei Bedarf angemietet
werden.
+ PKW Tiefgaragenplätze können ebenfalls bei Bedarf angemietet werden.

Nutzungsmöglichkeiten:

+ Ärzte oder verwandte Berufe wie Physiotherapeut, Masseur etc.
+ Büro, Coworking, Concept-Office, 3D Druckstudio, Printstore, Fotograf, Werbeagentur, Lerninstitut etc.
+ Versicherungen, IT-Unternehmen und vieles mehr.

Ergreifen Sie die Chance und investieren Sie in eine erstklassige Bürofläche, die allen Anforderungen moderner Geschäftswelten entspricht.

Wir freuen uns darauf, Ihnen die Immobilie persönlich vorstellen zu dürfen.

Infrastruktur / Entfernungen

Gesundheit
Arzt <2.000m
Apotheke <500m
Klinik <3.500m

Kinder & Schulen
Kindergarten <500m
Schule <500m

Nahversorgung
Supermarkt <500m
Bäckerei <500m
Einkaufszentrum <1.500m

Sonstige
Bank <500m
Geldautomat <500m
Post <500m
Polizei <3.500m

Verkehr
Bus <500m
Straßenbahn <6.500m
Autobahnanschluss <1.000m
Bahnhof <1.500m

Angaben Entfernung Luftlinie / Quelle: OpenStreetMap
Beschreibung weiterlesen

Lage und Verkehrsanbindung

Direkt an der stark frequentierten Wiener Straße in Asten

Energieeffizienz

HWB:
70 kWh/(m²*a)
HWB Klasse:
C
Energieausweisart:
Energiebedarfs-ausweis

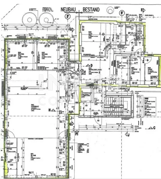
Grundriss

Lageplan

4481 Asten | Linz-Land

Lade...
Klaus Egger

Klaus Egger
Immobilienfachberater

IMMOcontract Immobilien Vermittlung GmbH

Lade...

Fotomix

20250318_143800 20250318_143046 20250318_143130 20250318_143224 20250318_143123 20250318_143054 20250318_143114 20250318_143153 20250318_143137 20250318_143211 20250318_143803