NEU - Charmantes Einfamilienhaus mit großem Potenzial in Wiener Neustadt

Haus zum Kauf in 2700 Wiener Neustadt - Kaufpreis: 349.000 € / Objektnummer: 7536/122
Ausstattung: Garage Parkplatz Außenparkplatz Zentralheizung Terrasse
Strassenansicht
Gartenansicht
Laube
Rohbauzimmer
Rohbauzimmer
Rohbauzimmer
Rohbauzimmer
Rohbauzimmer
Rohbauzimmer
Gartenbereich
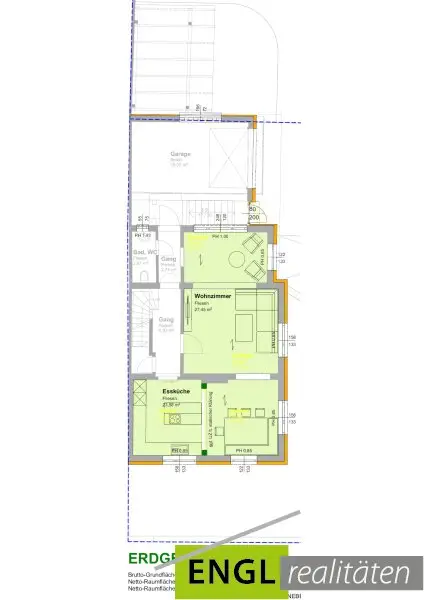
Plan Erdgeschoß - Umbauplan
Plan Obergeschoß - Umbauplan
Plan Keller Umbauplan
3D Ansicht-Endzustand

Preisinformationen

Kaufpreis:
349.000 €
Vermittlungsprovision:
Ja
Provision:
3% des Kaufpreises zzgl. 20% USt.

Fakten

Objektnummer:
7536/122
Objekttyp:
Haus
Terrasse:
1
Keller Fläche:
58,46 m²
Wohnfläche:
96,66 m²
Nutzfläche:
76,48 m²
Grundstücksfläche:
642 m²
Zimmer:
4,5
Badezimmer:
2
Toilette:
2
Baujahr:
1956
Altbau:
Ja
Zustand:
Rohbau
Verfügbarkeit:
Verfügbar

Beschreibung

Der Grundstein ist gelegt – jetzt sind Ihre Ideen gefragt! Dieses interessante Einfamilienhaus in 2700 Wiener Neustadt bietet Ihnen die seltene Gelegenheit, Ihre Wohnträume ganz nach Ihren eigenen Vorstellungen zu verwirklichen.

Das Haus wurde bereits teilweise saniert und befindet sich im Innenbereich im Rohzustand. Die Immobilie wurde entkernt, der alte Estrich entfernt und der Neuaufbau der Böden ist bereits für eine moderne Fußbodenheizung vorbereitet. Die neuen, dreifach verglasten Fenster wurden bereits eingebaut und sorgen künftig für optimale Energieeffizienz und Wohnkomfort. Nun haben Sie die Freiheit, Raumaufteilung, Materialien und Design individuell zu gestalten und ein völlig neues Wohngefühl zu schaffen.

Ein besonderes Highlight ist der großzügige Garten mit Terrasse – ein perfekter Rückzugsort für sonnige Tage, entspannte Stunden im Freien und gesellige Abende mit Familie und Freunden. Hier lässt sich der Alltag wunderbar hinter sich lassen.

Nutzen Sie diese einmalige Gelegenheit, ein Haus nach Ihren eigenen Bedürfnissen zu entwickeln und sich ein Zuhause mit Zukunft zu schaffen.
Ihr neues Zuhause in Wiener Neustadt wartet auf Sie!

Noch nichts gefunden? Wir informieren Sie über geeignete Immobilienangebote noch vor allen anderen.
Legen Sie jetzt Ihren individuellen Suchagenten unter folgendem Link an. Wir schicken Ihnen passende Immobilien exklusiv vorab zu.
Suchagent anlegen [https://thomas-engl.service.immo/registrieren/de] - https://thomas-engl.service.immo/registrieren/de

Wir weisen darauf hin, dass zwischen dem Vermittler und dem zu vermittelnden Dritten ein familiäres oder wirtschaftliches Naheverhältnis besteht.

Der Vermittler ist als Doppelmakler tätig.

Infrastruktur / Entfernungen

Gesundheit
Arzt <1.500m
Apotheke <1.000m
Klinik <2.500m
Krankenhaus <1.000m

Kinder & Schulen
Schule <1.000m
Kindergarten <500m
Höhere Schule <2.000m
Universität <2.500m

Nahversorgung
Supermarkt <1.000m
Bäckerei <1.000m
Einkaufszentrum <1.000m

Sonstige
Bank <500m
Geldautomat <500m
Post <1.500m
Polizei <1.000m

Verkehr
Bus <500m
Autobahnanschluss <3.000m
Bahnhof <2.000m
Flughafen <3.000m

Angaben Entfernung Luftlinie / Quelle: OpenStreetMap
Beschreibung weiterlesen

Lage und Verkehrsanbindung

Die Lage überzeugt: Das Einfamilienhaus befindet sich in einer lebenswerten Umgebung, ideal für Familien und Pendler. In unmittelbarer Nähe finden Sie Apotheken, ein Krankenhaus, Schulen und Kindergärten. Supermärkte, Bäckereien sowie ein Einkaufszentrum decken den täglichen Bedarf bequem ab.
Auch die Verkehrsanbindung ist ausgezeichnet. Busverbindungen ermöglichen eine rasche Erreichbarkeit der umliegenden Stadtteile und sorgen für flexible Mobilität in der Region.

Energieeffizienz

HWB:
233 kWh/(m²*a)
HWB Klasse:
F
fGEE:
3,23
fGEE Klasse:
E
Energieausweisart:
Energiebedarfs-ausweis
Gültig bis:
06.08.2033

Grundrisse

Lageplan

2700 Wiener Neustadt | Wiener Neustadt (Stadt)

Lade...
Thomas Engl

Thomas Engl
gewerberechtlicher Geschäftsführer und behördlich konz. Immobilienmakler

Engl Realitäten GmbH

Lade...

Fotomix

Strassenansicht Gartenansicht Laube Rohbauzimmer Rohbauzimmer Rohbauzimmer Rohbauzimmer Rohbauzimmer Rohbauzimmer Gartenbereich