NEU - (derzeit) 4 Zimmer-Wohnung in wunderschönem, denkmalgeschütztem Gründerzeithaus nahe Belvedere - Gestalten Sie gerne Ihren eigene Wohnung

Wohnung zum Kauf in 1040 Wien - Kaufpreis: 1.000.000 € / Objektnummer: 4299
Ausstattung: Fahrstuhl Bad Etagenheizung

Preisinformationen

Kaufpreis:
1.000.000 €
Betriebskosten netto:
155,28 € / Monat
Vermittlungsprovision:
Ja
Provision:
3% des Kaufpreises zzgl. 20% USt.

Fakten

Objektnummer:
4299
Objekttyp:
Wohnung
Wohnfläche:
121,75 m²
Zimmer:
4
Badezimmer:
1
Toilette:
1
Stockwerk:
4
Altbau:
Ja
Verfügbarkeit:
Verfügbar

Beschreibung

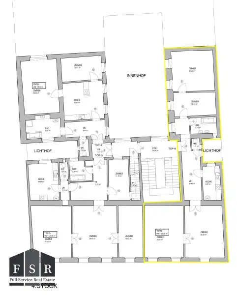
Die Wohnung befindet sich im (zukünftigen) 4. Lift-Stock in einem prachtvollen Gründerzeithaus unweit vom oberen Belvedere. Zwei Zimmer sind Richtung Goldeggasse situiert und die weiteren zwei Zimmer Richtung ruhiger Innenhof.

Die Allgemeinteile der Liegenschaft inkl. Fassaden sind in Sanierung; ein neuer Personenlift eingebaut und im derzeitigen Rohdachboden entstehen moderne Dachgeschosswohnungen etc.

Das Objekt erstreckt sich auf einer gesamten Fläche von ca. 121,75 m² und ist derzeit wie folgt verteilt:

* Vorzimmer
* Küche
* 4 Zimmer
* Badezimmer
* separates WC

Der aktuelle Zustand der Wohnung ist als brauchbar zu bezeichnen - Die Wohnung war bis jetzt vermietet - beheizt wird mittels Gasetagenheizung

Der angegebene Kaufpreis iHv EUR 1.000.000.- bezieht sich auf die Wohnung wie sie liegt und steht.

Optional besteht die Möglichkeit, die Wohnung generalsaniert zu kaufen. Dabei können Sie den Grundriss nach Ihren Vorstellungen gestalten; im Anhang finden Sie einige Skizzen die eine Möglichkeit aufzeigen sollen, die Wohnung in eine 2-5 Zimmerwohnung umzugestalten - ganz nach Ihren Bedürfnissen.

Für die Sanierung liegt bereits ein Kostenvoranschlag einer renommierten Firma vor. Wir stehen Ihnen auf dem Weg zu Ihrer Traumwohnung gerne beratend zur Seite! Der Kaufpreis für die Wohnung im sanierten Zustand beträgt EUR 1.250.000.-

Die Fotos wurden teilweise mit KI bearbeitet - um die Vorstellungskraft zu unterstützen.

 

Lage:

Das Objekt befindet sich in einer äußerst zentral gelegenen Lage des 4.Bezirks - Goldegggasse - , in unmittelbarer Nähe zum Schwarzenbergplatz und dem Belvedere Garten. Die exzellente Infrastruktur bietet gute Anbindungen an öffentliche Verkehrsmittel (Straßenbahnlinie D). 

 

Charme & Eleganz – Altbauflair trifft auf Moderne

Das Gebäude beeindruckt mit klassischen Altbau-Elementen, hohen Decken, teilweise wunderschönen Stuckverzierungen und großen Fenstern, die für ein helles und freundliches Wohnambiente sorgen. 

* Der Eingangsbereich und das Stiegenhaus unterstreichen den historischen Charakter stilvoll
* Ein moderner Aufzug wird soeben eingebaut um den Wohnkomfort weiter zu steigern

Perfekte Lage – Urbanes Leben in Bestform

Die Lage ist einfach sensationell:

* Das Belvedere und der Hauptbahnhof direkt ums Eck
* Die Innenstadt ist nur wenigen Straßenbahnfahrtminuten entfernt
* Mit dem Hauptbahnhof in Gehweite ist eine perfekte Verkehrsanbindung garantiert.
* Auch Einkaufsmöglichkeiten für den täglichen Bedarf befinden sich in Gehweite

Ideal für Familien, Kunst- & Stadtliebhaber 

Ob Familien, Kunstinteressierte, Vielreisende oder Paare – diese Wohnlage bietet für jeden Lebensstil das Richtige. In unmittelbarer Umgebung befinden sich zahlreiche Cafés, Restaurants, kulturelle Hotspots und trendige Lokale, die das urbane Leben in Wien so besonders machen.

 

INFORMATIV:

Es stehen derzeit und zukünftig weitere Wohnungen im Haus zum Verkauf - gerne danach fragen.

 

Kontakt:

Für weitere Fragen sowie zur Vereinbarung eines Besichtigungstermins senden bitte Ihre Kontaktanfrage samt Terminvorschlag an office@fsr-real.at.

Bitte beachten Sie, dass per 13.06.2014 eine neue EU-Richtlinie für Fernabsatz- und Auswärtsgeschäfte in Kraft getreten ist.

Da es immer wieder zu Missverständnissen kommt, möchten wir Sie darüber informieren, dass ein Provisionsanspruch erst nach Unterzeichnung eines Miet- oder Kaufanbotes besteht. Eine Besichtigung ist nach wie vor unverbindlich und kostenlos!

Dieses Objekt wird Ihnen unverbindlich und freibleibend zum Kauf angeboten. Oben angeführte Angaben basieren auf Informationen und Unterlagen des Eigentümers und sind unsererseits ohne Gewähr. Im Falle eines Abschlusses mit Ihnen oder einem von Ihnen namhaft gemachten Dritten bzw. bei beidseitiger Willensübereinstimmung beträgt unser Honorar (lt. Honorarverordnung für Immobilienmakler) 3% des Kaufpreises zuzüglich der gesetzlichen Umsatzsteuer. Wir möchten darauf hinweisen, dass zwischen der FSR Immobilienvermarktungs- & beteiligungs GmbH und dem Auftraggeber ein wirtschaftliches Naheverhältnis besteht. Die FSR Immobilienvermarktungs- & beteiligungs GmbH ist als Doppelmakler tätig.

Die von uns erbrachten Informationen beruhen auf Angaben des Abgebers. Für die Richtigkeit und Vollständigkeit der Angaben kann keine Gewähr bzw. Haftung übernommen werden.

Wir weisen darauf hin, dass zwischen dem Vermittler und dem zu vermittelnden Dritten ein familiäres oder wirtschaftliches Naheverhältnis besteht.

Der Vermittler ist als Doppelmakler tätig.

Infrastruktur / Entfernungen

Gesundheit
Arzt <500m
Apotheke <500m
Klinik <1.000m
Krankenhaus <1.500m

Kinder & Schulen
Schule <500m
Kindergarten <500m
Universität <1.000m
Höhere Schule <1.000m

Nahversorgung
Supermarkt <500m
Bäckerei <500m
Einkaufszentrum <1.000m

Sonstige
Geldautomat <500m
Bank <500m
Post <500m
Polizei <1.000m

Verkehr
Bus <500m
U-Bahn <500m
Straßenbahn <500m
Bahnhof <500m
Autobahnanschluss <2.000m

Angaben Entfernung Luftlinie / Quelle: OpenStreetMap
Beschreibung weiterlesen

Lage und Verkehrsanbindung

Goldeggasse / Belvedere / Hauptbahnhof

Belvedere

Energieeffizienz

HWB:
117,7 kWh/(m²*a)
HWB Klasse:
D
fGEE:
2,69
Energieausweisart:
Energiebedarfs-ausweis
Gültig bis:
10.02.2035

Grundrisse

Lageplan

1040 Wien | Wien 4., Wieden

Lade...
Gabor Rudnay

Gabor Rudnay
Geschäftsführender Gesellschafter

FSR Immobilienvermarktungs- u. -beteiligungs GmbH

Lade...

Fotomix

Bild 1 Bild 2 Bild 3 Bild 4 Bild 5 Bild 6 Bild 7 Bild 8 Bild 9 Bild 10 Bild 11 Bild 12 Bild 13 Bild 14