NEU - ERSTBEZUG | Helle 1-Zimmer Wohnung mit Balkon – ideal für Singles & Anleger | TOP 8

Wohnung zum Kauf in 1230 Wien - Kaufpreis: 219.000 € / Objektnummer: 453
Ausstattung: Barrierefrei Boden Fahrstuhl Wohnküche / offene Küche Bad Garage Parkplatz Fahrradraum Abstellraum Fußbodenheizung Balkon

Preisinformationen

Kaufpreis:
219.000 €
Kaufpreis/m²
5.514,98 €
Vermittlungsprovision:
Ja
Provision:
3% des Kaufpreises zzgl. 20% USt.

Fakten

Objektnummer:
453
Objekttyp:
Wohnung
Balkon:
1
Balkonfläche:
4,64 m²
Keller Fläche:
2 m²
Wohnfläche:
39,71 m²
Zimmer:
1
Badezimmer:
1
Toilette:
1
Stockwerk:
2
Baujahr:
2025
Neubau:
Ja
Zustand:
Erstbezug
Verfügbarkeit:
Verfügbar
Verfügbar ab:
Q2/2026

Beschreibung

HERZLICH WILLKOMMEN IN DIESEM WUNDERSCHÖNEN NEUBAUPROJEKT
Exklusive Eigentumswohnungen & 2 Reihenhäuser in der Breitenfurter Straße 504, 1230 Wien

Im beliebten 23. Wiener Gemeindebezirk, an der Breitenfurter Straße 504, entsteht ein modernes Wohnprojekt in Ziegelmassivbauweise mit 6 Eigentumswohnungen sowie 2 großzügigen Reihenhäusern. Die Lage vereint die Vorteile urbaner Infrastruktur mit der Nähe zu weitläufigen Grünflächen: Der Lainzer Tiergarten und der Maurer Wald laden zu Spaziergängen und Erholung ein, während vielfältige Einkaufsmöglichkeiten, Schulen und Freizeiteinrichtungen in wenigen Minuten erreichbar sind. 

Die Objekte wurden mit viel Liebe zum Detail geplant und bieten durchdachte Grundrisse mit 1 bis 5 Zimmern und Wohnflächen von ca. 40 bis 168 m² – ideal sowohl für Singles, Paare als auch Familien. Viele Einheiten verfügen über attraktive Freiflächen in Form von Balkonen, Terrassen oder Eigengärten, die zusätzlichen Wohnkomfort schaffen. Großzügige Fensterflächen sorgen für lichtdurchflutete Räume und ein besonders angenehmes Wohnambiente.

Auch die beiden Einfamilienhäuser überzeugen durch großzügige Raumaufteilung, moderne Ausstattung und private Gärten, die ein hohes Maß an Lebensqualität garantieren.

Die gute Anbindung an den öffentlichen Verkehr (u. a. Buslinien in Gehdistanz sowie S-Bahn-Anschluss in der Umgebung) und die gute Infrastruktur machen dieses Projekt zu einer besonders attraktiven Wohnadresse.

Die Wohnungen und die Häuser verfügen über eine ebenerdig erreichbare Tiefgarage mit Autoabstellplätzen und über eine moderne Heizanlage mittels Luftwasserwärmepumpe.

Die Fertigstellung des Projekts ist für das 2. Quartal 2026 geplant.

► Hinweis zum Baufortschritt:
_Derzeit werden die Arbeiten am Innenputz, an der Fassade sowie am Estrich durchgeführt. Die gezeigten Bilder sind als Renderings bzw. KI-Visualisierungen zu verstehen und dienen ausschließlich der räumlichen Veranschaulichung. Bitte beachten Sie, dass Bodenbeläge, Materialien und Ausstattungsdetails nicht in allen Punkten exakt der späteren Ausführung entsprechen._

 

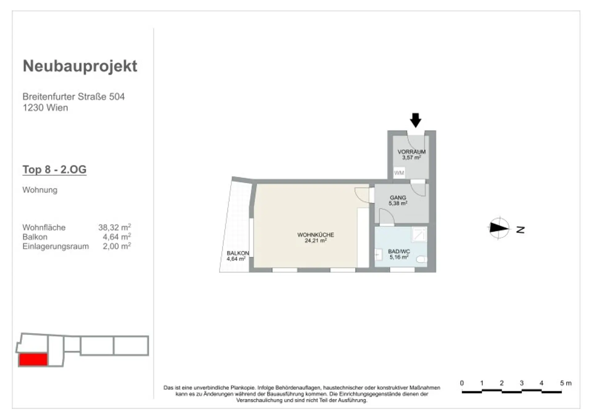
TOP 8

DIE ECKDATEN

* zentral begehbar
* 1-Zimmer Wohnung im 2. Stock
* ca. 38 m² im Wohnungsinneren
* gut geschnittener Vorraum
* großzügiges Wohn-/Schlafzimmer mit Platz für eine offene Küche
* vollausgestattetes Bad mit Dusche & WC
* Balkon
* Einlagerungsraum im Keller

 

DIE WOHNUNG

Der Vorraum der Wohnung ist gut geschnitten, hat einen Waschmaschinenanschluss und bietet Platz für eine Garderobe. Über einen Gang - mit ausreichend Platz für einen Schreibtisch - geht es in das Badezimmer. Dieses ist mit WC und Waschtisch von LAUFEN, einer Dusche mit Glas-Duschtrennwand, Markenarmaturen von GROHE, einem Sprossen-Handtuchwärmer bereits voll und hochwertig ausgestattet. 

Weiter geht es in den großzügigen Wohn-/Koch-/Schlafbereich mit ca. 24 m². Diese ist hell und lichtdurchflutet und bietet Platz für eine offene Küche. Von hier aus begehen Sie auch das Highlight dieses Objekts: den gemütlichen Balkon. 

Die Wohnung bietet einen Einlagerungsraum im Keller für zusätzlichen Stauraum.

 

DIE AUSSTATTUNG

Die Wohnung ist standardmäßig bereits hochwertig ausgestattet:

* 3-fach verglaste Isolierglas-Kunststofffenster
* Fußbodenheizung
* Hochwertiger 2-Schichtparkett Eiche

 

Bad:

* Waschtisch und WC von LAUFEN
* Markenarmaturen von GROHE
* Handtuchheizkörper
* Dusche mit Markenbrause von GROHE
 

_Natürlich können auch individuelle Wünsche oder Änderungen (gleichwertig oder höherpreisig gegen Aufzahlung) im jeweiligen Bauabschnitt berücksichtigt werden._

 

DIE GEBÄUDE

Das Gebäude verfügt über:

* zur jeweiligen Wohnung zugeordnete über 2 m² große Einlagerungsräume
* 6 Tiefgaragenparkplätze*
* Fahrrad-/Kinderwagenraum
* Müllraum
* Aufzug 

_* Bei Bedarf und nach Verfügbarkeit kann um € 29.000,- ein Tiefgaragenstellplatz erworben werden._

 

DIE LAGE 

Genießen Sie pure Lebensqualität in City-Nähe. Eingebettet zwischen dem traditionsreichen Kalksburg, dem charmanten Rodaun und der angrenzenden Gemeinde Perchtoldsdorf präsentiert sich die Breitenfurter Straße 504 als Wohnadresse mit ganz besonderem Reiz. Familien schätzen besonders die naturnahe Umgebung und die hervorragende Anbindung an den Wienerwald. Der Lainzer Tiergarten – eines der schönsten Erholungsgebiete Wiens – liegt praktisch vor der Haustür und lädt zu Spaziergängen, Radtouren und Ausflügen ins Grüne ein.

Gleichzeitig ist die Infrastruktur hervorragend: Schulen wie das Kollegium Kalksburg oder Santa Christiana, Kindergärten, Supermärkte und zahlreiche Nahversorger sind rasch erreichbar. Auch die öffentliche Anbindung überzeugt – in Gehweite befinden sich die Buslinien 60A, 250 und 253. Die Straßenbahnlinie 60 ist auch schnell erreichbar. In nur 7 Autominuten gelangen Sie zum Einkaufszentrum Riverside oder zum Bahnhof Liesing mit diversen S-Bahn- und Regionalzug-Verbindungen. 

Auch alle weiteren Einrichtungen des täglichen Bedarfs sind in unmittelbarer Umgebung innerhalb weniger Minuten erreichbar!

Die Lage bietet somit die perfekte Kombination aus urbanem Komfort und naturnaher Erholung – ideal für alle, die das Beste aus beiden Welten verbinden möchten.
 

 

INTERESSIERT? 
Gerne stehen wir jederzeit für einen persönlichen Termin oder Rückfragen aller Art
unter office@impuls-immobilien.at bzw. telefonisch unter 0650/8566764 jederzeit zur Verfügung!

WIR FREUEN UNS AUF IHRE ANFRAGE!

Werfen Sie gerne auch einen Blick auf alle weiteren verfügbaren TOPs dieses Projekts auf unserer Website.

Wir weisen darauf hin, dass zwischen dem Vermittler und dem zu vermittelnden Dritten ein familiäres oder wirtschaftliches Naheverhältnis besteht.

Infrastruktur / Entfernungen

Gesundheit
Arzt <625m
Apotheke <600m
Klinik <375m
Krankenhaus <450m

Kinder & Schulen
Schule <550m
Kindergarten <650m
Universität <5.350m
Höhere Schule <7.500m

Nahversorgung
Supermarkt <500m
Bäckerei <550m
Einkaufszentrum <1.900m

Sonstige
Geldautomat <425m
Bank <425m
Post <425m
Polizei <2.150m

Verkehr
Bus <125m
U-Bahn <4.325m
Straßenbahn <875m
Bahnhof <2.375m
Autobahnanschluss <3.725m

Angaben Entfernung Luftlinie / Quelle: OpenStreetMap
Beschreibung weiterlesen

Lage und Verkehrsanbindung

Breitenfurter Straße 504 | 1230 Wien | Maurer Berg | Lainzer Tiergarten | Bahnhof Liesing

Energieeffizienz

HWB:
37,6 kWh/(m²*a)
HWB Klasse:
B
fGEE:
0,7
fGEE Klasse:
A+
Energieausweisart:
Energiebedarfs-ausweis
Gültig bis:
29.12.2030

Grundriss

Lageplan

1230 Wien | Wien 23., Liesing

Lade...
Markus Verner

Markus Verner
Geschäftsführung

IMPULS Immobilien

Lade...

Fotomix

Bild 1 Bild 2 Bild 3 Bild 4 Bild 5