NEU - Erstbezug - moderne, sehr sonnige Neubau-Terrassenwohnung mit großzügiger Freifläche in Klosterneuburg

Wohnung zum Kauf in 3400 Klosterneuburg - Kaufpreis: 365.000 € / Objektnummer: 3313
Ausstattung: Barrierefrei Rollstuhlgerecht Fahrstuhl Kabel/Satelliten-TV Klimaanlage Garage Parkplatz Außenparkplatz Fußbodenheizung Terrasse Garten

Preisinformationen

Kaufpreis:
365.000 €
Betriebskosten netto:
105,00 € / Monat
Preisinfos:
Verhandlungsbasis
Provision:
3.00 %

Fakten

Objektnummer:
3313
Objekttyp:
Wohnung
Terrasse:
1
Keller Fläche:
3 m²
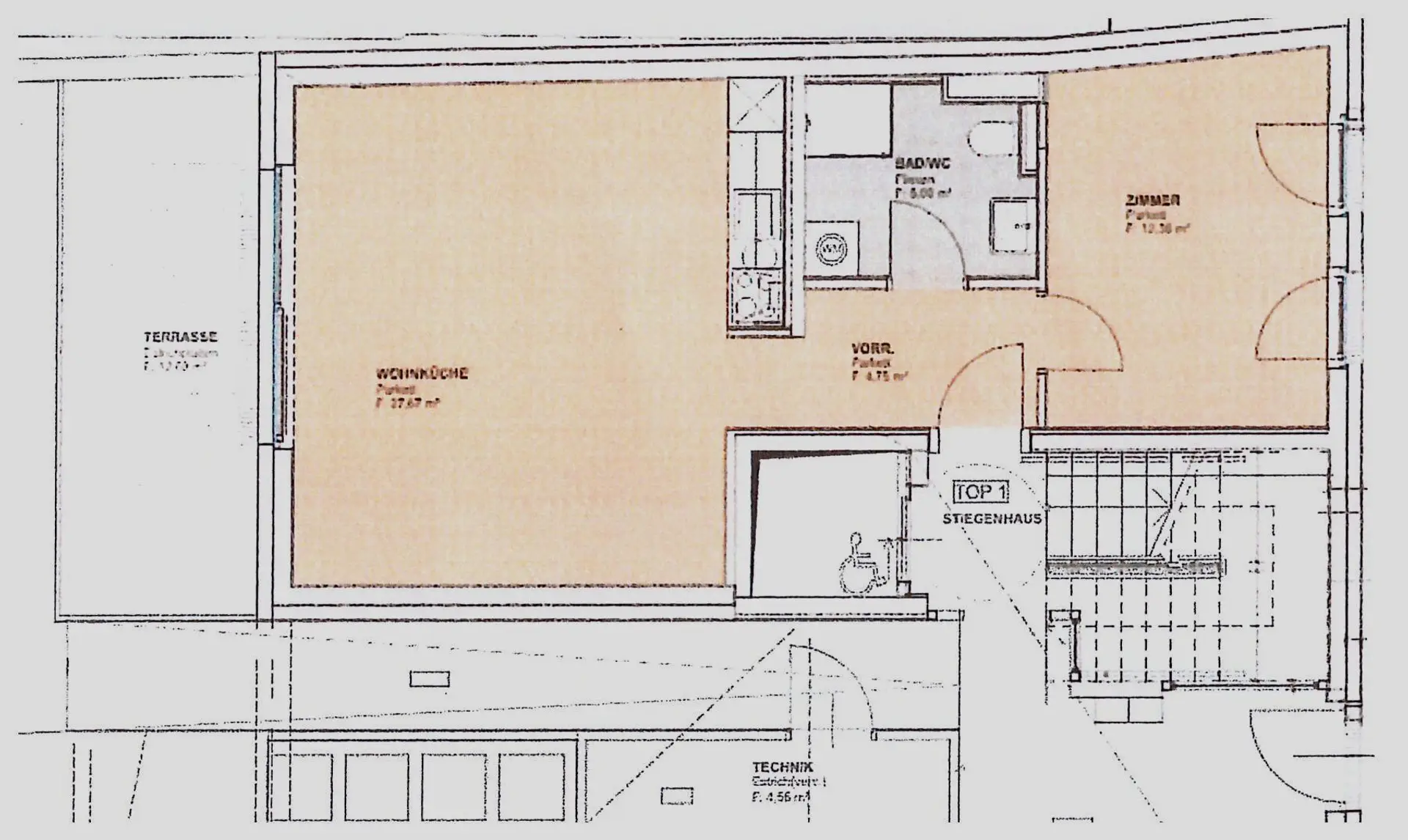
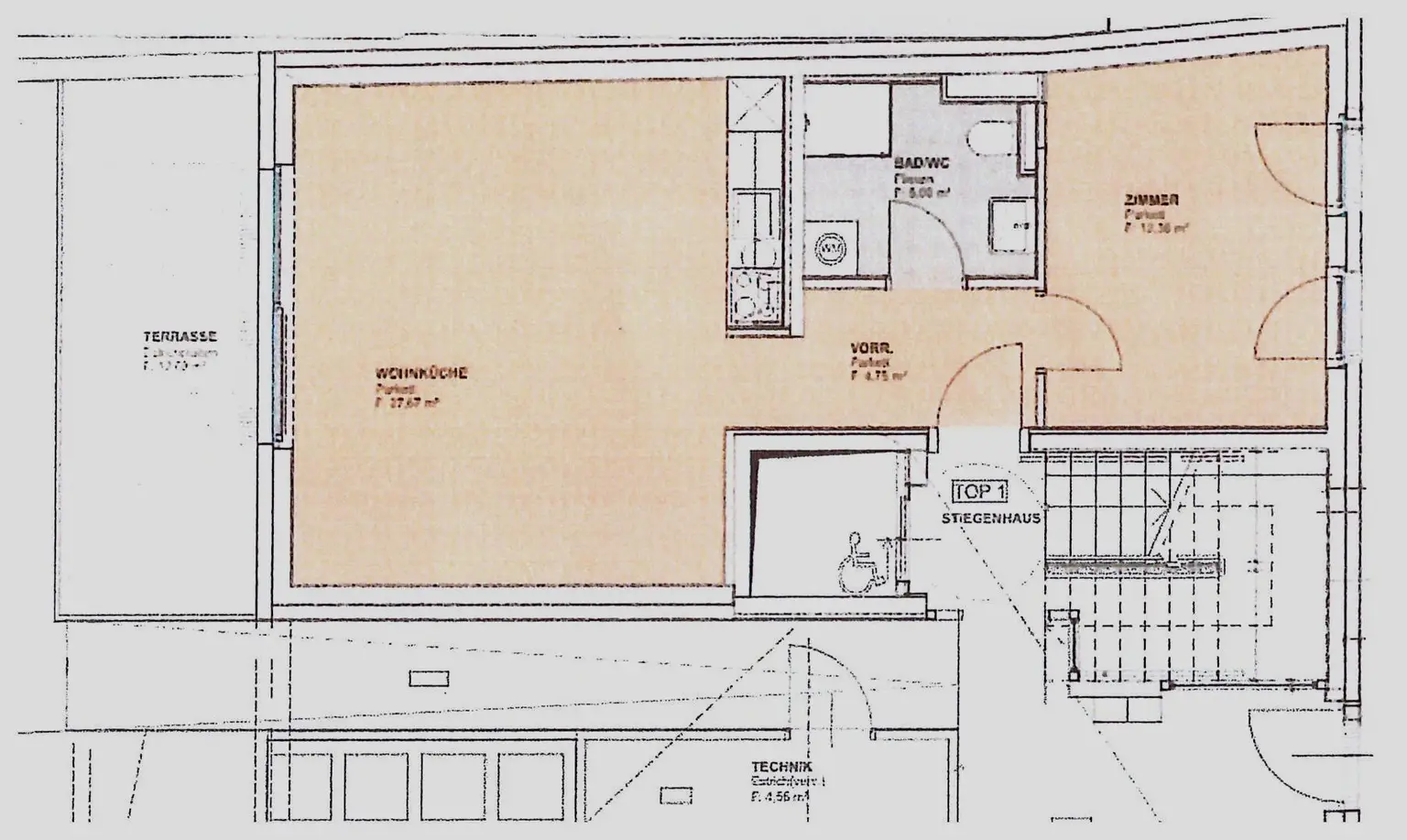
Wohnfläche:
50 m²
Gartenfläche:
30 m²
Zimmer:
2
Schlafzimmer:
1
Badezimmer:
1
Toilette:
1
Baujahr:
ca. 2025
Neubau:
Ja
Zustand:
Erstbezug
Verfügbarkeit:
Verfügbar
Verfügbar ab:
Vereinbarung

Beschreibung

Erstbezug - moderne, sehr sonnige Neubau-Terrassenwohnung mit großzügiger Freifläche in Klosterneuburg.

In bester und sonniger Lage Klosterneuburgs wurde ein exklusiver und lichtdurchfluteter Wohnbau errichtet, in dem sechs traumhafte Wohnungen mit großzügigen Außenflächen entstanden sind. Es gibt einen Gemeinschaftsgarten und zu allen Wohnungen Balkone, Terrassen oder Eigengarten.

Diese Terrassenwohnung besteht aus:

- einem sonnendurchfluteten, großen Wohnbereich mit direktem Ausgang auf die Terrasse mit Grünblick
- offener Küche
- 1 Schlafzimmer
- ein Badezimmer mit WC
- Vorraum

- 1 traumhafte Terrasse mit insgesamt ca.13 m²

Sie ist ausgestattet mit:

- einer gemütlichen Fußbodenheizung,
- Vollholz -Parkettböden,
- hochwertigem Badezimmer
- großzügigen Fensterflächen
- Rollläden
- Klimaanlage

Die Wohnung ist bis zur unteren Wohnebene barriefrei erreichbar.

Zur Wohnung gehört auch ein Garagenplatz, dieser ist um zusätzliche € 25.000,- zu erwerben.

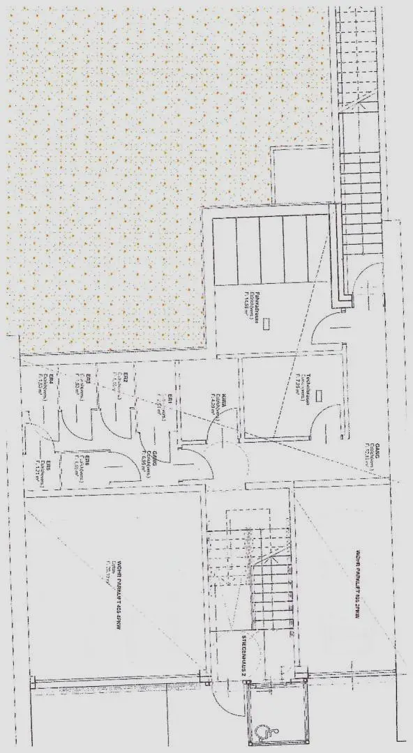
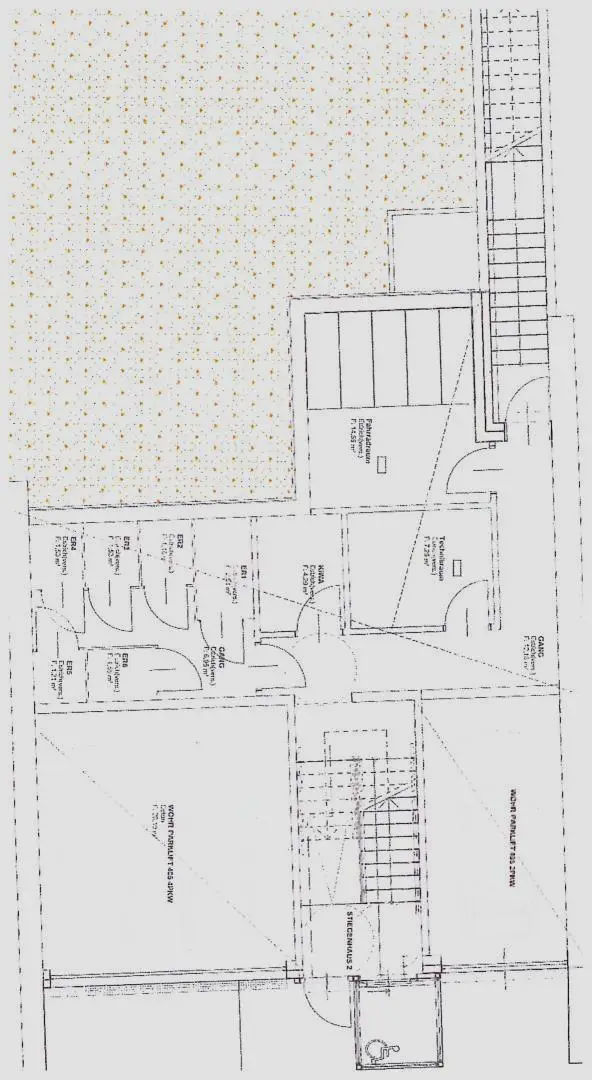
Die nachhaltige Bauweise, der durchdachte Grundriss, das eigene Kellerabteil, der allgemeine Fahrrad- und Kinderwagenabstellraum, der Garagenplatz und Barrierefreiheit sind weitere Vorzüge des modernen Gebäudes und ermöglichen ein unkompliziertes Wohnen und leichtes Leben.

Klosterneuburg ist ein Ort mit hoher Lebens- und Wohnqualität, mit viel Natur in der Nähe mit Wienerwald, Weinberge, Aulandschaft und Donau, eine historische Stadt mit Kloster, Kirchen und Heurigen. Sie hat sich auch als moderne Wissenschaftsstadt und Zentrum führender Forschungs- sowie Bildungsstätten etablieren und bietet die Freiheit für sämtliche Sportmöglichkeiten zu jeder Jahreszeit z.B. Wandern, Laufen, Rad-und Mountainbike, Tennis, Wasser- und Rudersport, mit Kuchelauer Hafen und dem Strandbad Kritzendorf nebenan.

Lage: Nähe Ölberg
ca. 15 min. mit dem Auto nach Wien
ca. 20 min. ins Zentrum von Wien

Bushaltestelle in unmittelbarer Nähe
Zentrum von Klosterneuburg - ca. 20 min. zu Fuß
ca. 12 min. zu Fuß zum Bahnhof Unterkritzendorf
und dann mit der S 40 in ca. 15 min. Wien - Spittelau - U4

Supermarkt fußläufig erreichbar.

Sehr gerne steht Ihnen Herr Martin Wicho für weitere Informationen und einer Besichtigung unter 0660/160 60 00 oder unter wicho@dimagimmobilien.at zu Verfügung.

Wir freuen uns auf Ihre Anfrage, um Ihnen diese herausragende Terrassenwohnung näherbringen zu können.

Vielen Dank.

Dieses Projekt befindet sich derzeit noch in der Baufertigstellung. Eine Komplettierung ist bis Mitte 2026 geplant. Besichtigungen sowie ein Aufklärungsgespräch sind aber bereits jetzt schon sehr gerne möglich.
Angaben gemäß gesetzlichem Erfordernis:
Heizwärmebedarf: 54.2 kWh/(m²a)
Klasse Heizwärmebedarf: B
Beschreibung weiterlesen

Energieeffizienz

HWB:
54,2 kWh/(m²*a)
HWB Klasse:
B
Energieausweisart:
Energiebedarfs-ausweis

Lageplan

3400 Klosterneuburg | Sankt Pölten (Land)

Lade...
Martin Wicho

Martin Wicho

DIMAG - Die Immobilienagentur GmbH

Lade...

Fotomix

Albrechtstrasse 1 Albrechtstrasse 2 Albrechtstrasse 3 Albrechtstrasse 4 Albrechtstrasse 5 Albrechtstrasse 6 Albrechtstrasse Obj.3313 Plan Klosterneuburg Nebenräume+Garage Klosterneuburg-Haus 1 Klosterneuburg-Rendering-Vorschlag