NEU - Exklusives Stadthaus mit Doppelhauscharakter – Wohnen & Arbeiten auf 239 m² und 99 m² Terrassen in Hinterhoflage

Wohnung zum Kauf in 1100 Wien - Kaufpreis: 1.390.000 € / Objektnummer: 1939/217787
Ausstattung: Boden Bad Gäste-WC Klimaanlage Fußbodenheizung Terrasse

Preisinformationen

Kaufpreis:
1.390.000 €
Vermittlungsprovision:
Ja
Provision:
3% des Kaufpreises zzgl. 20% USt.

Fakten

Objektnummer:
1939/217787
Objekttyp:
Wohnung
Terrasse:
4
Keller Fläche:
25 m²
Wohnfläche:
238,9 m²
Zimmer:
8
Badezimmer:
4
Toilette:
4
Neubau:
Ja
Verfügbarkeit:
Verfügbar
Verfügbar ab:
sofort

Beschreibung

Eingebettet in einen ruhigen Hinterhof präsentiert sich diese außergewöhnliche Immobilie als wahres Unikat am Markt. Die Wohnung vereint auf beeindruckende Weise Privatsphäre mit den Vorzügen städtischen Lebens und bietet ein Wohnkonzept, das an ein modernes Doppelhaus erinnert.

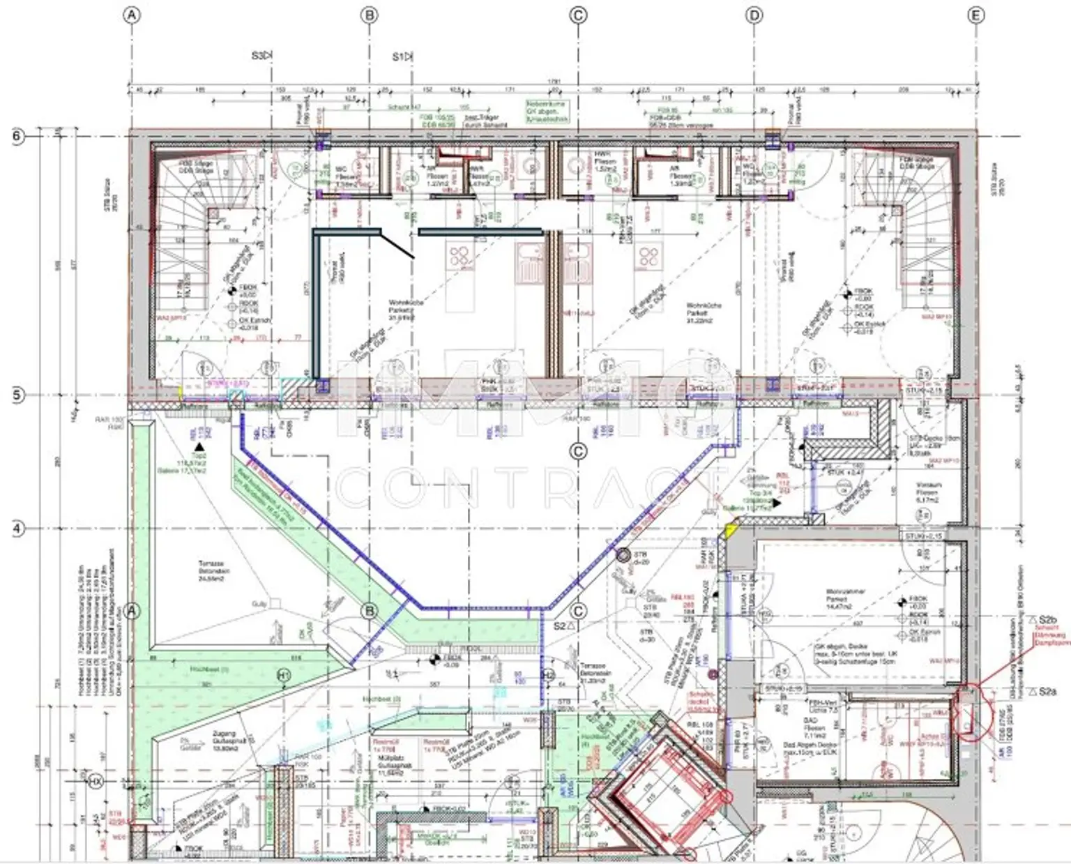
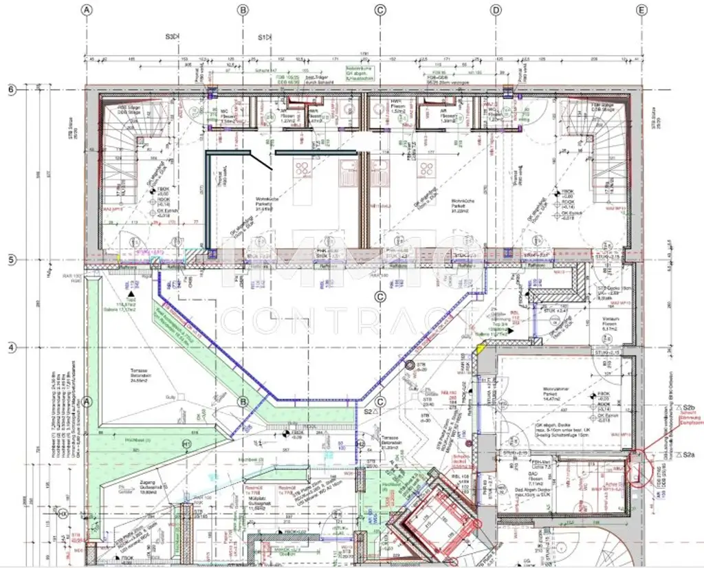
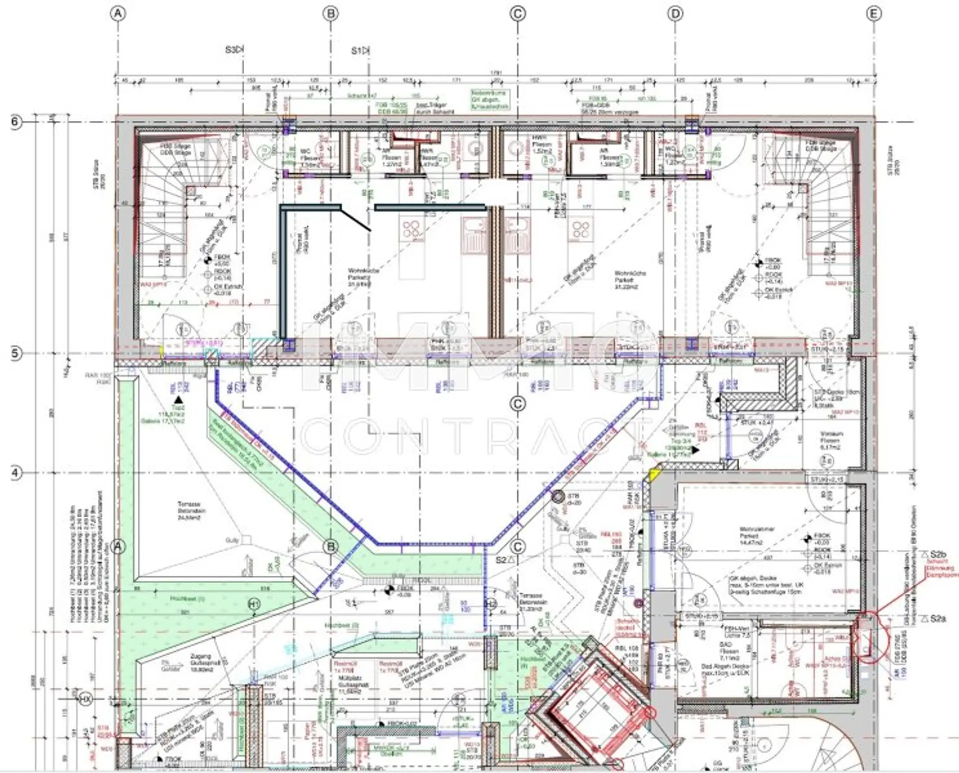
Auf einer großzügigen Wohnfläche von ca. 239 m² erstreckt sich die Einheit über drei Ebenen und eröffnet vielfältige Nutzungsmöglichkeiten – sei es als Wohnsitz, als Kombination aus Wohnen und Arbeiten oder als zwei getrennte Wohneinheiten. Zwei separate Eingänge unterstreichen die Flexibilität dieser Immobilie und schaffen ideale Voraussetzungen für individuelle Lebenskonzepte.

Insgesamt stehen acht Zimmer zur Verfügung, darunter eine großzügige Wohnküche als zentraler Treffpunkt des Hauses. Die weiteren Räume lassen sich flexibel als Schlaf-, Arbeits-, Gäste- oder Besprechungszimmer nutzen und bieten somit ein Höchstmaß an Gestaltungsfreiheit. Ergänzt wird das Raumangebot durch insgesamt vier hochwertig ausgestattete Badezimmer sowie vier separate WCs, was sowohl den Wohnkomfort als auch die Nutzbarkeit für größere Haushalte oder kombinierte Wohn- und Arbeitskonzepte deutlich erhöht.

Im Obergeschoss begeistern die Räume zusätzlich durch eine stilvolle Galerieebene, die vielseitig genutzt werden kann und dem Wohnambiente eine besondere architektonische Note verleiht.

Einen weiteren Vorteil stellt der große, im eigenen Gebäude befindliche Keller- bzw. Hobbyraum dar, der zusätzlichen Stauraum sowie vielfältige Nutzungsmöglichkeiten – etwa als Fitnessbereich, Atelier oder Werkstatt – bietet. Zwei weitere geräumige Kellerabteile stehen Ihnen im Haupthaus ebenfalls zur Verfügung.

Die drei Terrassen mit einer Gesamtfläche von rund 99 m² erweitern den Wohnraum ins Freie und schaffen eine private Rückzugsoase mitten in der Stadt. Hier eröffnen sich zahlreiche Möglichkeiten für Entspannung, gesellige Stunden oder repräsentative Zwecke.

Die Ausstattung lässt keine Wünsche offen: Edle Eichenparkettböden verleihen den Räumen eine warme und hochwertige Atmosphäre, während moderne Bäder mit zeitgemäßem Design überzeugen. Beheizt wird die Immobilie mittels Gasheizung in Kombination mit komfortabler Fußbodenheizung, was ein angenehmes Wohnklima auf allen Ebenen gewährleistet. Alle Fenster verfügen über eine elektrische Beschattung; die Dachflächenfenster sind zudem mit Regensensoren ausgestattet, die ein automatisches Schließen bei Niederschlag gewährleisten. Für zusätzlichen Komfort sorgt im oberen Stockwerk eine moderne Klimaanlage, die auch an warmen Tagen ein angenehmes Raumklima gewährleistet. Eine am Haupthaus installierte Photovoltaikanlage unterstützt eine energieeffiziente und nachhaltige Stromversorgung.
Der Zustand ist als äußerst gepflegt und bezugsbereit zu beschreiben, sodass einem unmittelbaren Einzug nichts im Wege steht.

Die Liegenschaft wurde ursprünglich als Doppelhaus konzipiert und errichtet. Aktuell sind die Einheiten im Erdgeschoss zusammengelegt, wodurch das gesamte Haus durchgängig begehbar ist. Mit überschaubarem Aufwand lassen sich jedoch wieder zwei separate Einheiten herstellen, was zusätzliche Flexibilität in der Nutzung ermöglicht.

Diese Immobilie vereint Großzügigkeit und modernen Wohnkomfort in einer aufstrebenden Wiener Lage und bietet damit eine seltene Gelegenheit für all jene, die das Besondere suchen. Die Liegenschaft eignet sich nicht nur für Wohnzwecke sondern auch für eine gewerbliche Nutzung und bietet damit ein Höchstmaß an Flexibilität.

Kontaktieren Sie mich für detaillierte Informationen und vereinbaren Sie noch heute einen Besichtigungstermin! Ich freue mich, Ihnen diese interessante Liegenschaft näher bringen zu dürfen!

Frau Simone VASICEK 0676 / 841 420 605

Der Vermittler ist als Doppelmakler tätig.

Infrastruktur / Entfernungen

Gesundheit
Arzt <500m
Apotheke <500m
Klinik <500m
Krankenhaus <2.000m

Kinder & Schulen
Schule <500m
Kindergarten <500m
Universität <1.000m
Höhere Schule <2.500m

Nahversorgung
Supermarkt <500m
Bäckerei <500m
Einkaufszentrum <1.000m

Sonstige
Geldautomat <500m
Bank <500m
Post <500m
Polizei <1.000m

Verkehr
Bus <500m
U-Bahn <500m
Straßenbahn <500m
Bahnhof <500m
Autobahnanschluss <1.500m

Angaben Entfernung Luftlinie / Quelle: OpenStreetMap
Beschreibung weiterlesen

Lage und Verkehrsanbindung

Die Wohnung befindet sich in äußerst zentraler Lage im 10. Wiener Gemeindebezirk, nur wenige Schritte vom lebendigen Reumannplatz entfernt. Dieser Bereich zählt zu den aufstrebenden urbanen Zentren der Stadt und profitiert von einer kontinuierlichen Weiterentwicklung sowie gezielten Aufwertungsmaßnahmen, die für eine zunehmende Attraktivität sorgen.
Die unmittelbare Umgebung zeichnet sich durch eine ausgezeichnete Nahversorgung und eine vielfältige Infrastruktur aus. Zahlreiche Einkaufsmöglichkeiten, gastronomische Angebote sowie Dienstleistungsbetriebe befinden sich in direkter Umgebung und unterstreichen den urbanen Charakter des Standorts. Gleichzeitig sorgt die hervorragende Anbindung an den öffentlichen Verkehr – insbesondere durch die U-Bahn-Linie U1 – für eine rasche Erreichbarkeit der Wiener Innenstadt und anderer zentraler Knotenpunkte.
Darüber hinaus bietet das Umfeld eine interessante Mischung aus städtischem Leben und Erholungsmöglichkeiten. In kurzer Distanz befinden sich mehrere Grünanlagen und Freizeitflächen, die Raum für Entspannung und sportliche Aktivitäten bieten.
Insgesamt präsentiert sich die Mikrolage rund um den Reumannplatz als dynamischer und zukunftsorientierter Standort, der insbesondere durch seine Zentralität, die ausgezeichnete Erreichbarkeit sowie die fortlaufende Aufwertung überzeugt und damit eine attraktive Basis für nachhaltige Wohnqualität bietet.

Energieeffizienz

HWB:
49,5 kWh/(m²*a)
HWB Klasse:
C
fGEE:
0,8
fGEE Klasse:
A
Energieausweisart:
Energiebedarfs-ausweis
Gültig bis:
03.04.2026

Grundrisse

Lageplan

1100 Wien | Wien 10., Favoriten

Lade...
Simone Vasicek

Simone Vasicek
Regionalmanagerin NÖ Süd & Burgenland

IMMOcontract Immobilien Vermittlung GmbH

Lade...

Fotomix

Bild 1 Bild 2 Bild 3 Bild 4 Bild 5 Bild 6 Bild 7 Bild 8 Bild 9 Bild 10 Bild 11 Bild 12 Bild 13 Bild 14 Bild 15 Bild 16 Bild 17