NEU - FAMILIENNEST mit GARTEN - gefördert4ZI - Reihenhaus mit viel Stauraum und 2Stellplätzen!

Haus zum Kauf in 3500 Krems an der Donau - Kaufpreis: 408.463 € / Objektnummer: 1939/132816
Ausstattung: Boden Gäste-WC Abstellraum Fußbodenheizung Terrasse Garten WG geeignet
©DSH_0842 Kopie
©DSH_0850 Kopie
©DSH 0799 Kopie
©DSH 0843 Kopie
©DSH_0781 Kopie
©DSH_0831 Kopie
©DSH_0836 Kopie
©DSH_0875 Kopie
©DSH 0829 Kopie
©DSH 0863 Kopie
©DSH-0869 Kopie
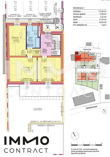
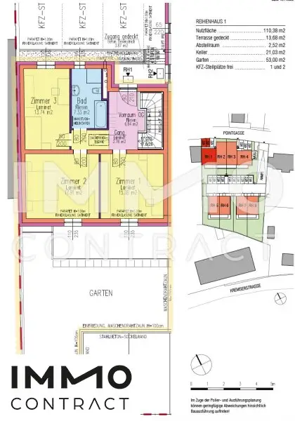
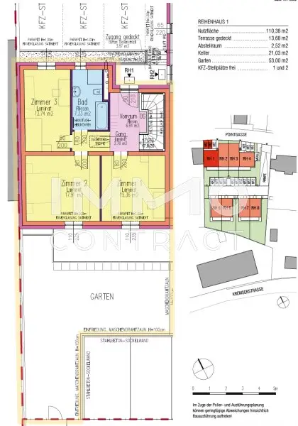
Plan RH1 OG
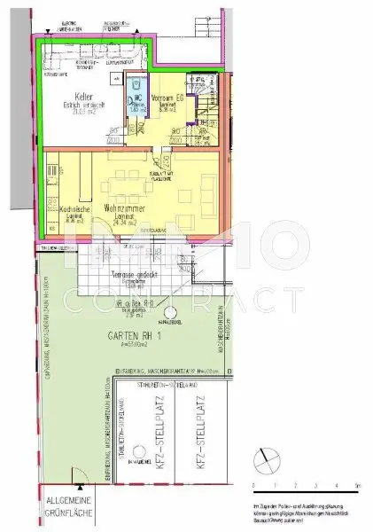
Plan RH1 EG

Preisinformationen

Kaufpreis:
408.463 €
Kaufpreis/m²
3.484,58 €
Provision:
Provision bezahlt der Abgeber.

Fakten

Objektnummer:
1939/132816
Objekttyp:
Haus
Terrasse:
1
Keller Fläche:
21,03 m²
Wohnfläche:
110,38 m²
Gartenfläche:
53 m²
Zimmer:
4
Badezimmer:
1
Toilette:
2
Verfügbarkeit:
Verfügbar

Beschreibung

Charmantes Familiennest mit Garten – Ihr neues Zuhause zum Wohlfühlen!

Willkommen in Ihrem neuen Zuhause! Dieses liebevoll gestaltete 4-Zimmer-Reihenhaus bietet mit rund 110,38 m² Wohnnutzfläche ausreichend Raum für Familie, Freunde und gemeinsames Leben.

Im Erdgeschoss erwartet Sie ein großzügiger, lichtdurchfluteter Wohn- und Essbereich mit direktem Zugang zur gedeckten Terrasse – perfekt für gemütliche Familienabende oder entspannte Stunden im Freien. Ein praktischer Außenabstellraum sorgt für zusätzlichen Stauraum.

Der 53 m² große Eigengarten lädt Kinder zum Spielen und Erwachsene zum Entspannen ein – ein echtes Highlight für alle, die Natur und Privatsphäre schätzen.

Im Obergeschoss befinden sich 3 behagliche Schlafräume, die genügend Rückzugsmöglichkeiten für Groß und Klein bieten. Die durchdachte Raumaufteilung schafft ein harmonisches Wohngefühl und lässt keine Wünsche offen.

Highlights auf einen Blick:

110,38 m² Wohnnutzfläche
4 großzügige Zimmer
Wannen/Duschbad, 2WCs
3 Schlafzimmer
überdachte Terrasse mit Außenabstellraum
53m² Eigengarten
familienfreundliche Lage
modernes, gemütliches Ambiente
Technikraum mit Kondenstrockner, Stauraum für Waschmaschine und Hausrat
Wärmepumpe mit Wohnraumbelüftung, Photovoltaik
2Parkplätze

Kaufpreis gesamt: € 408.462,72,-

Eigenmittel: € 165.214,70
2KFZ Stellplätze - Eigenmittel: € 40.846,28
+ WBF-Darlehen: € 202.401,74

Gesamteigenmittel € 206.060,98

Monatliche Kosten:
WBF Darlehen 31J.Laufz. € 202.401,74 - € 277,90
BK, Instandhaltung, Verwaltung € 273,05
--------------------------------
monatlicher Gesamtaufwand: € 550,95

Dieses Reihenhaus vereint Wohnkomfort, Funktionalität und Charme – ideal für Familien, die ein Zuhause mit Herz suchen.

Infrastruktur / Entfernungen

Gesundheit
Arzt <1.500m
Apotheke <3.500m
Klinik <3.500m
Krankenhaus <4.000m

Kinder & Schulen
Schule <1.500m
Kindergarten <1.500m
Universität <3.500m
Höhere Schule <3.500m

Nahversorgung
Supermarkt <2.000m
Bäckerei <2.500m
Einkaufszentrum <4.000m

Sonstige
Geldautomat <2.500m
Bank <2.500m
Post <2.000m
Polizei <3.500m

Verkehr
Bus <500m
Autobahnanschluss <3.500m
Bahnhof <3.500m
Flughafen <4.000m

Angaben Entfernung Luftlinie / Quelle: OpenStreetMap
Beschreibung weiterlesen

Lage und Verkehrsanbindung

Imbach in der Marktgemeinde Senftenberg
Eine touristisch erschlossene Gemeinde mit viel Sportmöglichkeiten, Heurigen und dem NUHR Gesundheitszentrum
Kindergarten und Volksschule
Busverbindung nach Krems ca.15min

Energieeffizienz

HWB:
24,5 kWh/(m²*a)
fGEE:
0,48
Energieausweisart:
Energiebedarfs-ausweis

Dokumente

Lageplan

3500 Krems an der Donau | Krems an der Donau (Stadt)

Lade...
Doris Schneider-Hiesberger

Doris Schneider-Hiesberger
Regionalmanagerin NÖ N/O konz. Immobilienmaklerin

IMMOcontract Immobilien Vermittlung GmbH

Lade...

Fotomix

©DSH_0842 Kopie ©DSH_0850 Kopie ©DSH 0799 Kopie ©DSH 0843 Kopie ©DSH_0781 Kopie ©DSH_0831 Kopie ©DSH_0836 Kopie ©DSH_0875 Kopie ©DSH 0829 Kopie ©DSH 0863 Kopie ©DSH-0869 Kopie Plan RH1 OG Plan RH1 EG