NEU - Geschäftslokale und Halle | vermietet | TOP Lage

Lager zum Kauf in 1070 Wien - Kaufpreis: 1.335.000 € / Objektnummer: 491
Ausstattung:

Preisinformationen

Kaufpreis:
1.335.000 €
Kaufpreis/m²
1.236,11 €
Betriebskosten netto:
1.936,23 € / Monat
Vermittlungsprovision:
Ja
Provision:
3% des Kaufpreises zzgl. 20% USt.

Fakten

Objektnummer:
491
Objekttyp:
Lager
Wohnfläche:
1.080 m²
Nutzfläche:
1.080 m²
Baujahr:
1930
Neubau:
Ja
Verfügbarkeit:
Verfügbar

Beschreibung

IMPULS Immobilien bietet nachfolgende, vermietete Geschäftslokale und Hallen ab sofort zum KAUF an:

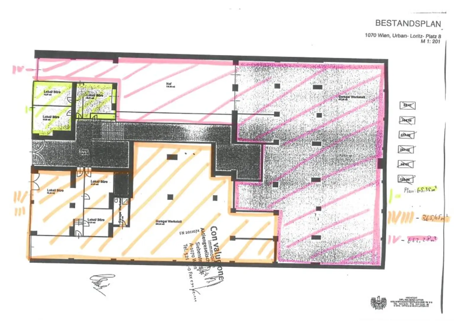
~1.080 m² Fläche, davon ~150 m² Hoffläche | Geschäftslokale | Halle/Werkstatt

 

ÜBER DIE IMMOBILIE

FACTBOX

* ca. ~115 m² Geschäftslokal in guter Lage
* ca. ~750 m² Garage/Werkstatt
* diverse Nebenräume
* Ein- und Ausfahrt

Das Geschäftslokal liegt an einer sehr gut erreichbaren & gut frequentierten Ecke am Urban-Loritz-Platz in einem gepflegten Wohnhaus.

_Die Flächen sind unbefristet vermietet; lediglich ein gut geschnittenes Verkaufslokal mit rd. 65 m² ist bis 9/2026 vermietet._

 

DETAILS ZUR AKTUELLEN VERMIETUNG

- Mietbeginn des Geschäftsloka l1 08/2026 bis 30.09.2026; ca. 65 m²; Nettohauptmietzins EUR 790,-

- Mietbeginn des Geschäftslokal 2+3 12/2018 auf unbestimmte Zeit; ca. 365 m²; Nettohauptmietzins EUR 3.540,-

- Mietbeginn des Geschäftslokal 4 10/2002 auf unbestimmte Zeit; ca. 650 m²; Nettohauptmietzins EUR 1.710,-

- Gesamt 5,4% Nettorendite (Nettohauptmietzins p.a./Kaufpreis)

- Betriebskosten netto gesamt p.m. EUR 1.936,23

- Reparaturrücklage/Annuitäten gesamt p.m. EUR 1.124,22

 

 

ZUM HAUS & ZUR INFRASTRUKTUR

Das Geschäftslokal befindet sich auf dem gut frequentierten Urban-Loritz-Platz.

Öffentlich sind Sie hier sehr gut angebunden. U6 Urban-Loritz-Platz, Straßenbahnlinien 6, 9, 18 und 49 sind in unmittelbarer Umgebung.

 

 

INTERESSIERT?

GERNE STEHEN WIR JEDERZEIT FÜR EINEN PERSÖNLICHEN TERMIN ODER RÜCKFRAGEN ALLER ART
UNTER OFFICE@IMPULS-IMMOBILIEN.AT BZW. TELEFONISCH UNTER 0650/8566764 ZUR VERFÜGUNG!

Wir weisen darauf hin, dass zwischen dem Vermittler und dem zu vermittelnden Dritten ein familiäres oder wirtschaftliches Naheverhältnis besteht.

Infrastruktur / Entfernungen

Gesundheit
Arzt <200m
Apotheke <200m
Klinik <325m
Krankenhaus <1.125m

Kinder & Schulen
Schule <125m
Kindergarten <325m
Universität <350m
Höhere Schule <450m

Nahversorgung
Supermarkt <75m
Bäckerei <125m
Einkaufszentrum <375m

Sonstige
Geldautomat <175m
Bank <175m
Post <450m
Polizei <25m

Verkehr
Bus <75m
U-Bahn <125m
Straßenbahn <100m
Bahnhof <175m
Autobahnanschluss <4.600m

Angaben Entfernung Luftlinie / Quelle: OpenStreetMap
Beschreibung weiterlesen

Lage und Verkehrsanbindung

Urban-Loritz-Platz 8 | Westbahnstraße | 1070 Wien | Neubau

Burggasse-Stadthalle

Energieeffizienz

HWB:
343,2 kWh/(m²*a)
HWB Klasse:
G
fGEE:
2,16
fGEE Klasse:
D
Energieausweisart:
Energiebedarfs-ausweis
Gültig bis:
30.01.2029

Grundriss

Lageplan

1070 Wien | Wien 7., Neubau

Lade...
Markus Verner

Markus Verner
Geschäftsführung

IMPULS Immobilien

Lade...

Fotomix

Bild 1 Bild 2 Bild 3 Bild 4 Bild 5 Bild 6 Bild 7