NEU - Geschmackvoll sanierter Bungalow an der Liesing in Rodaun

Haus zum Kauf in 1230 Wien - Kaufpreis: 740.000 € / Objektnummer: 7434
Ausstattung: Boden Wohnküche / offene Küche Bad Kabel/Satelliten-TV Garage Parkplatz Etagenheizung Terrasse Garten

Preisinformationen

Kaufpreis:
740.000 €
Vermittlungsprovision:
Ja
Provision:
3% des Kaufpreises zzgl. 20% USt.

Fakten

Objektnummer:
7434
Objekttyp:
Haus
Terrasse:
1
Keller Fläche:
32 m²
Wohnfläche:
84 m²
Grundstücksfläche:
374 m²
Gesamtfläche:
411 m²
Gartenfläche:
251 m²
Zimmer:
3
Badezimmer:
1
Toilette:
1
Baujahr:
1966
Neubau:
Ja
Letzte Sanierung:
2019
Zustand:
Modernisiert
Verfügbarkeit:
Verfügbar
Verfügbar ab:
ab sofort

Beschreibung

Geschmackvoll sanierter Bungalow nebst Liesingbach

 

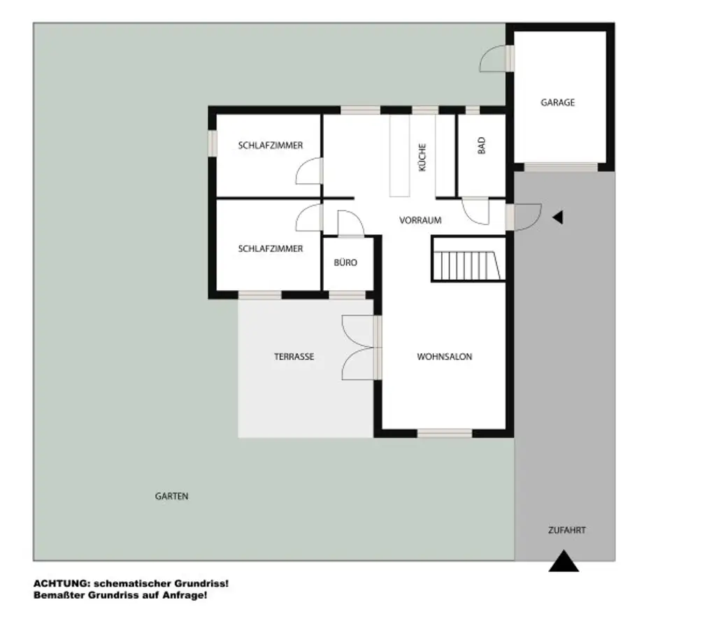
Dieser gepflegte Bungalow überzeugt durch seine durchdachte Raumaufteilung und seinen sehr guten Erhaltungszustand. Mit einer Wohnfläche von rund 84 m² bietet die Liegenschaft ein komfortables Zuhause für Paare, kleine Familien oder anspruchsvolle Einzelpersonen.

Das Haus wurde im Jahr 2019 umfassend und mit viel Sorgfalt saniert, wodurch es sich heute in einem äußerst ansprechenden Zustand präsentiert. Herzstück der Immobilie ist das großzügige Wohnzimmer, das viel Platz für gemütliches Beisammensein bietet und einen direkten Zugang zur Terrasse bietet. Ergänzt wird der Wohnbereich durch eine Küche mit integriertem Essplatz. Zwei gut geschnittene Schlafzimmer sowie ein zusätzliches Büro mit ca. 4,5 m² ermöglichen flexible Nutzungsmöglichkeiten.

Das Badezimmer ist modern ausgestattet und verfügt über eine Badewanne und zwei Waschbecken. Beheizt wird die Liegenschaft mittels Gasheizung.

Der Bungalow ist teilunterkellert und bietet dadurch zusätzlichen Stauraum und praktische Nutzungsmöglichkeiten. Im Kellergeschoss befinden sich ein Wirtschaftsraum sowie ein weiterer Raum, der sich ideal als Lagerfläche eignet, aber auch problemlos als Fitness- oder Hobbyraum genutzt werden kann.

Zur Immobilie gehört zudem eine Garage mit automatischem Einfahrtstor. Hervorzuheben ist die an die Garage angebaute Outdoor-Küche, die sich ideal für gesellige Stunden im Freien anbietet.

Der südwestlich ausgerichtete Garten lädt dazu ein, die Mittags- und Nachmittagssonne in vollen Zügen zu genießen. Die unmittelbare Nähe zum Liesingbach sorgt für eine ruhige, naturnahe Atmosphäre und bietet zugleich eine hohe Lebensqualität mit vielfältigen Möglichkeiten für Spaziergänge und Erholung.

Insgesamt handelt es sich um eine solide und geschmackvoll modernisierte Immobilie in attraktiver Lage – ideal für all jene, die Wert auf Ruhe, Qualität und eine gute Infrastruktur legen.

Für das Gebiet Rodaun und Liesing im 23. Bezirk wurde eine zeitlich begrenzte Bausperre gemäß § 8 Abs. 2 der Bauordnung für Wien (BO) verhängt. Die Bausperre dient der Erarbeitung eines neuen Flächenwidmungs- und Bebauungsplanes.

Die monatlichen Kosten samt Müllabfuhr, Strom/Gas, Grundsteuer, Gehsteig-Reinigung, Wasser, Wartung, Rauchfangkehrer und Versicherung belaufen sich aktuell auf ca. EUR 500,- brutto.

Der Vermittler ist als Doppelmakler tätig.

Infrastruktur / Entfernungen

Gesundheit
Arzt <500m
Apotheke <500m
Klinik <500m
Krankenhaus <2.000m

Kinder & Schulen
Schule <500m
Kindergarten <500m
Universität <5.500m
Höhere Schule <6.500m

Nahversorgung
Supermarkt <500m
Bäckerei <1.000m
Einkaufszentrum <1.000m

Sonstige
Geldautomat <1.000m
Bank <1.000m
Post <1.000m
Polizei <1.000m

Verkehr
Bus <500m
U-Bahn <3.000m
Straßenbahn <500m
Bahnhof <1.500m
Autobahnanschluss <3.000m

Angaben Entfernung Luftlinie / Quelle: OpenStreetMap
Beschreibung weiterlesen

Lage und Verkehrsanbindung

Der 23. Wiener Gemeindebezirk, bekannt als Liesing, befindet sich im Südwesten der Stadt und grenzt im Süden direkt an Niederösterreich. In diesem Bezirk leben etwa 115.000 Menschen, wobei sich die Bevölkerungszahl seit 1960 nahezu verdreifacht hat. Insgesamt umfasst Liesing eine Fläche von rund 320 km², von denen mehr als 100 km² aus Grün- und Erholungsflächen bestehen. Diese großzügigen Grünräume, darunter der Mauerer Wald sowie die Nähe zum Lainzer Tiergarten, machen den Bezirk besonders attraktiv als Wohnort.

Neben den gefragten Wohngebieten ist Liesing auch ein bedeutender Wirtschaftsstandort. Vor allem das Industriegebiet Inzersdorf, das sich bis nach Siebenhirten erstreckt, spielt dabei eine wichtige Rolle. Zahlreiche Unternehmen haben sich hier angesiedelt, darunter der LKW-Hersteller Rheinmetall MAN, die Österreichische Staatsdruckerei sowie verschiedene Logistikbetriebe. Die günstige Lage nahe der Autobahn A21 und die gute Anbindung an das Stadtzentrum tragen zusätzlich zur Attraktivität bei.

Dank der gut ausgebauten öffentlichen Verkehrsanbindung ist die Wiener Innenstadt schnell erreichbar. Gleichzeitig bietet Liesing mit seinen vielen Grünflächen ideale Möglichkeiten zur Erholung, was den Bezirk heute zu einem der gefragtesten Wohngebiete Wiens macht.

Das Shopping-Center Riverside ist in wenigen Gehminuten erreichbar.

Energieeffizienz

HWB:
132,6 kWh/(m²*a)
HWB Klasse:
D
fGEE:
1,52
fGEE Klasse:
C
Energieausweisart:
Energiebedarfs-ausweis
Gültig bis:
26.07.2035

Grundriss

Lageplan

1230 Wien | Wien 23., Liesing

Lade...
Sabrina Ritter

Sabrina Ritter
Wohnimmobilien Miete

Spiegelfeld Immobilien GmbH

Lade...

Fotomix

Bild 1 Bild 2 Bild 3 Bild 4 Bild 5 Bild 6 Bild 7 Bild 8 Bild 9 Bild 10 Bild 11 Bild 12 Bild 13 Bild 14 Bild 15 Bild 16 Bild 17 Bild 18 Bild 19 Bild 20 Bild 21 Bild 22 Bild 23 Bild 24