NEU - Grüne Werte. Goldene Rendite.

Wohnung zum Kauf in 1190 Wien - Kaufpreis: 602.000 € / Objektnummer: 86329
Ausstattung: Boden Fahrstuhl Bad Klimaanlage Balkon Terrasse Garten
Hausansicht
Hausansicht 2
Hausansicht 3
Hausansicht 4
Visualisierung Wohnraum
Visualisierung Wohnraum
Visualisierung Schlafzimmer
Visualisierung Wohnraum 2
Visualisierung Badezimmer
Visualisierung Terrasse
Visualisierung Fitnessraum
Visualisierung

Preisinformationen

Kaufpreis:
602.000 €
Vermittlungsprovision:
Ja
Provision:
Provision bezahlt der Abgeber

Fakten

Objektnummer:
86329
Objekttyp:
Wohnung
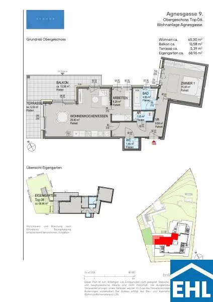
Balkon:
1
Terrasse:
1
Balkonfläche:
13,58 m²
Keller Fläche:
6,86 m²
Wohnfläche:
65,3 m²
Gartenfläche:
68,96 m²
Zimmer:
2,5
Badezimmer:
1
Toilette:
1
Stockwerk:
1
Neubau:
Ja
Zustand:
Erstbezug
Verfügbarkeit:
Verfügbar

Beschreibung

CLOUD 9 – Exklusives Investment in einer der begehrtesten Wohnlagen Wiens

Agnesgasse 9 – Investieren über den Dächern der Stadt

Im grünen Herzen von Sievering, dem noblen 19. Wiener Gemeindebezirk, entsteht mit CLOUD 9 ein einzigartiges Wohnbauprojekt für anspruchsvolle Anleger:innen. In erhöhter Ruhelage, umgeben von Weingärten, Villen und dem Wienerwald, treffen Nachhaltigkeit, Luxus und Werthaltigkeit aufeinander. Die exzellente Mikrolage und die Nähe zur Wiener Innenstadt (15 Fahrminuten) machen dieses Projekt zu einer attraktiven Kapitalanlage.

 

Investment-Highlights auf einen Blick

* 11 exklusive Eigentumswohnungen mit 2,5 bis 5 Zimmern
* Wohnflächen von ca. 65 m² bis 169 m²
* Jede Einheit mit großzügigen Freiflächen: Gärten, Balkone oder Terrassen
* 11 Tiefgaragenplätze, optional mit E-Ladestation
* Photovoltaikanlage, Luftwärmepumpe, Deckenkühlung
* Regenwasserzisterne zur Gartenbewässerung

 

Attraktives Anlageobjekt mit nachhaltiger Perspektive

CLOUD 9 kombiniert hochwertige Bauweise mit energieeffizienten Technologien – von der Photovoltaik bis zur Bauteilaktivierung zur Kühlung. Dadurch profitieren Anleger:innen nicht nur von niedrigen Betriebskosten, sondern auch von einer gesteigerten Nachfrage bei zukünftiger Vermietung oder Verwertung.

 

Premium-Ausstattung für höchste Ansprüche

* Fußbodenheizung mit Luftwärmepumpe
* 3-fach verglaste Holz-Alu-Fenster, Außenraffstores
* Edle Landhausdielen (Eiche), Feinsteinzeug in Nassräumen
* Hochwertige Sanitärmarken
* Einbruchshemmende Türen, Videosprechanlage
* Stilvolles, barrierefreies Entree
* Gemeinschaftsbereiche inkl. Yoga- & Fitnessraum, Wellnesszone mit Infrarotkabine und Kneippbecken

 

Standort mit nachhaltiger Wertentwicklung

Sievering zählt zu den stabilsten und exklusivsten Wohngegenden Wiens. Die Kombination aus hoher Lebensqualität, Nahversorgung, Natur und Stadtnähe bietet ideale Voraussetzungen für langfristige Mietrenditen oder wertgesicherte Eigennutzung.

* Nähe zu American International School, Dominikanerinnen-Schule
* Vielfältiges Angebot an Heurigen, Gastronomie & Nahversorgern
* Hoher Freizeitwert: Cobenzl, Himmel, Stadtwanderweg 2
* Gute medizinische Versorgung (Rudolfinerhaus, Göttlicher Heiland)

Optimale Anbindung – hohe Lebensqualität

* Buslinie 39A (Haltestelle Agnesgasse) direkt vor der Tür
* Direkte Verbindung zu U4, S-Bahn, Regionalzügen (Bahnhof Heiligenstadt)
* Wiener Innenstadt in 15–20 Min. mit dem Auto, 30 Min. öffentlich
* Flughafen Wien-Schwechat in ca. 30–35 Min. erreichbar

Ihr Investmentvorteil in einer raren Toplage

Mit CLOUD 9 investieren Sie in ein hochwertiges Immobilienprojekt in einer selten verfügbaren Wohnlage Wiens. Die Kombination aus stilvoller Architektur, nachhaltiger Technik und exzellenter Mikrolage schafft die Grundlage für langfristige Wertstabilität

 

Besuchen Sie unsere Projektseite [https://www.ehl.at/wohnen/wohnprojekte/cloud-9-agnesgasse-9-1190-wien] für weiterführende Informationen, Grundrisse und Preisspiegel.

 

Kaufpreise der Vorsorgewohnungen

von EUR 600.100,- bis EUR 1.945.000,- netto zzgl. 20% USt.

Zu erwartender Mietertrag

von ca. EUR 17,50 bis EUR 20,00 netto/m²

Provisionsfrei für den Käufer!
Fertigstellung voraussichtlich Q4/2027

 

Bei diesem Angebot handelt es sich um eine Vorsorgewohnung, die zu Vermietungszwecken erworben wird. Der angegebene Kaufpreis versteht sich daher zzgl. 20% USt. Diese Daten sind vorbehaltlich möglicher Änderungen.

 

Wir weisen darauf hin, dass zwischen dem Vermittler und dem zu vermittelnden Dritten ein familiäres oder wirtschaftliches Naheverhältnis besteht.

Der Vermittler ist als Doppelmakler tätig.

Infrastruktur / Entfernungen

Gesundheit
Arzt <1.000m
Apotheke <1.000m
Klinik <2.500m
Krankenhaus <2.750m

Kinder & Schulen
Schule <1.000m
Kindergarten <750m
Universität <2.250m
Höhere Schule <2.250m

Nahversorgung
Supermarkt <750m
Bäckerei <1.250m
Einkaufszentrum <4.000m

Sonstige
Geldautomat <1.250m
Bank <1.250m
Post <1.000m
Polizei <1.750m

Verkehr
Bus <250m
Straßenbahn <1.500m
U-Bahn <3.500m
Bahnhof <2.500m
Autobahnanschluss <4.000m

Angaben Entfernung Luftlinie / Quelle: OpenStreetMap
Beschreibung weiterlesen

Lage und Verkehrsanbindung

Stadtwanderweg 2

Energieeffizienz

HWB:
27,9 kWh/(m²*a)
HWB Klasse:
B
fGEE:
0,61
fGEE Klasse:
A+
Energieausweisart:
Energiebedarfs-ausweis
Gültig bis:
09.10.2033

Dokumente

Grundriss

Lageplan

1190 Wien | Wien 19., Döbling

Lade...
Andrea PÖCHHACKER; MSc

Andrea PÖCHHACKER; MSc
Leitung Wohninvestment

EHL Wohnen GmbH

Lade...

Fotomix

Hausansicht Hausansicht 2 Hausansicht 3 Hausansicht 4 Visualisierung Wohnraum Visualisierung Wohnraum Visualisierung Schlafzimmer Visualisierung Wohnraum 2 Visualisierung Badezimmer Visualisierung Terrasse Visualisierung Fitnessraum Visualisierung