NEU - Mitten im Grünen & im Villenviertel: Erstbezug nach Kernsanierung, ca. 785 m² Außenfläche, beheizter Wintergarten, Sauna im Souterrain u.v.m.!

Wohnung zum Kauf in 3002 Purkersdorf - Kaufpreis: 999.000 € / Objektnummer: 16264
Ausstattung: Barrierefrei Rollstuhlgerecht Boden Fahrstuhl Wohnküche / offene Küche Bad Gäste-WC Sauna Klimaanlage Carport Parkplatz Fahrradraum Abstellraum Fußbodenheizung Terrasse Garten WG geeignet
W4.jpg
dji_fly_20250731_105758_0073_1753952767106_photo 2.JPG
dji_fly_20250731_110150_0080_1753952762332_photo 3.jpg
dji_fly_20250731_110004_0077_1753952763659_photo 2.JPG
Gartenfläche Top 01.pdf
KG-4.png

Preisinformationen

Kaufpreis:
999.000 €
Kaufpreis/m²
3.109,53 €
Vermittlungsprovision:
Ja
Provision:
3,00 % des Kaufpreises zzgl. 20 % USt.

Fakten

Objektnummer:
16264
Objekttyp:
Wohnung
Terrasse:
1
Wohnfläche:
216,28 m²
Nutzfläche:
321,27 m²
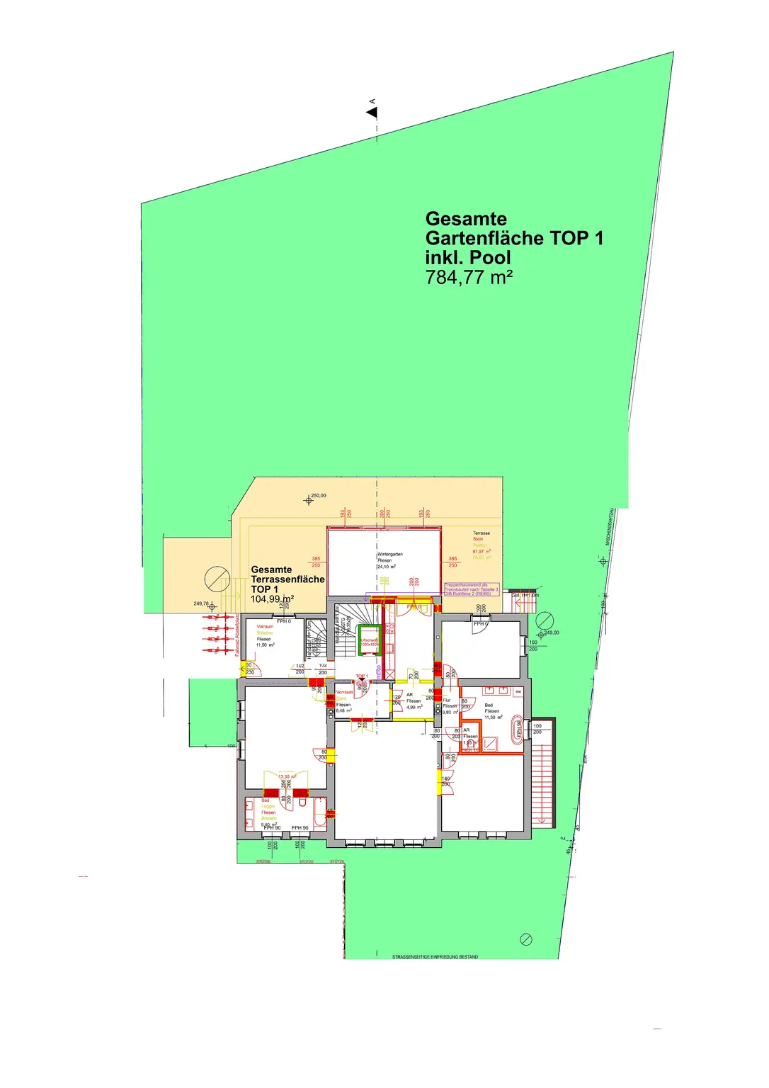
Gartenfläche:
784,77 m²
Zimmer:
5
Badezimmer:
2
Toilette:
3
Verfügbarkeit:
Verfügbar

Beschreibung

Top 01
• ca. 216 m² Wohnfläche 
• ca. 785 m² Außenfläche und Terrasse (ca. 105 m2) und beheiztem Wintergarten (ca. 24 m²)
• inkl. ca. 40 m² Souterrain – ideal nutzbar als Büro, Ordination, Fitnessbereich, Sauna u.v.m.

Besonders hervorzuheben: Der Verkauf der Einheiten erfolgt direkt über eines Architekten. Das ermöglicht Ihnen als Käufer, gemeinsam mit dem Architekten, individuelle Anpassungen in der Raum/Grundrissgestaltung vorzunehmen und Ihre persönlichen Wohnideen zu verwirklichen.

Ausstattungs-Highlights

  • Lift vom Kellergeschoss bis ins Dachgeschoss

  • Luft-Wasser-Wärmepumpe für Heizung und Warmwasser

  • Fußbodenheizung in allen Wohnräumen

  • Hochwertiger Eichen-Fischgrätparkett

  • Holztüren im klassischen Wiener Altbaustil

  • Stuckelemente und Stuckabschlussleisten

  • Raumhöhen von ca. 3 Metern

  • 3-fach-Isolierverglasung

  • Natursteinbeläge auf den Terrassen, Fliesen in den Loggien

  • Exklusive Sanitärprodukte von LAUFEN, DURAVIT und Hansgrohe

  • Elektrische Sprossenheizkörper in den Bädern

  • Hochwertige Elektroinstallationen, Multimediaverkabelung und Video-Gegensprechanlage

  • Eigene Kellerabteile, Kinderwagenraum, Fahrradabstellplätze sowie ein Weinkeller

Direkt vor dem Haus befinden sich drei Carport-Stellplätze auf dem parkähnlichen Grundstück – diese können jeweils um 15.000 € erworben werden.

Dieses Projekt vereint stilvollen Altbau-Charme mit modernem Wohnkomfort – und das in einer der begehrtesten Lagen des Wienerwalds. Nutzen Sie Ihre Chance auf Wohnen mit Charakter.

Wichtiger Hinweis:
Im großzügig angelegten Garten besteht auf Wunsch die Möglichkeit, einen Pool zu realisieren. Eine Umsetzung ist mit zusätzlichen Kosten verbunden. Die Details hierzu können im Rahmen eines gemeinsamen Termins mit dem Eigentümer vor Ort abgestimmt werden.

Infina, Österreichs beliebtester Wohnbau-Finanz-Experte, begleitet Sie ganzheitlich rund um Ihr Immobilienvorhaben.

Unser Team von Immobilienexperten unterstützt Sie beim geplanten Kauf als auch bei einem möglichen Verkauf Ihrer bestehenden Immobilie. Zudem bieten unsere Finanzierungsexperten auf Wunsch maßgeschneiderte Finanzierungslösungen durch den Vergleich der besten Kredite von über 120 Banken in Österreich und Deutschland.

Wir möchten Sie unabhängig, transparent und flexibel als starker Partner in allen Immobilienangelegenheiten unterstützen.

Kontaktieren Sie uns für einen persönlichen Besichtigungstermin oder eine unverbindliche und kostenfreie Finanzierungsberatung.

Was kann Infina noch für Sie tun?

Wenn Sie eine Finanzierung für Ihre Traumimmobilie wünschen, begleiten wir Sie gerne von der strategischen Planung bis zur Realisierung und darüber hinaus. Wir sind Österreichs beliebtester Wohnbau-Finanz-Experte und unsere Mission lautet: Jeder Kunde hat das Recht auf den besten Kredit.

  • Infina kooperiert mit über 120 Banken in Österreich und Deutschland
  • Über 600 Kreditprodukte im Vergleich
  • Über 100-mal vor Ort in ganz Österreich

Ebenso unterstützen wir unsere Kunden beim Verkauf und der Vermietung Ihrer Immobilien sowie bei der Immobiliensuche durch unsere Immobilienexperten.


Wir weisen Sie darauf hin, dass die gemachten Angaben und Informationen lediglich unverbindliche Vorabinformationen sind und daher ohne Gewähr erfolgen. Der Vermittler ist als Doppelmakler tätig.

Beschreibung weiterlesen

Lage und Verkehrsanbindung

Das parkähnliche Grundstück liegt im Purkersdorfer Villenviertel, in einer Seitenstraße, die absolute Privatsphäre bietet. Umgeben vom grünen Umfeld des Wienerwalds garantiert die Lage naturnahe Lebensqualität. Eine vielfältige Gastronomieszene sowie zahlreiche Bildungs- und Freizeiteinrichtungen machen Purkersdorf zu einer der begehrtesten Gemeinden im Wienerwald. Dank der ausgezeichneten öffentlichen Anbindung erreichen Sie Wien in wenigen Minuten – perfekt für alle Naturliebhaber, die eine schnelle Anbindung in die Stadt nicht missen möchten.

Verkehrsanbindung:
-Bahnstation: Nur 150 m entfernt, in 7 Minuten zum Bahnhof Hütteldorf (U4-Anschluss), weitere 5 Minuten zum Westbahnhof (U3-Anbindung),
-Bushaltestelle: In Gehdistanz mit direktem Anschluss nach Hütteldorf,

Nahversorgung:
-Lidl ca. 2min,
-Bipa ca. 2min,
-Eurospar ca. 3min,
-Hofer ca. 4min,
-Billa ca. 5min,

Freizeit:
-Wienerwaldbad der Stadtgemeinde Purkersdorf ca. 1,5 min (zu Fuß),
-Natur Park Purkersdorf Sandstein Wienerwald ca. 4 min (zu Fuß),
-Schloss Purkersdorf Hauptplatz ca. 8min (zu Fuß),
-Feihlerhöhe ca. 3min,
-Tennisclub Purkersdorf ca. 4min,
-Wienerwaldsee ca. 7min,

Grundrisse

Lageplan

3002 Purkersdorf | Sankt Pölten (Land)

Lade...
Sebastian Scheuermann

Sebastian Scheuermann
Immobilienexperte

Infina Credit Broker GmbH

Lade...

Fotomix

W4.jpg dji_fly_20250731_105758_0073_1753952767106_photo 2.JPG dji_fly_20250731_110150_0080_1753952762332_photo 3.jpg dji_fly_20250731_110004_0077_1753952763659_photo 2.JPG