Modern wohnen am Stadtpark Atzgersdorf

Wohnung zum Kauf in 1230 Wien - Kaufpreis: 312.500 € / Objektnummer: 90453
Ausstattung: Boden Fahrstuhl Bad Tiefgarage Parkplatz Abstellraum Fußbodenheizung Balkon

Preisinformationen

Kaufpreis:
312.500 €
Betriebskosten netto:
110,60 € / Monat
Provision:
Provision bezahlt der Abgeber.

Fakten

Objektnummer:
90453
Objekttyp:
Wohnung
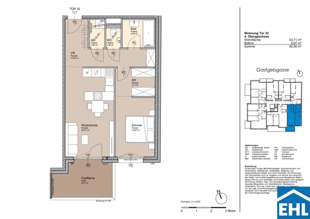
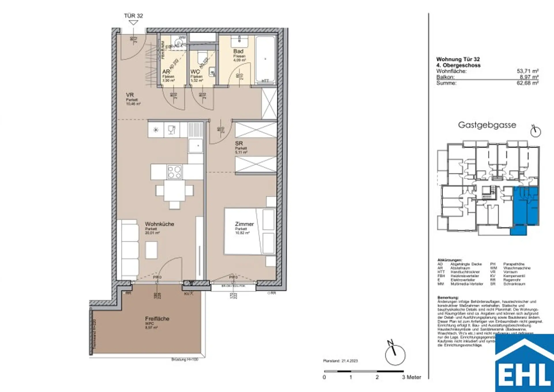
Balkon:
1
Balkonfläche:
8,97 m²
Wohnfläche:
53,71 m²
Nutzfläche:
62,68 m²
Zimmer:
2
Badezimmer:
1
Toilette:
1
Stockwerk:
4
Baujahr:
2024
Neubau:
Ja
Zustand:
Erstbezug
Verfügbarkeit:
Verfügbar
Verfügbar ab:
sofort

Beschreibung

EIN INVESTMENT MIT STIL UND VERANTWORTUNG

Zeitlos. Nachhaltig. Wertbeständig.
Das Wohnprojekt beim Stadtpark Atzgersdorf und der Liesing vereint architektonische Eleganz mit zukunftsorientierter Bauweise – und bietet Anleger:innen die Möglichkeit, in eine Immobilie mit hervorragendem Entwicklungspotenzial zu investieren.

Auf fünf Etagen und zwei Dachgeschossen entstehen 38 hochwertige Eigentumswohnungen, die durch nachhaltige Bauweise, klare Architektur und intelligente Grundrisse überzeugen. Das Projekt kombiniert urbanen Lifestyle mit ökologischer Verantwortung – eine Kombination, die in der Nachfrage von Eigennutzer:innen wie auch Mieter:innen zunehmend im Vordergrund steht.

 

FAKTEN IM ÜBERBLICK

*
38 Eigentumswohnungen mit 2 bis 4 Zimmern

*
Wohnflächen von ca. 39 bis 109 m²

*
CO₂-neutrales Energiesystem

*
Top-Vermietungslage im Süden Wiens

*
Hohe Wertbeständigkeit durch nachhaltige Bauweise und steigende Nachfrage

 

NACHHALTIGE WERTANLAGE IN BESTER LAGE

Die Immobilie befindet sich im Herzen von Atzgersdorf, einem der dynamischsten Stadtentwicklungsgebiete Wiens.
Dank der Nähe zum Stadtpark Atzgersdorf, dem Kulturzentrum F23 sowie zu Schulen, Nahversorgern und öffentlichen Verkehrsmitteln bietet die Lage sowohl hohe Lebensqualität als auch stabile Vermietbarkeit.
Die geplante S-Bahn-Station Rosenhügel und bestehende Linien wie der Bus 62A sichern eine exzellente Anbindung an die Innenstadt – ein entscheidender Faktor für langfristige Wertentwicklung.

 

 

EFFIZIENT. MODERN. ZUKUNFTSSICHER.

Das architektonische Konzept überzeugt durch klare Linien, natürliche Materialien und CO₂-neutrale Energietechnik.
Ein innovatives Heiz- und Kühlsystem mit Erdwärme und Sonnenenergie sorgt für niedrige Betriebskosten und entspricht modernsten ökologischen Standards – ein echter Pluspunkt für nachhaltiges Investment.

Ausstattungs-Highlights:

*
Eichenparkett, Holz-Alu-Fenster mit elektrischen Außenjalousien

*
Fußbodenheizung & Kühlung über Bauteilaktivierung

*
Smart-Home-Vorbereitung für moderne Wohntechnologie

*
23 Tiefgaragenplätze, teils E-Mobility ready

*
Großzügige Freiflächen bei jeder Wohnung: Balkon, Terrasse oder Garten

*
Gemeinschaftsgarten mit Spielplatz & Atelierbereich

 

Zu erwartender Mietertrag

von EUR 14,25 bis EUR 15,50 netto/m²

Kaufpreise der Vorsorgewohnungen

von EUR 189.732,14,- bis EUR 696.428,57- netto zzgl. 20% USt.

Provisionsfrei für den Käufer
Fertigstellung: 2024

Bei diesem Angebot handelt es sich um eine Vorsorgewohnung, die zu Vermietungszwecken erworben wird. Der angegebene Kaufpreis versteht sich daher zzgl. 20% USt. Diese Daten sind vorbehaltlich möglicher Änderungen.

 

Wir weisen darauf hin, dass zwischen dem Vermittler und dem zu vermittelnden Dritten ein familiäres oder wirtschaftliches Naheverhältnis besteht.

Der Vermittler ist als Doppelmakler tätig.

Infrastruktur / Entfernungen

Gesundheit
Arzt <1.500m
Apotheke <1.000m
Klinik <1.000m
Krankenhaus <1.500m

Kinder & Schulen
Schule <500m
Kindergarten <500m
Universität <4.500m
Höhere Schule <4.000m

Nahversorgung
Supermarkt <500m
Bäckerei <500m
Einkaufszentrum <1.500m

Sonstige
Geldautomat <1.000m
Bank <1.000m
Post <1.500m
Polizei <1.500m

Verkehr
Bus <500m
U-Bahn <1.500m
Straßenbahn <2.000m
Bahnhof <1.000m
Autobahnanschluss <2.000m

Angaben Entfernung Luftlinie / Quelle: OpenStreetMap
Beschreibung weiterlesen

Lage und Verkehrsanbindung

Atzgersdorf, Stadtpark Atzgersdorf

Energieeffizienz

HWB:
26,5 kWh/(m²*a)
HWB Klasse:
B
fGEE:
0,74
fGEE Klasse:
A
Energieausweisart:
Energiebedarfs-ausweis
Gültig bis:
18.03.2031

Dokumente

Grundriss

Lageplan

1230 Wien | Wien 23., Liesing

Lade...
Andrea PÖCHHACKER; MSc

Andrea PÖCHHACKER; MSc
Leitung Wohninvestment

EHL Wohnen GmbH

Lade...

Fotomix

Bild 1 Bild 2 Bild 3 Bild 4 Bild 5 Bild 6 Bild 7 Bild 8 Bild 9