Modernes Dachgeschoss mit flexibler Raumaufteilung und Terrasse

Wohnung zum Kauf in 1110 Wien - Kaufpreis: 950.000 € / Objektnummer: 60958
Ausstattung: Barrierefrei Rollstuhlgerecht Boden Fahrstuhl Bad Gäste-WC Alarmanlage Fahrradraum Abstellraum Fußbodenheizung Terrasse

Preisinformationen

Kaufpreis:
950.000 €
Betriebskosten netto:
326,00 € / Monat
Vermittlungsprovision:
Ja
Provision:
3% des Kaufpreises zzgl. 20% USt.

Fakten

Objektnummer:
60958
Objekttyp:
Wohnung
Terrasse:
1
Keller Fläche:
6 m²
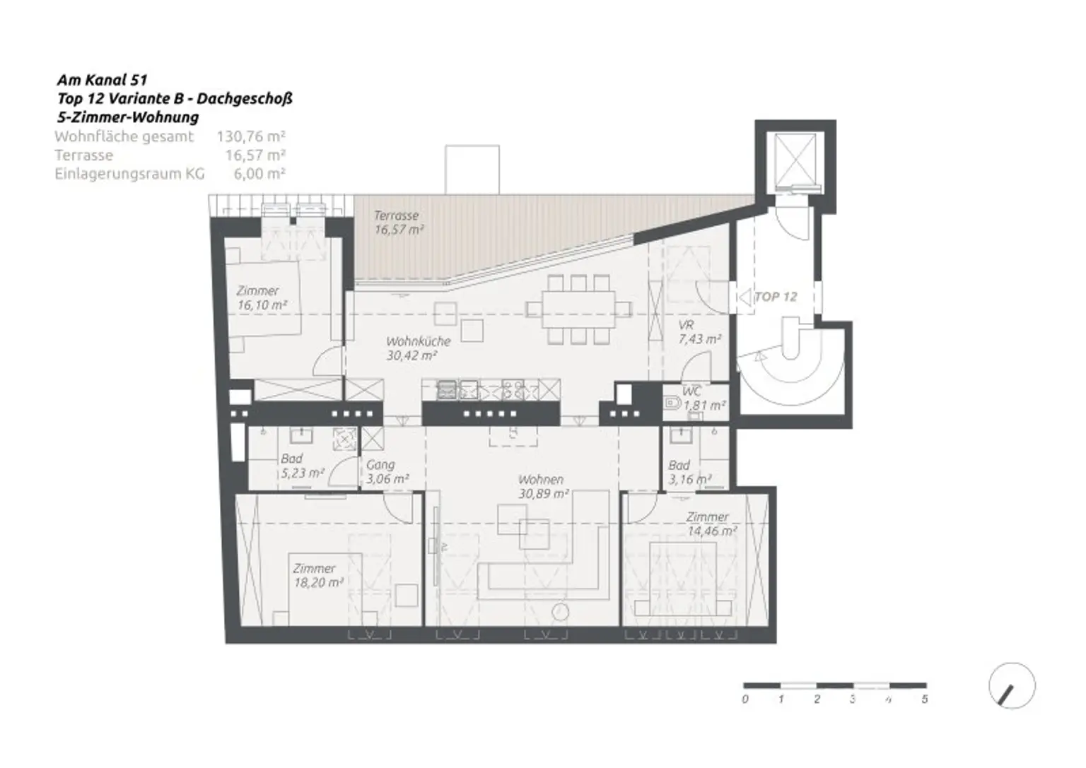
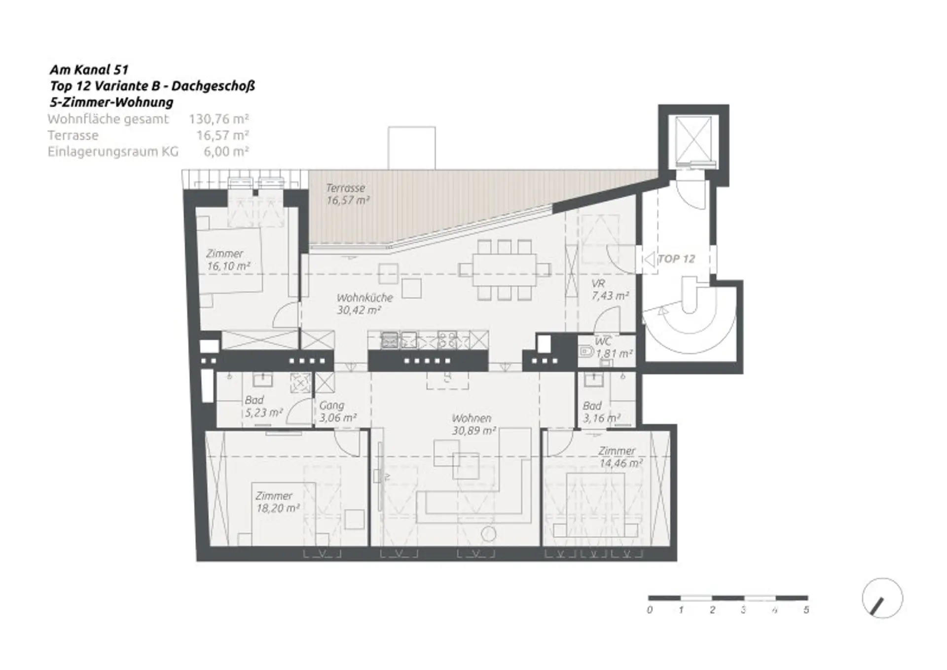
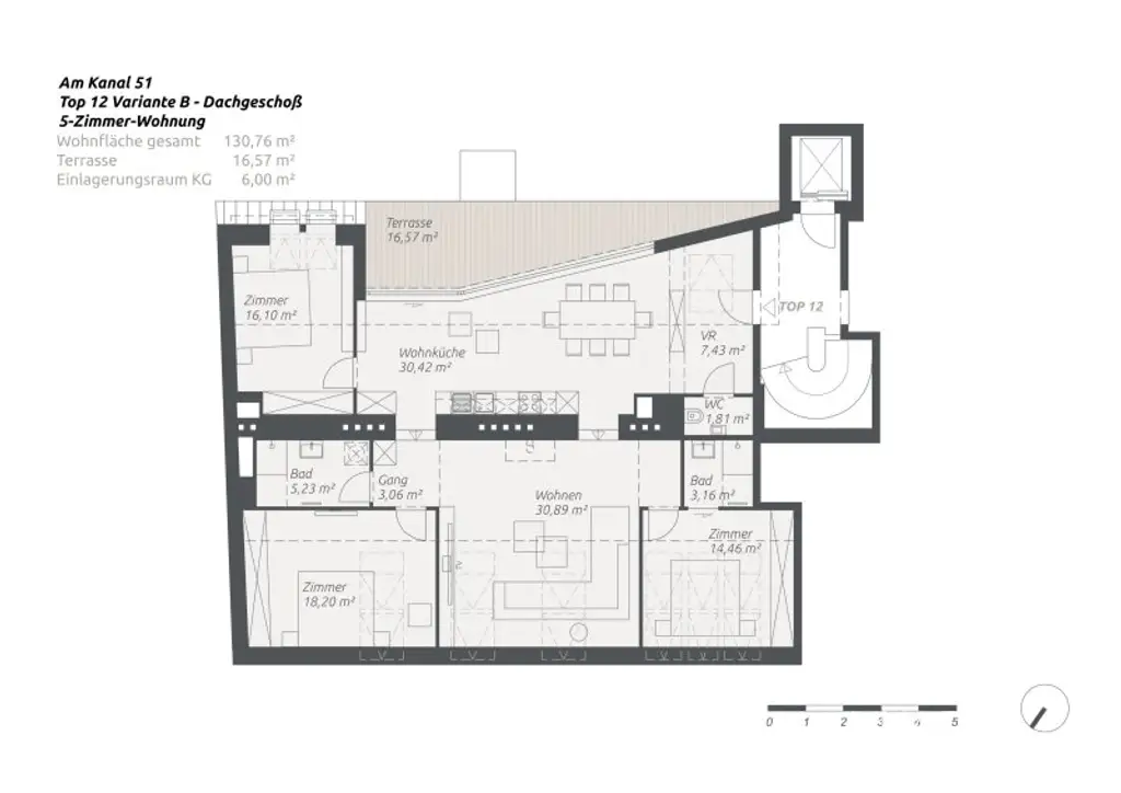
Wohnfläche:
130,76 m²
Grundstücksfläche:
890 m²
Gesamtfläche:
147,33 m²
Zimmer:
5
Badezimmer:
2
Toilette:
2
Stockwerk:
3
Baujahr:
2025
Neubau:
Ja
Zustand:
Erstbezug
Verfügbarkeit:
Verfügbar
Verfügbar ab:
2026

Beschreibung

Um 1900 vom renommierten Wiener Architekten Alois Koch für die Obsthändlerfamilie Hüber erbaut, trägt das klassische Biedermeierhaus im 11. Bezirk die Handschrift einer Zeit, in der auf echtes Handwerk, bleibende Qualität und zeitlose Bauweise Wert gelegt wurde.
Ruhig gelegen, zwischen einem gepflegten Garten und einem begrünten Innenhof, befindet sich das dreigeschossige Haus mit zwölf hochwertig ausgeführten Wohneinheiten und zwei Garagenplätzen. Erschlossen wird es über eine verkehrsfreie Allee. Der von Lederleitner gestaltete Gemeinschaftsgarten mit seinem alten Baumbestand – darunter Nuss- und Obstbäume – schafft eine romantische Atmosphäre mit Geschichte. Für alle, die gerne gärtnern, stehen eigene Hochbeete zur Verfügung. Mit Liebe zum Detail und Gespür für den Bestand bleiben ausgewählte Originalelemente erhalten – etwa das historische Stiegengeländer oder charakteristische Alt-Wiener Fliesen, die den ursprünglichen Charakter des Hauses bewahren. Gleichzeitig sorgen neu gestaltete Grundrisse, eleganter Fischgrätparkett und eine hochwertige Ausstattung für zeitgemäßen Wohnkomfort. Ob kompakte Balkonwohnung oder großzügige Familienwohnung mit Garten – im LORYHAUS entsteht Wohnraum, liebevoll durchdacht für unterschiedliche Bedürfnisse und Lebensphasen.

Wohnungsbeschreibung:

Diese großzügige Dachgeschosswohnung überzeugt durch ihre südöstliche Ausrichtung, die für viel natürliches Licht und angenehme Morgensonne sorgt. Mit bis zu über drei Meter hohen Decken und bodentiefen Fensterfronten entsteht ein außergewöhnlich offenes und lichtdurchflutetes Wohnambiente. Das sehr weitläufige Wohnzimmer unterstreicht den großzügigen Charakter der Immobilie.

Die Wohnung verfügt über drei Zimmer, wobei der Grundriss noch flexibel an Ihre individuellen Wünsche angepasst werden kann. Eine großzügige Terrasse erweitert den Wohnraum ins Freie und bietet zusätzlichen Lebenskomfort. Hochwertige Dielenböden, edle Fliesen, ein Lift direkt zur Wohnung sowie zwei komfortable Garagenplätze direkt am Haus runden das exklusive Gesamtbild ab.

Fertigstellung: 12/2026

Hinweis gemäß Energieausweisvorlagegesetz: Ein Energieausweis wurde vom Eigentümer bzw. Verkäufer, nach unserer Aufklärung über die generell geltende Vorlagepflicht, sowie Aufforderung zu seiner Erstellung noch nicht vorgelegt. Daher gilt zumindest eine dem Alter und der Art des Gebäudes entsprechende Gesamtenergieeffizienz als vereinbart. Wir übernehmen keinerlei Gewähr oder Haftung für die tatsächliche Energieeffizienz der angebotenen Immobilie.

Infrastruktur / Entfernungen

Gesundheit
Arzt <500m
Apotheke <500m
Klinik <1.000m
Krankenhaus <2.500m

Kinder & Schulen
Schule <500m
Kindergarten <500m
Universität <1.000m
Höhere Schule <1.500m

Nahversorgung
Supermarkt <500m
Bäckerei <500m
Einkaufszentrum <1.000m

Sonstige
Geldautomat <500m
Bank <500m
Post <500m
Polizei <500m

Verkehr
Bus <500m
U-Bahn <500m
Straßenbahn <500m
Bahnhof <500m
Autobahnanschluss <1.000m

Angaben Entfernung Luftlinie / Quelle: OpenStreetMap
Beschreibung weiterlesen

Lage und Verkehrsanbindung

An der Grenze zwischen dem 11. und 3. Bezirk, im Südosten Wiens, liegt das LORYHAUS – ein liebevoll revitalisiertes Biedermeierhaus mit Stadtgarten, ruhig gelegen und dennoch bestens angebunden.

Nur zwei Gehminuten entfernt befindet sich die S-Bahn-Station Geiselbergstraße (S7), mit direkter Verbindung zum Flughafen Wien-Schwechat in etwa 15 Minuten. Die U-Bahn-Station Zippererstraße (U3) erreichen Sie in nur drei Gehminuten, die Station Enkplatz (U3) ebenfalls schnell zu Fuß. Mit der U3 gelangen Sie in rund 10 Minuten direkt ins Herz der Stadt, zum Stephansplatz. Der Wiener Hauptbahnhof liegt etwa 3,5 Kilometer entfernt.
Für den Individualverkehr sind die Südosttangente (A23) und die Ostautobahn (A4) in wenigen Minuten erreichbar. Sie bieten eine rasche Anbindung an den Flughafen und an das überregionale Verkehrsnetz.
Das nahegelegene Einkaufszentrum huma eleven sowie der Prater mit dem historischen Lusthaus bieten zusätzliche Einkaufs-, Erholungs- und Freizeitmöglichkeiten.
Das LORYHAUS vereint die Eleganz der Biedermeierzeit mit den Vorteilen einer urbanen Lage – für alle, die ein stilvolles Zuhause mit Geschichte suchen

- S-Bahn Geiselbergstraße (S7): 2 Min. zu Fuß
- U-Bahn Zippererstraße (U3): 3 Min. zu Fuß
- Stephansplatz: 10 Min. mit U3
- Flughafen Wien: 20 Min. mit S7
- Hauptbahnhof: 3,5 km entfernt
- Autobahnen: A23 und A4 in wenigen Minuten erreichbar

Grundrisse

Lageplan

1110 Wien | Wien 11., Simmering

Lade...
Elijah Euler-Rolle

Elijah Euler-Rolle
Berater | Consultant

AKKADIA Immobilienvermittlung GmbH

Lade...

Fotomix

Bild 1 Bild 2 Bild 3 Bild 4 Bild 5 Bild 6 Bild 7 Bild 8 Bild 9 Bild 10 Bild 11 Bild 12 Bild 13 Bild 14