NEU - Neubau Chalet (Bungalow) - ideal zur touristischen Vermietung aber auch für Hauptwohnsitz!

Haus zum Kauf in 8966 Aich-Assach - Kaufpreis: 356.000 € / Objektnummer: 3097
Ausstattung: Parkplatz Außenparkplatz Zentralheizung Terrasse

Preisinformationen

Kaufpreis:
356.000 €
Preisinfos:
Fixpreis
Provision:
3.00 %

Fakten

Objektnummer:
3097
Objekttyp:
Haus
Terrasse:
1
Wohnfläche:
71,27 m²
Nutzfläche:
4,39 m²
Zimmer:
3
Schlafzimmer:
2
Badezimmer:
1
Toilette:
2
Baujahr:
2027
Neubau:
Ja
Zustand:
Erstbezug
Verfügbarkeit:
Verfügbar
Verfügbar ab:
Frühjahr/Sommer 2027

Beschreibung

Von RE/MAX Nature zum Kauf angeboten wird ein Neubauprojekt im Zentrum von Aich.
Der durch seine durchdachte Raumaufteilung für maximale Nutzbarkeit ausgerichtete Bungalow - aufgeteilt in 2 getrennte Wohneinheiten - wird in hochwertiger Holz-Massiv-Bauweise ausgeführt.
In Summe ein Chalet mit einem unvergleichbaren alpenländischem Charakter und ganz viel Charme.

Geplante Fertigstellung im Frühjahr/Sommer 2027

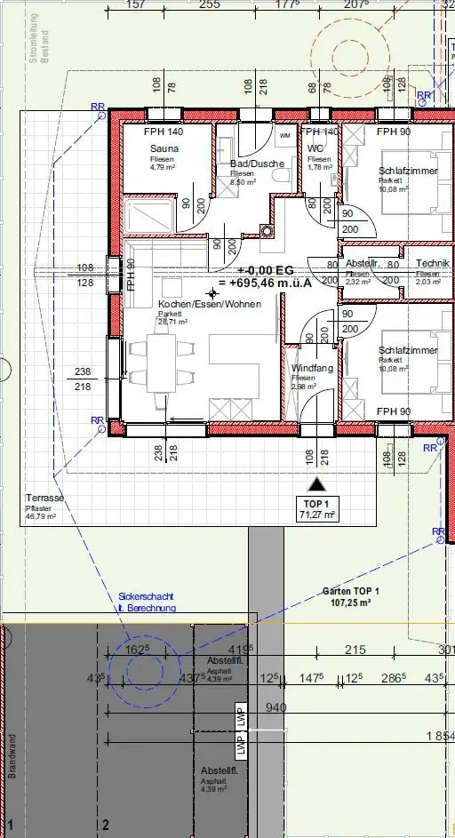
Hier angeboten der Bungalow West mit etwas über 71m² Wohnfläche und folgendem Raumkonzept:
Windfang/Vorraum
Diele/Gang
Abstellraum
Technikraum
WC
Bad mit Dusche und WC
Sauna vom Bad aus begehbar
Bereich Kochen-Essen-Wohnen
2 Zimmer

Gesamtgröße des Grundstücks 734m².

Südwestlich angebaut ist eine großzügige Terrasse mit 46m², dazu insgesamt ca. 107m² eigene Grünfläche.
In Summe ein Platz ideal zum Erholen in der Sonne und mit genügend Freiraum für gemütliches Grillen bzw. sonstige Freizeitvergnügungen in der Natur.

Zusätzlich zum Abstellraum innen, gehört ein Außenabstellraum mit über 4m² zum Objekt.

Das Angebot umfasst eine schlüsselfertige Ausführung.

Ein Carportplatz plus ein Freistellplatz sind gegen einen Aufpreis von € 19.000.- fix dem Objekt zugehörig und reserviert.
Ein Kamin kann gegen einen Aufpreis von € 4.500.- mit beauftragt werden.
Zusatzausstattungen wie Raffstores nach Absprache gegen Aufpreis ebenfalls möglich.

HINWEIS: ALLE ANGEGEBENEN PREISE SIND NETTOPREISE FÜR TOURISTISCHE VERMIETUNG (Kaufpreise für Nutzung als Hauptwohnsitz auf Anfrage).

Der südliche unbebaute Grundstücksteil hat keine Baulandwidmung, was aber durch die gegebene Planung keine Rolle spielt.

Der Wohnbereich ist mit einem Luftraum nach oben offen und ergibt damit ein zusätzliches Raumvolumen.
Im großzügigen Badezimmer integriert ist ein Raum für eine Sauna, von dieser bzw. dem Bad aus gelangt man über eine zusätzliche Türe auf kurzem Wege ins Freie, ideal zum raschen Abkühlen bzw. um auf die Terrasse zu gelangen.

Der Bau und die Bezahlung erfolgt nach dem österreichischen Bauträgervertragsgesetz, das bedeutet Ratenzahlung nach Baufortschritt und maximale Sicherheit für den Käufer.

Für die touristische Vermietung gibt es bereits eine Vorvereinbarung mit einer einheimische Agentur, gerne können die Kontaktdaten zur persönlichen Abstimmung wichtiger Details an Interessenten weitergegeben werden.

Bei der Ausführung wird höchstes Augenmerk auf maximale Qualität und das Verwenden zeitgemäßer Materialien gelegt.
Indem geplant ist, dass ausschließlich einheimische Firmen tätig werden, ist der Kontakt zu diesen Professionisten auch in der Zukunft weiterhin leicht möglich und Wünsche oder dergleichen können einfach behandelt werden.

HINWEIS: Änderungen, welche den baurechtlich genehmigten Zustand nicht beeinflussen sind in gewissem Ausmaß möglich, diese ergeben je nach Auswirkung einen Mehr- oder Minderpreis.

Auf ein bestehendes, wirtschaftliches Naheverhältnis zwischen RE/MAX Nature und dem Verkäufer wird ausdrücklich hingewiesen!

Die Lage mit der nur kurzen Entfernung zu den namhaften Schigebieten rund um Schladming, zu den unzähligen Ausflugs- und Wandergebieten in der Region, zu Thermen wie auch Kulturerlebnissen, bietet die Möglichkeit für Eigentum in bester Umgebung.

Wenn Sie Fragen haben oder eine Besichtigung machen möchten dann rufen Sie bitte einfach an oder schreiben uns eine E-Mail.

PS: Für die Richtigkeit und Vollständigkeit unserer Daten übernehmen wir keinerlei Haftung, sie stammen direkt vom Eigentümer/Verkäufer bzw. wurden uns von den zuständigen Behörden und sonstig Zuständigen zur Verfügung gestellt. So können zum Beispiel verwendete Pläne und Planunterlagen in Inhalt wie auch Maßstab von etwaigen Originalplänen bzw. von der tatsächlichen Situation abweichen genauso wie gewisse Angaben auf Basis von Rundungen oder Schätzungen erfolgen können. Deshalb ist es auch besonders wichtig, dass ein jeder Interessent vor Bekundung seines Kaufinteresses mit Abgabe eines entsprechenden verbindlichen Kaufangebotes ausnahmslos eine genaue Besichtigung der betreffenden Immobilie selbst durchführt und darüber die Echtsituation in den für eine Kaufentscheidung wichtigen Punkten erfassen kann und so über das Objekt vollumfänglich Kenntnis hat.

BITTE BEACHTEN SIE, DASS WIR AUFGRUND GEGEBENER GESETZLICHER BESTIMMUNGEN WIE AUCH DER NACHWEISPFLICHT GEGENÜBER DEM EIGENTÜMER, NUR ANFRAGEN UNTER ANGABE DER VOLLSTÄNDIGEN ANSCHRIFT SAMT TELEFONNUMMER BEARBEITEN KÖNNEN, DIESEN ANFORDERUNGEN NICHT GERECHT WERDENDE ANFRAGEN MÜSSEN LEIDER UNBEANTWORTET BLEIBEN!
Wir weisen darauf hin, dass zwischen dem Vermittler und dem zu vermittelnden Dritten ein familiäres oder wirtschaftliches Naheverhältnis besteht.

Der Vermittler ist als Doppelmakler tätig.
Angaben gemäß gesetzlichem Erfordernis:
Heizwärmebedarf: 60.0 kWh/(m²a)
Klasse Heizwärmebedarf: C
Faktor Gesamtenergieeffizienz: 0.72
Klasse Faktor Gesamtenergieeffizienz: A
Beschreibung weiterlesen

Energieeffizienz

HWB:
60 kWh/(m²*a)
HWB Klasse:
C
fGEE:
0,72
fGEE Klasse:
A
Energieausweisart:
Energiebedarfs-ausweis

Lageplan

8966 Aich-Assach | Liezen

Lade...
Marco Schwab

Marco Schwab

RE/MAX Nature 1 in Liezen

Lade...

Fotomix

Bklein-SW Bklein-NW Top1 Grundriss Visualisierung Doppelbungalow Süd das unbebaute Grundstück Blick Richtung Westen