NEU - NEUBAU-Residenzen für ZWEITWOHNSITZ oder TOURISTISCHE VERMIETUNG im Ortszentrum von Bad Aussee - von 45 bis 170m² mit Terrassen

Wohnung zum Kauf in 8990 Bad Aussee - Kaufpreis: 260.000 € / Objektnummer: 2445/3004
Ausstattung: Rollstuhlgerecht Fahrstuhl Zentralheizung Balkon Loggia Terrasse

Preisinformationen

Kaufpreis:
260.000 €
Vermittlungsprovision:
Ja
Provision:
3% des Kaufpreises zzgl. 20% USt.

Fakten

Objektnummer:
2445/3004
Objekttyp:
Wohnung
Balkon:
1
Terrasse:
1
Loggia:
1
Wohnfläche:
45 m²
Zimmer:
2
Badezimmer:
2
Toilette:
2
Baujahr:
2026
Zustand:
Erstbezug
Verfügbarkeit:
Verfügbar
Verfügbar ab:
2026

Beschreibung

Über RE/MAX Nature in Bad Aussee angeboten werden Neubau-Residenzen mit Größen von 45 bis 170m² im Ortszentrum, mit Terrassen, Balkonen und Garagen,
diese „Ausseer Residenzen“, sind nicht nur eine Investition in eine Top-Immobilie, sondern garantieren auch ein besonderes Lebensgefühl.
Wir sind stolz darauf, Ihnen unsere Immobilien in dieser traumhaften Region präsentieren zu dürfen und laden Sie herzlich ein, Ihre Träume von einem Leben im Salzkammergut wahr werden zu lassen.

In der Ischlerstraße - in einem historisch bedeutsamen wie auch geschichtsträchtigem Gebäude - entstehen insgesamt 34 Wohnungen (höchste Widmungsklasse), geeignet zur Begründung eines Zweitwohnsitzes wie auch zur touristischen Vermietung, dazu 2 Geschäftslokale.
Nur mit Worten der Superlative kann man dieses beeindruckende Projekt im Herzen von Bad Aussee beschreiben!

Die Ausführung der Wohnungen und Geschäfte erfolgt auf höchstem bautechnischem und architektonischem Niveau, und sie sind vor allem barrierefrei gestaltet.
Natürlich wird der weit über die Grenzen des Ausseerlandes geschätzte Baustil, in einer traditionellen und charmanten Architektur, umgesetzt.
Regionale Materialien, eine abgestimmte Farbgebung und ein durchdachtes Design schaffen ein Zuhause, das sowohl modern als auch tief in der Tradition verwurzelt ist. Dabei bleibt der ursprüngliche Charakter des Bürgerhauses erhalten, während die neu entstehenden Wohnräume höchsten Ansprüchen an Komfort und Qualität gerecht werden.
Das Gebäude umfasst 4 Stockwerke, mit Lift und Garagen, sowie Carportplätze.

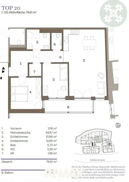
DIE HIER ZUM ANGEGEBENEN KAUFPREIS ANGEBOTENE EINHEIT NIMMT BEZUG AUF EINE WOHNUNGSGRÖSSE VON 45m² WOHNFLÄCHE!
Alternative Größen und die speziellen Varianten sowie die dazugehörigen Kaufpreise erhalten Sie auf Anfrage.

Lage des Projekts:
Zentral, im innersten Zentrum von Bad Aussee
Sehr gute, umliegende Infrastruktur (Geschäfte, Ämter, Kulinarik, Ärzte, etc.)
Öffentliche Anbindung (mit Bahn und Bus erreichbar)
Fußläufiges Erreichen verschiedener Geschäfte, Restaurants und der Annehmlichkeiten des Bad Ausseer Zentrums
Wenigen Auto-Minuten entfernt von idyllischen Bergen und Seen der Region

Garagen oder Carport-Plätze gegen Aufpreis verfügbar.
Verkauf über das österreichische Bauträgervertragsgesetz, also mit maximaler Sicherheit für Käufer!
Bruttopreise. Für Investoren ohne Ust. möglich.

Alle Detaildaten, Pläne, Energieausweis und Fotos finden sie unter www.remax.at/2445-3004
Gerne geben wir ihnen eine weiterführende, genaue Auskunft über dieses Projekt, bzw. vereinbaren wir eine gemeinsame Besichtigung der Örtlichkeit, bitte kontaktieren Sie uns dazu per E-Mail oder telefonisch.

Hinweis:
Für die Richtigkeit und Vollständigkeit unserer Daten übernehmen wir keinerlei Haftung, sie stammen direkt vom Eigentümer/Verkäufer bzw. wurden uns von den zuständigen Behörden und sonstig Zuständigen zur Verfügung gestellt. So können zum Beispiel verwendete Pläne und Planunterlagen in Inhalt wie auch Maßstab von etwaigen Originalplänen bzw. von der tatsächlichen Situation abweichen genauso wie gewisse Angaben auf Basis von Rundungen oder Schätzungen erfolgen können. Deshalb ist es auch besonders wichtig, dass ein jeder Interessent vor Bekundung seines Kaufinteresses mit Abgabe eines entsprechenden verbindlichen Kaufangebotes ausnahmslos eine genaue Besichtigung der betreffenden Immobilie selbst durchführt und darüber die Echtsituation in den für eine Kaufentscheidung wichtigen Punkten erfassen kann und so über das Objekt vollumfänglich Kenntnis hat.

BITTE BEACHTEN SIE, DASS WIR AUFGRUND GEGEBENER GESETZLICHER BESTIMMUNGEN WIE AUCH DER NACHWEISPFLICHT GEGENÜBER DEM EIGENTÜMER, NUR ANFRAGEN UNTER ANGABE DER VOLLSTÄNDIGEN ANSCHRIFT SAMT TELEFONNUMMER BEARBEITEN KÖNNEN, DIESEN ANFORDERUNGEN NICHT GERECHT WERDENDE ANFRAGEN MÜSSEN LEIDER UNBEANTWORTET BLEIBEN!

Noch nichts gefunden? Wir informieren Sie über geeignete Immobilienangebote noch vor allen anderen.
Legen Sie jetzt Ihren individuellen Suchagenten unter folgendem Link an. Wir schicken Ihnen passende Immobilien exklusiv vorab zu.
Suchagent anlegen [https://remax-nature-1-zechmann-immobilien.service.immo/registrieren/de] - https://remax-nature-1-zechmann-immobilien.service.immo/registrieren/de

Der Vermittler ist als Doppelmakler tätig.

Infrastruktur / Entfernungen

Gesundheit
Arzt <500m
Apotheke <500m
Krankenhaus <1.000m

Kinder & Schulen
Schule <1.000m
Kindergarten <5.000m

Nahversorgung
Supermarkt <500m
Bäckerei <500m

Sonstige
Bank <500m
Geldautomat <500m
Post <500m
Polizei <500m

Verkehr
Bus <500m
Bahnhof <1.500m

Angaben Entfernung Luftlinie / Quelle: OpenStreetMap
Beschreibung weiterlesen

Lage und Verkehrsanbindung

Altaussee, Grundlsee

Lageplan

8990 Bad Aussee | Liezen

Lade...
Alexander Reiter

Alexander Reiter
Akad. REMAX Immobilienmakler

REMAX Nature 1 Zechmann Immobilien GmbH

Lade...

Fotomix

Ausseer Residenzen Ausseer Residenzen Ausseer Residenzen Ausseer Residenzen Ausseer Residenzen Ausseer Residenzen Ausseer Residenzen Rückansicht Garagenplätze Top3 Plan Top12 Top19 Top20 Kontakt