NEU - Neubauwohnung mit 2 Zimmern und Terrasse - im Zentrum von St. Pölten!

Wohnung zur Miete in 3100 St. Pölten - Gesamtmiete: 879,78 € / Objektnummer: 247/01925
Ausstattung: Boden Fahrstuhl Abstellraum Fußbodenheizung Terrasse
Terrasse
Wohnzimmer II
Schlafzimmer
Wohnzimmer
Küche
Wohnzimmer I
Ausblick
Vorraum
Bad
Terrasse I
Anlage
Schlafzimmer I
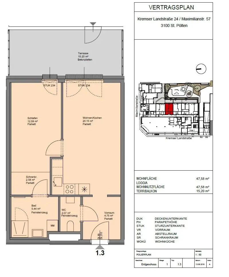
Plan
Lageplan

Preisinformationen

Gesamtmiete:
879,78 € / Monat
Nettomiete:
657,54 € / Monat
Betriebskosten netto:
142,26 € / Monat
Umsatzsteuer:
79,98 €
Preisinfos:
Abwicklung und Durchführung Mietvertrag: € 349,-
Kaution:
2.650,00 €

Fakten

Objektnummer:
247/01925
Objekttyp:
Wohnung
Terrasse:
1
Wohnfläche:
47,58 m²
Zimmer:
2
Badezimmer:
1
Toilette:
1
Baujahr:
2017/Neubau
Neubau:
Ja
Verfügbarkeit:
Verfügbar

Beschreibung

Zum Bezug nach Absprache steht in einer Seitengasse in zentraler Lage von St. Pölten diese helle 2-Zimmer-Neubauwohnung mit einer Wohnnutzfläche von ca. 48 m², für Sie bereit. Bitte beachten Sie, dass die Wohnung derzeit noch bewohnt ist und es sich bei den Bildern um Archivfotos einer baugleichen (nur spiegelverkehrt) Wohnung im selben Gebäude handelt. Im Erdgeschoss erwartet Sie die Immobilie mit einer hochwertigen Ausstattung und einer durchdachten Raumaufteilung. Die Wohnung gliedert sich in einen Vorraum, eine großzügige Wohnküche, ein Schlafzimmer, einen Schrankraum, ein Badezimmer und eine separate Toilette. Einige Highlights: - gut durchdachte Raumaufteilung - moderne, voll ausgestattete Küche - ca. 15 m² große Terrasse (ostseitig) - Badezimmer mit Dusche und Waschmaschinenanschluss - gute öffentliche Anbindungen (u.a. Buslinien: 480, 470 und 475) - Restaurants, Cafés und Einkaufsmöglichkeiten in unmittelbarer Nähe Selbstverständlich stehen sowohl Fernseh- als auch Telefonanschluss sowie ein Kellerabteil zur Verfügung. Der monatliche Gesamtmietzins dieser Wohnung beläuft sich auf Euro 879,78 inklusive Betriebskosten und Umsatzsteuer. Die Heiz- und Warmwasserversorgung erfolgt per Fernwärmeheizung und ist im Mietpreis nicht inkludiert. Per Telefon werden keine Termine vergeben! Wir bitten Sie, ausschließlich das Kontaktformular der Immobilienplattformen für Anfragen zu nutzen. Nach Erhalt unserer E-Mail antworten Sie bitte auf dieses E-Mail mit Ihrem Besichtigungswunsch. Wir möchten darauf hinweisen, dass unsere Antwort möglicherweise in Ihrem Spamordner landen könnte. Wir freuen uns auf Ihre Anfrage und einen gemeinsamen Besichtigungstermin!
Beschreibung weiterlesen

Lage und Verkehrsanbindung

St. Pölten Zentrum, Hauptbahnhof

Energieeffizienz

HWB:
32,01 kWh/(m²*a)
HWB Klasse:
B
fGEE:
0,83
fGEE Klasse:
A

Grundrisse

Vivienne Spicak

Vivienne Spicak
Vertrieb

IMV Immobilienmakler

Lade...

Fotomix

Terrasse Wohnzimmer II Schlafzimmer Wohnzimmer Küche Wohnzimmer I Ausblick Vorraum Bad Terrasse I Anlage Schlafzimmer I