Ordination / Praxisfläche – ca. 380 m² – Hauptplatz Tulln – barrierefrei mit Lift

Immobilie zur Miete in 3430 Tulln an der Donau / Objektnummer: 1612
Ausstattung:

Preisinformationen

Gesamtmiete (exkl. USt.):
5.000,00 € / Monat
Kaution:
3 Bruttomonatsmieten
Vermittlungsprovision:
Ja
Provision:
3 Bruttomonatsmieten zzgl. 20% USt.

Fakten

Objektnummer:
1612
Nutzfläche:
380 m²
Verfügbarkeit:
Verfügbar

Beschreibung

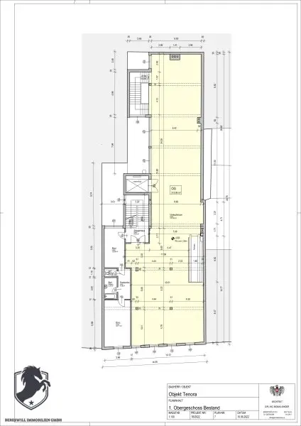
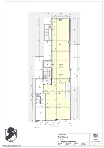
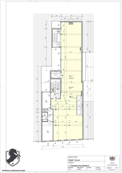
Am Hauptplatz 14a in 3430 Tulln an der Donau gelangt eine großzügige Ordinations- oder Praxisfläche mit ca. 380 m² im 1. Obergeschoss zur Vermietung.

Die Fläche wird derzeit umfassend renoviert und kann in Abstimmung mit dem zukünftigen Mieter adaptiert werden. Durch die großzügige Raumhöhe von rund 3 Metern, den barrierefreien Zugang mittels Lift sowie die zentrale Lage eignet sich das Objekt ideal für Fachärzte oder eine Gruppenordination.

FLÄCHENAUFTEILUNG

*
große Praxis- bzw. Behandlungsfläche ca. 316 m²

*
2 Büroräume

*
Garderobe

*
Bad

*
separates WC

*
Nebenflächen

HIGHLIGHTS

*
Toplage direkt am Hauptplatz von Tulln

*
ca. 380 m² Nutzfläche

*
barrierefrei mit Lift

*
derzeit in Renovierung

*
Raumhöhe ca. 3 m

*
flexible Gestaltung für Ordination oder medizinisches Zentrum

MIETKONDITIONEN

Miete: ca. € 5.000 Netto / Monat
Betriebskosten und USt. zusätzlich.

KONTAKT

Bereswill Immobilien GmbH
Wiener Straße 6–8, 3430 Tulln

Udo Bereswill
Tel.: 0664 877 5410

Der Vermittler ist als Doppelmakler tätig.

Infrastruktur / Entfernungen

Gesundheit
Arzt <500m
Apotheke <500m
Klinik <6.000m
Krankenhaus <1.500m

Kinder & Schulen
Schule <500m
Kindergarten <500m
Universität <2.000m
Höhere Schule <1.500m

Nahversorgung
Supermarkt <500m
Bäckerei <500m
Einkaufszentrum <500m

Sonstige
Bank <500m
Geldautomat <500m
Post <500m
Polizei <500m

Verkehr
Bus <500m
Bahnhof <500m
Autobahnanschluss <4.000m
Flughafen <5.500m

Angaben Entfernung Luftlinie / Quelle: OpenStreetMap
Beschreibung weiterlesen

Lage und Verkehrsanbindung

Die Ordinationsfläche befindet sich in zentraler Bestlage am Hauptplatz in Tulln an der Donau, einer der wichtigsten und frequentiertesten Lagen der Stadt.

Der Hauptplatz bildet das wirtschaftliche und gesellschaftliche Zentrum von Tulln und ist von zahlreichen Geschäften, Dienstleistungsbetrieben, Gastronomiebetrieben sowie medizinischen Einrichtungen umgeben. Dadurch ist eine sehr gute Sichtbarkeit und Erreichbarkeit für Patienten gewährleistet.

Die Umgebung bietet eine ausgezeichnete Infrastruktur mit Apotheken, Banken, Restaurants und Einkaufsmöglichkeiten in unmittelbarer Nähe.

Energieeffizienz

HWB:
62,8 kWh/(m²*a)
Energieausweisart:
Energiebedarfs-ausweis

Grundriss

Lageplan

3430 Tulln an der Donau | Tulln

Lade...
Udo Bereswill

Udo Bereswill

Bereswill Immobilien GmbH

Lade...

Fotomix

Bild 1 Bild 2 Bild 3 Bild 4 Bild 5 Bild 6 Bild 7